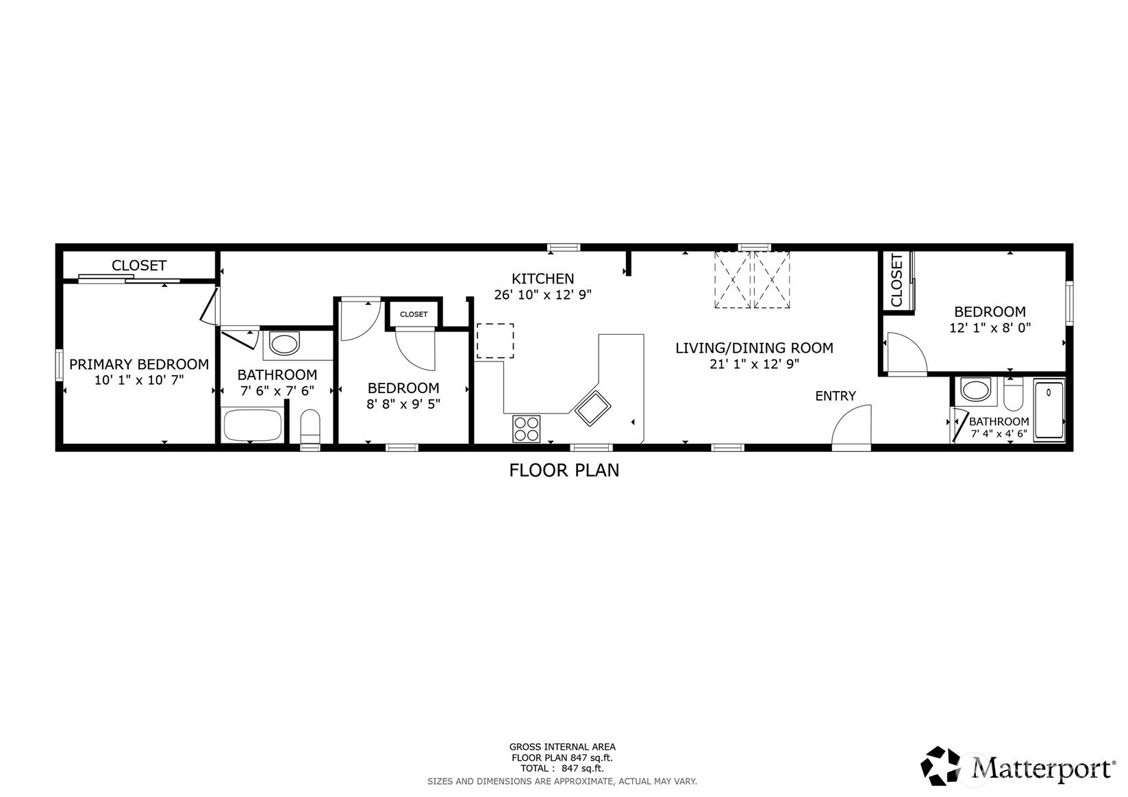
Rare opportunity in the heart of Westport! This unique property includes two parcels with the option to purchase the neighboring two parcels as well (MLS 2488946) — offering the potential to bundle four parcels into one incredible investment. Inquire for further information on adjacent parcels 109001300201 and 109001300202, featuring an existing structure with water, power, and sewer already in place. Expand your footprint with an oversized lot, create your own coastal compound, or maximize the development potential for your next project. The existing home features a refreshed 3bedroom, 2-bath single-wide with 924 sq ft of comfortable living space, complete with fresh interior & exterior paint and newer siding & roof. Whether you're looking for a beach getaway, full-time residence, or income-producing property, the flexibility here is unmatched. Located just minutes from the marina, sandy beaches, popular surf breaks, miles of oceanfront hiking and biking trails, and the iconic Grays Harbor Lighthouse — plus the proposed Westport Golf Links course — this vibrant seaside fishing town offers endless recreation and charm. Embrace relaxed coastal living with room to dream big. Mortgage savings may be available for buyers of this listing.
Listing Provided Courtesy of Abbey Beal, Redfin
General Information
NWM2488941
Manufactured On Land
1
DOM
3
0.26 acres
2
924
1994
Grays Harbor
Buyer To Verify
Buyer To Verify
Buyer To Verify
Residential
Manufactured On Land
Listing Provided Courtesy of Abbey Beal, Redfin
Krishna Realty data last checked: Mar 14, 2026 00:53 | Listing last modified Mar 12, 2026 22:45,
Source:
Open House
Sat, Mar 14th, 11AM to 1PM
Sun, Mar 15th, 11AM to 1PM
Download our Mobile app
Residence Information
924
3
2
0
2
Composition
20 - Manuf-Single Wide
1994
None
None
Block
Features and Utilities
Dishwasher, Refrigerator
Dbl Pane/Storm Window, Skylight(s), Vaulted Ceiling(s), Water Heater
Wood Products
Public
Sewer Connected
Financial
1828
Cash, Conventional, FHA, VA Loan
03-11-2026
Comparable Information
1
1
Cash, Conventional, FHA, VA Loan
$245,000
$245,000
Mar 12, 2026 22:45
Schools
Elementary : Buyer To VerifyN/ARatings Middle : Buyer To Verify N/ARatings High : Buyer To VerifyN/ARatings
Rare opportunity in the heart of Westport! This unique property includes two parcels with the option to purchase the neighboring two parcels as well (MLS 2488946) — offering the potential to bundle four parcels into one incredible investment. Inquire for further information on adjacent parcels 109001300201 and 109001300202, featuring an existing structure with water, power, and sewer already in place. Expand your footprint with an oversized lot, create your own coastal compound, or maximize the development potential for your next project. The existing home features a refreshed 3bedroom, 2-bath single-wide with 924 sq ft of comfortable living space, complete with fresh interior & exterior paint and newer siding & roof. Whether you're looking for a beach getaway, full-time residence, or income-producing property, the flexibility here is unmatched. Located just minutes from the marina, sandy beaches, popular surf breaks, miles of oceanfront hiking and biking trails, and the iconic Grays Harbor Lighthouse — plus the proposed Westport Golf Links course — this vibrant seaside fishing town offers endless recreation and charm. Embrace relaxed coastal living with room to dream big. Mortgage savings may be available for buyers of this listing.