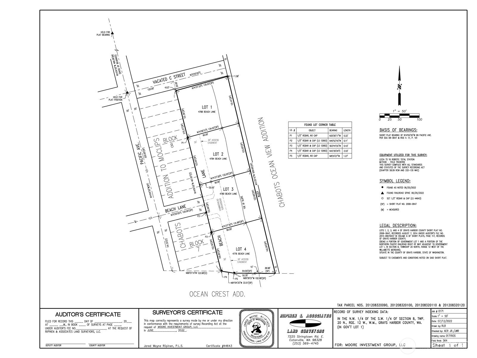
Prime coastal development opportunity with ocean view potential! This 1/4+ acre parcel offers a versatile canvas for your vision—whether you're building a custom coastal residence, a vacation getaway, or an income-producing property. With zoning that allows for nightly rentals, you have the flexibility to enjoy the property for personal use while generating short-term rental income when you're away. A substantial portion of the groundwork has already been completed, helping you save both time and upfront development costs. Geotechnical and topographical studies, a boundary survey, and a full wetlands report are all finished—providing valuable insight and reducing uncertainty as you move toward construction. Electrical applications and required equipment have already been paid for, giving you a meaningful head start, while the seller is actively working to secure water and sewer—further advancing the property’s development readiness. Approved plans for a 2-story duplex are already in place, offering the opportunity to fast-track your build and maximize the property's potential from day one. Whether you're ready to build now or planning for future development, this parcel combines convenience, flexibility, and strong investment upside in a desirable coastal setting. For those with a larger vision, neighboring parcels are also available (MLS #2509867, 2509869, 2509870), or secure all four together (MLS #2509865) to unlock expanded development possibilities
Listing Provided Courtesy of Jasmin Coleman, Oyhut Bay Realty
General Information
NWM2509868
Land
1
DOM
0.38 acres
0
Residen
Grays Harbor
Buyer To Verify
Buyer To Verify
Buyer To Verify
Land
Land
Listing Provided Courtesy of Jasmin Coleman, Oyhut Bay Realty
Krishna Realty data last checked: Apr 21, 2026 04:00 | Listing last modified Apr 21, 2026 01:07,
Source:
Download our Mobile app
Residence Information
0
40 - Res-Less thn 1 Ac
Features and Utilities
Available
Available
Financial
1083.22
Cash, Conventional
04-20-2026
Comparable Information
1
1
Cash, Conventional
$275,000
$275,000
Apr 21, 2026 01:07
Schools
Elementary : Buyer To VerifyN/ARatings Middle : Buyer To Verify N/ARatings High : Buyer To VerifyN/ARatings
Prime coastal development opportunity with ocean view potential! This 1/4+ acre parcel offers a versatile canvas for your vision—whether you're building a custom coastal residence, a vacation getaway, or an income-producing property. With zoning that allows for nightly rentals, you have the flexibility to enjoy the property for personal use while generating short-term rental income when you're away. A substantial portion of the groundwork has already been completed, helping you save both time and upfront development costs. Geotechnical and topographical studies, a boundary survey, and a full wetlands report are all finished—providing valuable insight and reducing uncertainty as you move toward construction. Electrical applications and required equipment have already been paid for, giving you a meaningful head start, while the seller is actively working to secure water and sewer—further advancing the property’s development readiness. Approved plans for a 2-story duplex are already in place, offering the opportunity to fast-track your build and maximize the property's potential from day one. Whether you're ready to build now or planning for future development, this parcel combines convenience, flexibility, and strong investment upside in a desirable coastal setting. For those with a larger vision, neighboring parcels are also available (MLS #2509867, 2509869, 2509870), or secure all four together (MLS #2509865) to unlock expanded development possibilities