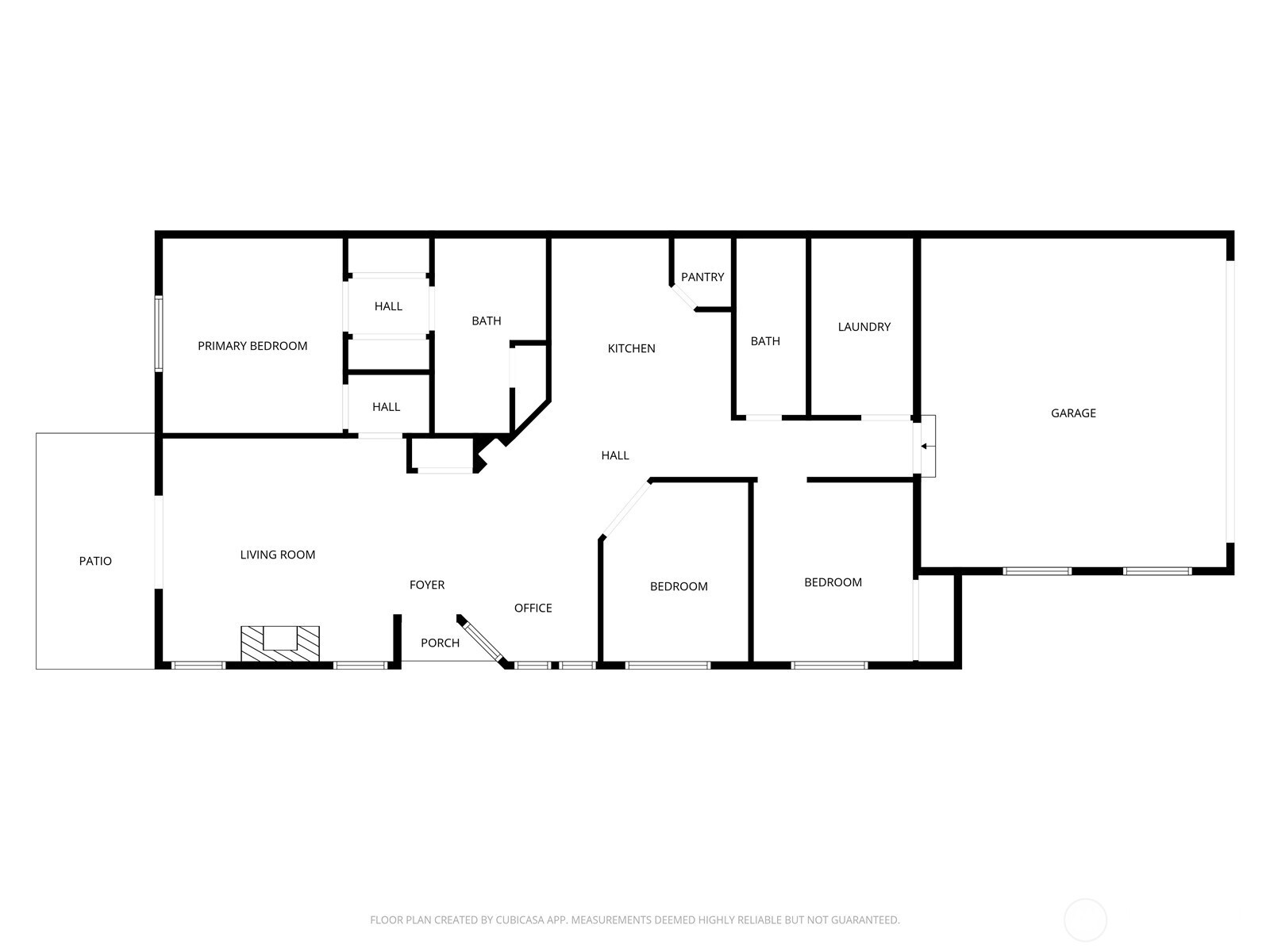
Single-level living in a private Hoquiam community with no HOA, offering 2 bedrooms, a den, and 2 full baths across 1,408 square feet. The layout is open and intentional, with the kitchen, dining, and living areas connected for easy flow whether hosting or spending a quiet night in. Vaulted ceilings and skylights lift the main living space and bring in natural light throughout the day. The primary suite is set apart with a walk-in closet and its own full bath, creating a comfortable retreat at the end of the day. The den adds flexibility for a home office, media room, or guest space. Interior updates include updated appliances, including washer and dryer, along with laminate flooring for durability and easy care. Natural gas forced air heating, gas water heater, and a gas fireplace add efficiency and warmth. Outside, the level lot features a partially fenced yard and patio space ready for outdoor dining, pets, or low-maintenance landscaping. The attached two-car garage provides secure parking and additional storage. Set on a paved street with sidewalks and public utilities, this home offers a straightforward lifestyle with functional space and a clean, move-in ready feel.
Listing Provided Courtesy of Chris Pierog, Spivey Realty Group
General Information
NWM2511811
Single Family Residence
0
DOM
2
4356 SqFt
2
1408
2002
Grays Harbor
Residential
Single Family Residence
Listing Provided Courtesy of Chris Pierog, Spivey Realty Group
Krishna Realty data last checked: Apr 24, 2026 21:25 | Listing last modified Apr 24, 2026 21:42,
Source:
Download our Mobile app
Residence Information
1408
2
2
0
2
Composition
32 - Townhouse
2002
None
None
Poured Concrete
Features and Utilities
Microwave, Refrigerator, Stove(s)/Range(s)
Dbl Pane/Storm Window, Dining Room, French Doors, Pantry, Walk-In Closet(s)
Single-level living in a private Hoquiam community with no HOA, offering 2 bedrooms, a den, and 2 full baths across 1,408 square feet. The layout is open and intentional, with the kitchen, dining, and living areas connected for easy flow whether hosting or spending a quiet night in. Vaulted ceilings and skylights lift the main living space and bring in natural light throughout the day. The primary suite is set apart with a walk-in closet and its own full bath, creating a comfortable retreat at the end of the day. The den adds flexibility for a home office, media room, or guest space. Interior updates include updated appliances, including washer and dryer, along with laminate flooring for durability and easy care. Natural gas forced air heating, gas water heater, and a gas fireplace add efficiency and warmth. Outside, the level lot features a partially fenced yard and patio space ready for outdoor dining, pets, or low-maintenance landscaping. The attached two-car garage provides secure parking and additional storage. Set on a paved street with sidewalks and public utilities, this home offers a straightforward lifestyle with functional space and a clean, move-in ready feel.