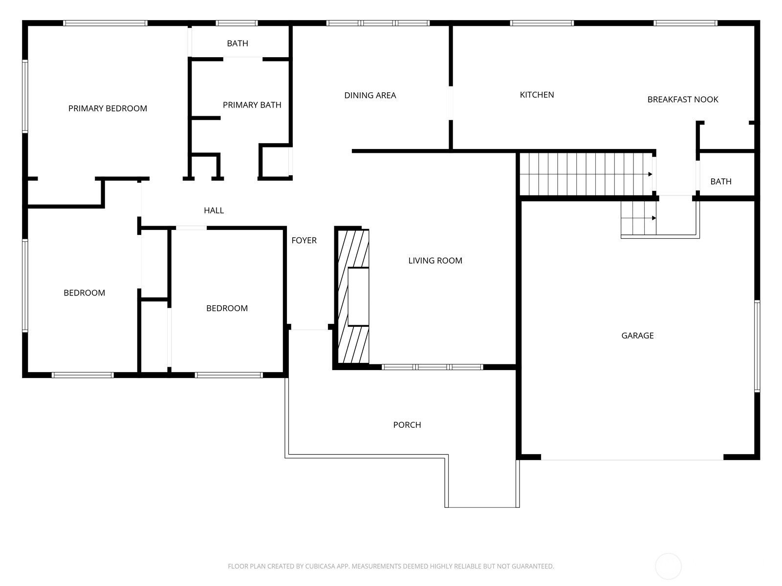
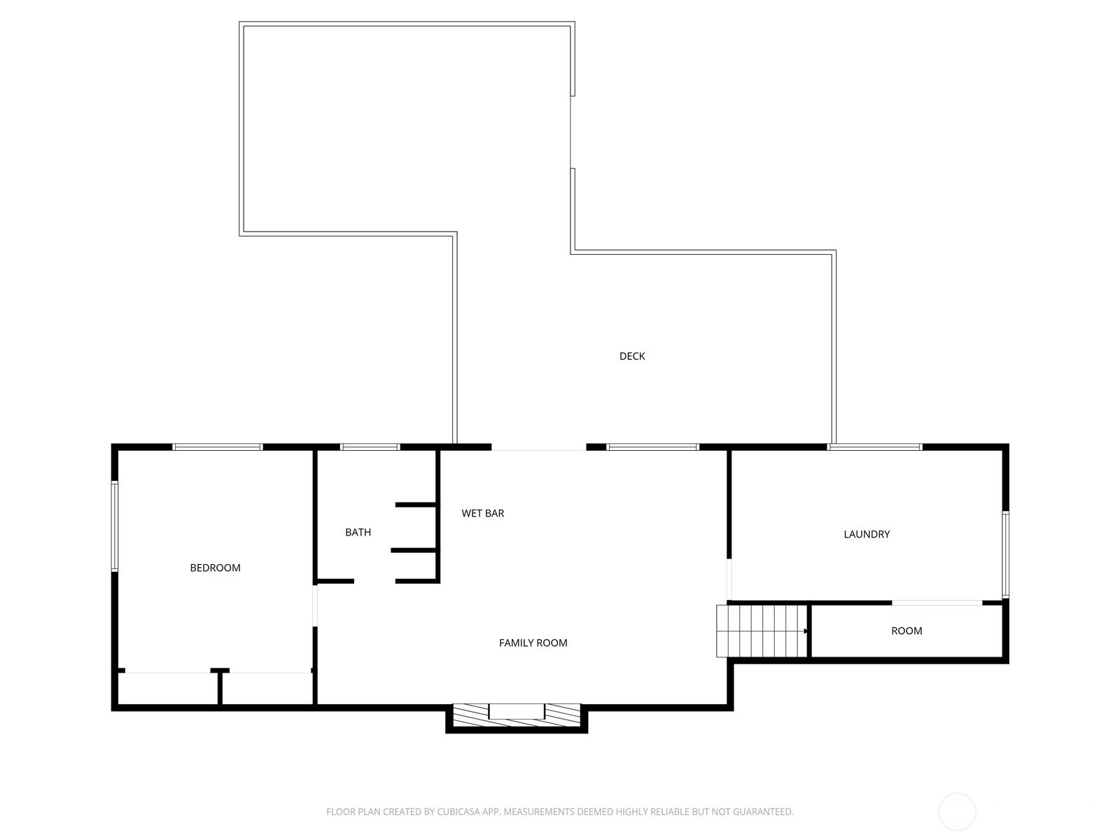
From the street this looks like any other lovely, well-taken-care-of Cosi hill home, and it is, but this home has a another side to it! Around back, tucked on the hillside behind the home are multi-level decks offering a super secluded experience that maximizes indoor/outdoor living! The lower level 2nd living area with built-in bar opens up to the main deck, which is partially enclosed and covered, currently home to a pool table and projection screen that comes with the house. Down just a few stairs from the main deck, the lower decks have built-in seating and enough space for a outside dining table or firepit or both. Don't like to entertain, keep it all to yourself for relaxing while the birds chirp! Inside the home you will find tons of functional square footage. The upper/main level of the home has a cozy living room with a massive fireplace, primary suite with full bath, 2 additional good-sized bedrooms, a true dining room, half bath, an enormous kitchen with counterspace & real wood cupboards that just keep going. Modern updates include- Whole house dehumidifier, LVP flooring, fresh paint, fixtures, and smart appliances in the kitchen. The lower level also offers a guest bedroom, a bonus flexible room with laundry that could be reimagined to a 5th bedroom & 3/4 bath. 2 mini-splits for heating/cooling. Brand new roof installed 4/26! The garage has a loft for storage, and driveway parking for 4 more vehicles. This house has it all- space, location & modern comforts!
Listing Provided Courtesy of Jaclyn Stevenson, Spivey Realty Group
General Information
NWM2492196
Single Family Residence
0
DOM
4
0.37 acres
1.5
2728
1966
Grays Harbor
Cosmopolis Elem
Buyer To Verify
Buyer To Verify
Residential
Single Family Residence
Listing Provided Courtesy of Jaclyn Stevenson, Spivey Realty Group
Krishna Realty data last checked: Apr 29, 2026 15:25 | Listing last modified Apr 29, 2026 15:43,
Source:
From the street this looks like any other lovely, well-taken-care-of Cosi hill home, and it is, but this home has a another side to it! Around back, tucked on the hillside behind the home are multi-level decks offering a super secluded experience that maximizes indoor/outdoor living! The lower level 2nd living area with built-in bar opens up to the main deck, which is partially enclosed and covered, currently home to a pool table and projection screen that comes with the house. Down just a few stairs from the main deck, the lower decks have built-in seating and enough space for a outside dining table or firepit or both. Don't like to entertain, keep it all to yourself for relaxing while the birds chirp! Inside the home you will find tons of functional square footage. The upper/main level of the home has a cozy living room with a massive fireplace, primary suite with full bath, 2 additional good-sized bedrooms, a true dining room, half bath, an enormous kitchen with counterspace & real wood cupboards that just keep going. Modern updates include- Whole house dehumidifier, LVP flooring, fresh paint, fixtures, and smart appliances in the kitchen. The lower level also offers a guest bedroom, a bonus flexible room with laundry that could be reimagined to a 5th bedroom & 3/4 bath. 2 mini-splits for heating/cooling. Brand new roof installed 4/26! The garage has a loft for storage, and driveway parking for 4 more vehicles. This house has it all- space, location & modern comforts!