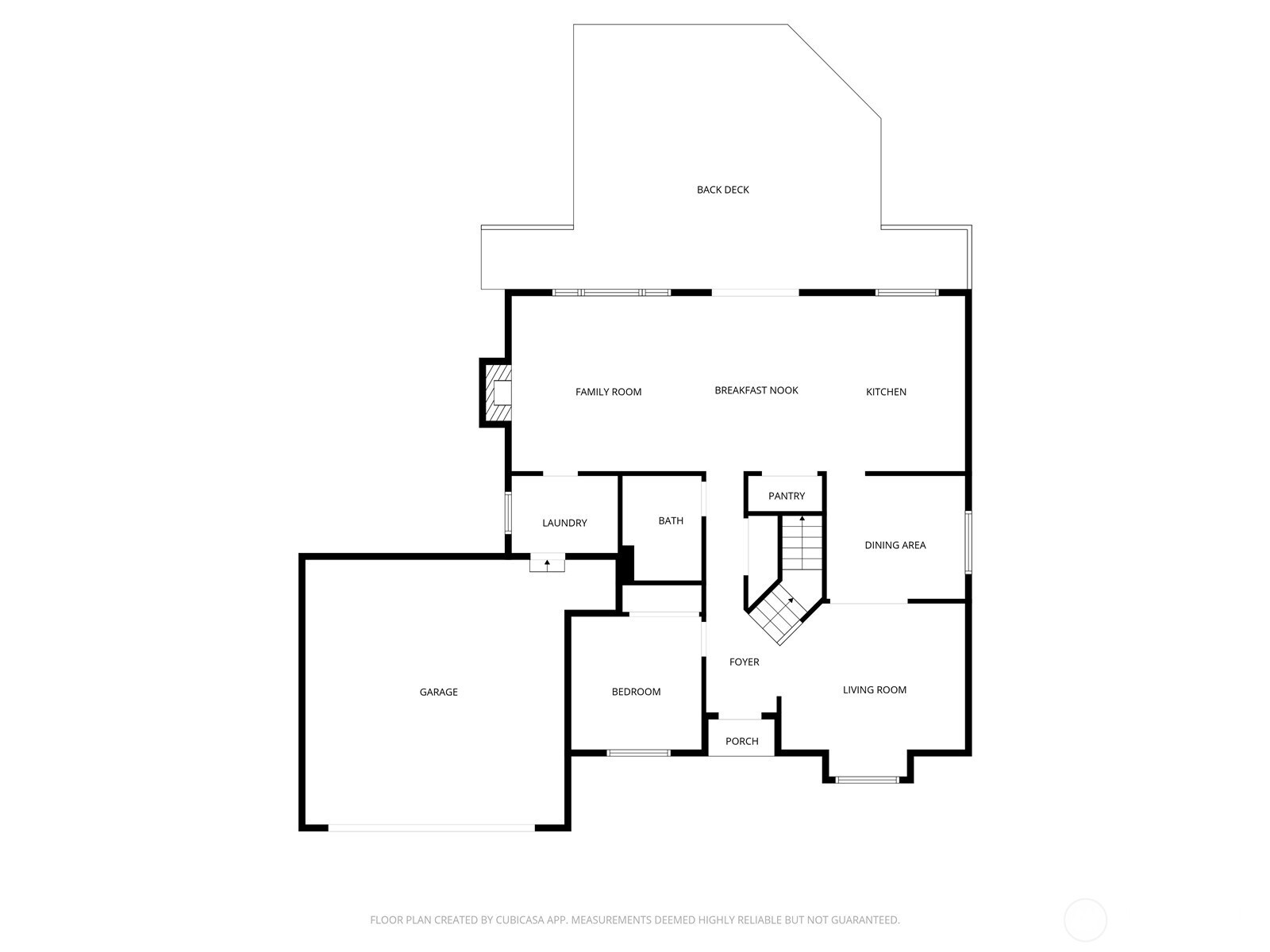
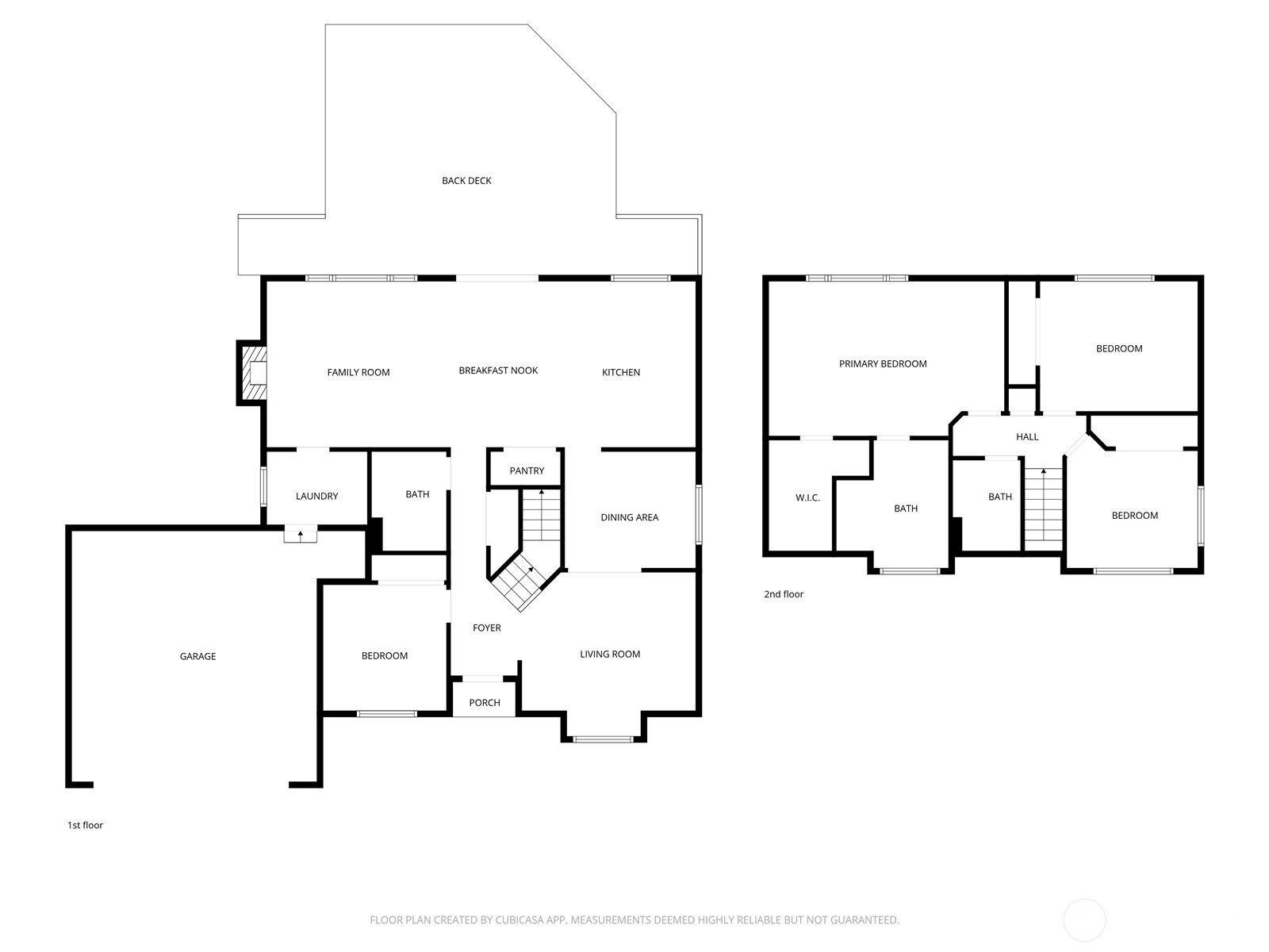
12 Courtney Lane in Montesano offers a setting that feels intentionally set apart, chosen for its quiet surroundings and sense of space. This is a home selected for the way it sits within a peaceful, well-kept pocket where privacy and breathing room come naturally. From the street, the curb appeal and architectural style are immediately apparent. Homes along this dead-end stretch are spaced generously, each on at least an acre, creating a neighborhood that feels cohesive without being crowded. With only seven homes on the street, traffic is minimal and the setting remains calm. Inside, the living room serves as the primary gathering space. This is where the sellers spend most of their time, drawn by the comfort of the room and the way it connects to the outdoors. Windows capture views of both sunrise and sunset, adding natural light and a steady connection to the surrounding landscape. The home has received practical updates that support long-term use. A new roof was installed in 2023, along with a heat pump added within the last five to six years. New LVP flooring on the main level was completed in 2025. The expansive yard allows for garden space and outdoor use without feeling confined by neighboring homes. Surrounding properties are well kept, reinforcing the quiet nature of the street. This home suits those seeking space, calm surroundings, and a private setting.
Listing Provided Courtesy of Megan Ryan, Spivey Realty Group
General Information
NWM2469547
Single Family Residence
71
DOM
3
1 acres
3
2095
2001
Grays Harbor
Buyer To Verify
Montesano Jr-Sr
Montesano Jr-Sr
Residential
Single Family Residence
Listing Provided Courtesy of Megan Ryan, Spivey Realty Group
Krishna Realty data last checked: Apr 06, 2026 19:51 | Listing last modified Mar 31, 2026 12:21,
Source:
12 Courtney Lane in Montesano offers a setting that feels intentionally set apart, chosen for its quiet surroundings and sense of space. This is a home selected for the way it sits within a peaceful, well-kept pocket where privacy and breathing room come naturally. From the street, the curb appeal and architectural style are immediately apparent. Homes along this dead-end stretch are spaced generously, each on at least an acre, creating a neighborhood that feels cohesive without being crowded. With only seven homes on the street, traffic is minimal and the setting remains calm. Inside, the living room serves as the primary gathering space. This is where the sellers spend most of their time, drawn by the comfort of the room and the way it connects to the outdoors. Windows capture views of both sunrise and sunset, adding natural light and a steady connection to the surrounding landscape. The home has received practical updates that support long-term use. A new roof was installed in 2023, along with a heat pump added within the last five to six years. New LVP flooring on the main level was completed in 2025. The expansive yard allows for garden space and outdoor use without feeling confined by neighboring homes. Surrounding properties are well kept, reinforcing the quiet nature of the street. This home suits those seeking space, calm surroundings, and a private setting.