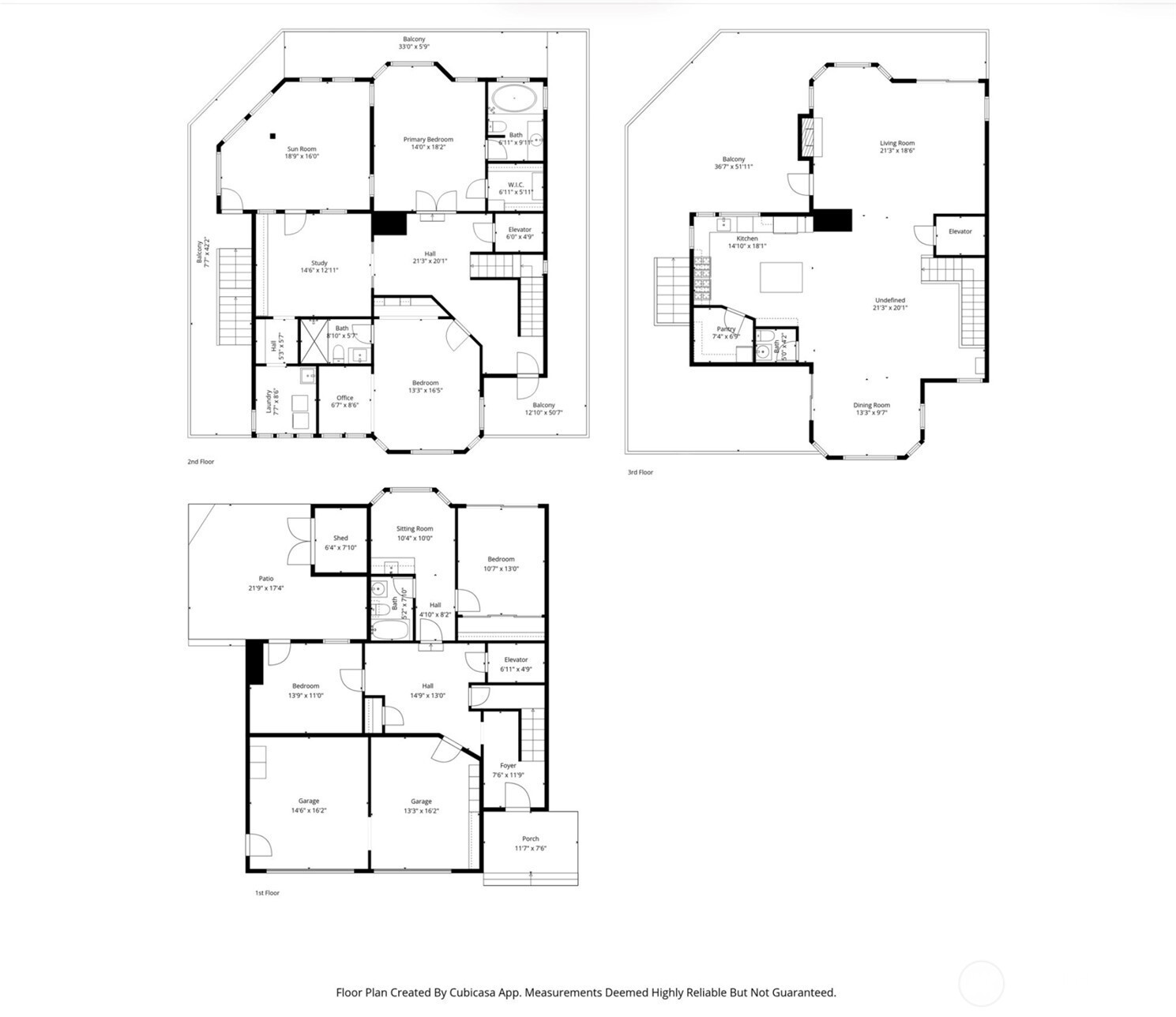
Coastal luxury meets effortless beach living in this stunning 3,184 sq ft oceanfront retreat. Situated on a 13,000+ sq ft lot with a circular driveway, this 3-level home offers 4 bedrooms and 3.5 baths with exceptional space for relaxing or entertaining. The ground level features a guest bedroom and apartment-style suite with private exterior access to the beautifully landscaped backyard, complete with fire pit and beach trail access.The mid-level includes two spacious ensuite bedrooms with walk-in closets and incredible views, ideal for guests or multi-generational living. A private library/office with double pocket doors opens to an enclosed deck, perfect as a TV lounge, ocean-view sitting room, workout space, or playroom. Over 2,000 SF of wraparound decking captures panoramic Pacific Ocean views and unforgettable sunsets.The top floor is designed for gathering, featuring an open-concept living area with propane fireplace, soaring ceilings, and expansive windows that frame the views. The generous dining room highlights sweeping territorial vistas, while the entertainer’s kitchen impresses with two ranges, two refrigerators, granite countertops, a large island with storage, abundant prep space, and a walk-in pantry.Elevator access to all levels, attached garage with storage and workspace. A rare opportunity to own a remarkable oceanfront home perfect for full-time living or a luxury coastal getaway.
Listing Provided Courtesy of Jasmin Coleman, Oyhut Bay Realty
General Information
NWM2493461
Single Family Residence
22
DOM
4
0.3 acres
1.5
3184
2004
Grays Harbor
Buyer To Verify
Buyer To Verify
Buyer To Verify
Residential
Single Family Residence
Listing Provided Courtesy of Jasmin Coleman, Oyhut Bay Realty
Krishna Realty data last checked: Apr 28, 2026 22:58 | Listing last modified Apr 09, 2026 19:44,
Source:
Coastal luxury meets effortless beach living in this stunning 3,184 sq ft oceanfront retreat. Situated on a 13,000+ sq ft lot with a circular driveway, this 3-level home offers 4 bedrooms and 3.5 baths with exceptional space for relaxing or entertaining. The ground level features a guest bedroom and apartment-style suite with private exterior access to the beautifully landscaped backyard, complete with fire pit and beach trail access.The mid-level includes two spacious ensuite bedrooms with walk-in closets and incredible views, ideal for guests or multi-generational living. A private library/office with double pocket doors opens to an enclosed deck, perfect as a TV lounge, ocean-view sitting room, workout space, or playroom. Over 2,000 SF of wraparound decking captures panoramic Pacific Ocean views and unforgettable sunsets.The top floor is designed for gathering, featuring an open-concept living area with propane fireplace, soaring ceilings, and expansive windows that frame the views. The generous dining room highlights sweeping territorial vistas, while the entertainer’s kitchen impresses with two ranges, two refrigerators, granite countertops, a large island with storage, abundant prep space, and a walk-in pantry.Elevator access to all levels, attached garage with storage and workspace. A rare opportunity to own a remarkable oceanfront home perfect for full-time living or a luxury coastal getaway.