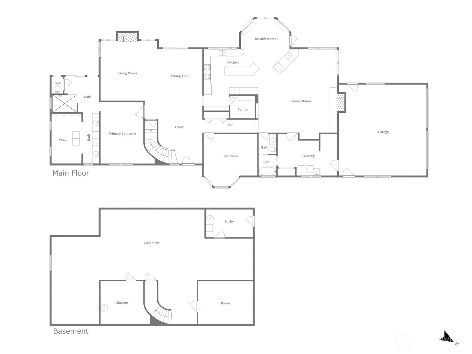
Beautiful original owner- custom estate available for the first time. Well-built 2 story property features gorgeous cherry wood details throughout - giving the home warmth, character, & timeless appeal. Sitting on a large, private lot, this home delivers both comfort & potential in a quiet setting. Private backyard has mature tree coverage & shade, landscaping & wonderful patio. A grand entry with high ceilings welcomes you to this estate. The great room features a beautiful fireplace w/ carved mantel & dining area. The spacious floor plan also has 1894 sq. ft. unfinished basement that provides endless possibilities—additional living space, a workshop & storage. Main floor has a primary suite, office, great room, living room, dining area, (kitchen, pantry, breakfast nook,) & utility room; primary bath has beautiful custom tile walk-in shower, double large closet & vanities and a door to a private courtyard that would make a wonderful retreat. The entertainer's kitchen features 2 ovens, large island, oversize pantry, plenty of storage, wet bar, breakfast nook- all connected to the living room which has a wood burning fireplace. The second level of this home features 4 bedrooms w/ walk-in closets, 2 full baths w/ double vanities, & 2 rec rooms. There is even finished attic space. Attached 2 car garage plus a large detached shop/garage for additional covered parking or workspace. A rare and unique find with solid brick construction and room to make it your own!
Listing Provided Courtesy of Staci Faw, WindermereRE/Central Basin LLC
General Information
NWM2485597
Single Family Residence
1
DOM
5
0.79 acres
4
7059
1986
Grant
Buyer To Verify
Ephrata Mid
Ephrata High
Residential
Single Family Residence
Listing Provided Courtesy of Staci Faw, WindermereRE/Central Basin LLC
Krishna Realty data last checked: Mar 03, 2026 04:11 | Listing last modified Mar 02, 2026 22:59,
Source:
Beautiful original owner- custom estate available for the first time. Well-built 2 story property features gorgeous cherry wood details throughout - giving the home warmth, character, & timeless appeal. Sitting on a large, private lot, this home delivers both comfort & potential in a quiet setting. Private backyard has mature tree coverage & shade, landscaping & wonderful patio. A grand entry with high ceilings welcomes you to this estate. The great room features a beautiful fireplace w/ carved mantel & dining area. The spacious floor plan also has 1894 sq. ft. unfinished basement that provides endless possibilities—additional living space, a workshop & storage. Main floor has a primary suite, office, great room, living room, dining area, (kitchen, pantry, breakfast nook,) & utility room; primary bath has beautiful custom tile walk-in shower, double large closet & vanities and a door to a private courtyard that would make a wonderful retreat. The entertainer's kitchen features 2 ovens, large island, oversize pantry, plenty of storage, wet bar, breakfast nook- all connected to the living room which has a wood burning fireplace. The second level of this home features 4 bedrooms w/ walk-in closets, 2 full baths w/ double vanities, & 2 rec rooms. There is even finished attic space. Attached 2 car garage plus a large detached shop/garage for additional covered parking or workspace. A rare and unique find with solid brick construction and room to make it your own!