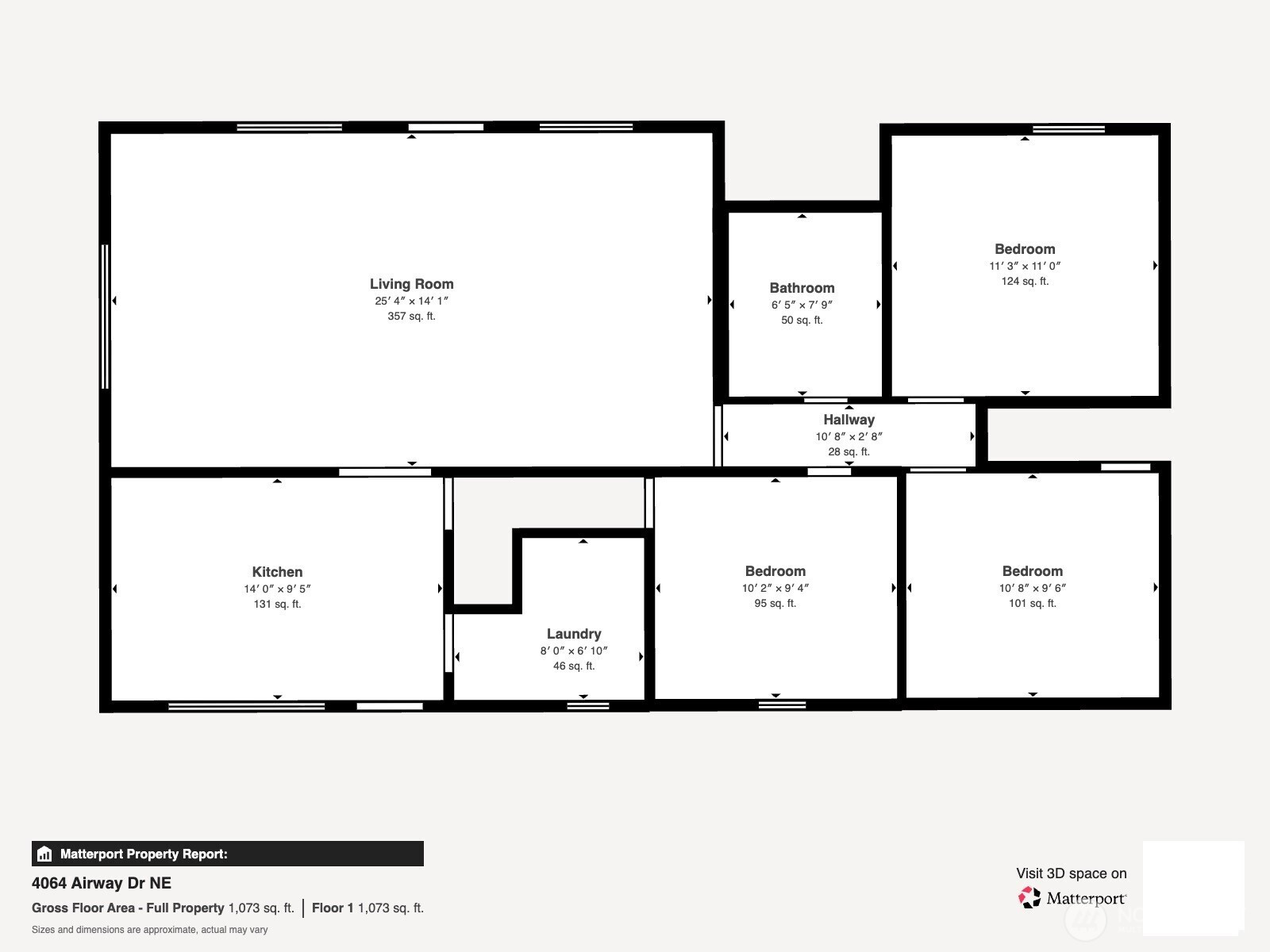
Discover the potential in this 3-bedroom, 1.5-bath home situated on a spacious 0.4-acre lot. Built in 1960, this 1,056 square foot property offers classic mid-century character and room to make it your own. A perfect fixer-upper opportunity for investors, flippers, or first-time buyers ready to earn sweat equity! The home includes a two-car detached garage with an adjoining workshop, ideal for hobbies, storage, or additional workspace. Enjoy low utility costs with connection to the Hillcrest Water Association and a private septic system. The generous yard provides plenty of space for gardening, expansion, or outdoor living. With its great value, large lot, and solid bones, this home is ready for your finishing touches. Bring your vision and create your dream home in a peaceful setting—all while investing in your future.
Listing Provided Courtesy of Alison May, BHGRE Gary Mann Realty
General Information
NWM2502558
Single Family Residence
0
DOM
3
0.4 acres
1.5
1056
1960
Grant
Buyer To Verify
Buyer To Verify
Buyer To Verify
Residential
Single Family Residence
Listing Provided Courtesy of Alison May, BHGRE Gary Mann Realty
Krishna Realty data last checked: Apr 06, 2026 17:57 | Listing last modified Apr 06, 2026 23:16,
Source:
Download our Mobile app
Residence Information
1056
3
1
1
1.5
Composition
10 - 1 Story
1960
None
None
Poured Concrete
Features and Utilities
Stove(s)/Range(s)
Wood, Wood Products
Community
Septic Tank
Financial
1206
Cash, Conventional
04-06-2026
Comparable Information
0
0
Cash, Conventional
$199,000
$199,000
Apr 06, 2026 23:16
Schools
Elementary : Buyer To VerifyN/ARatings Middle : Buyer To Verify N/ARatings High : Buyer To VerifyN/ARatings
Discover the potential in this 3-bedroom, 1.5-bath home situated on a spacious 0.4-acre lot. Built in 1960, this 1,056 square foot property offers classic mid-century character and room to make it your own. A perfect fixer-upper opportunity for investors, flippers, or first-time buyers ready to earn sweat equity! The home includes a two-car detached garage with an adjoining workshop, ideal for hobbies, storage, or additional workspace. Enjoy low utility costs with connection to the Hillcrest Water Association and a private septic system. The generous yard provides plenty of space for gardening, expansion, or outdoor living. With its great value, large lot, and solid bones, this home is ready for your finishing touches. Bring your vision and create your dream home in a peaceful setting—all while investing in your future.