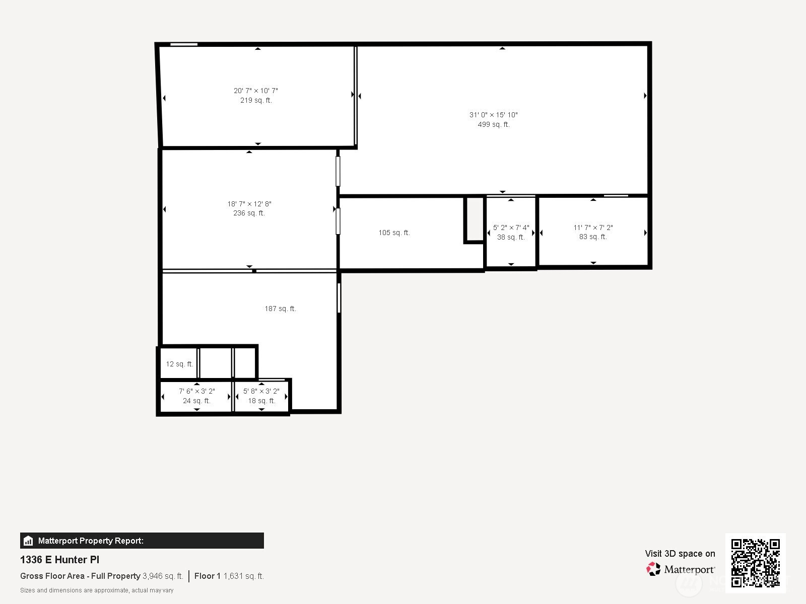
This commercial building has 2143 sq ft with high ceilings and endless potential, plus an additional 1643 sq ft of unfinished basement w 9 foot ceilings with separate entrance for storage or more? Flexible Single or Multi- Tenant Opportunity business cul-de-sac, just off Pioneer Way(15,000 cars daily) offering exceptional visibility. Adaptability defines this well-appointed office building-ideal for dental, professional, medical, or service-oriented users. Features include 6 private 10 x 10 rooms w large exterior windows, 23 paved & marked parking spaces, new roof in 2018 is pitched metal and welded vinyl flat roof 30 year warranty. New 2019 Trane HVAC. Currently single-tenant but could be multi tenant.
Listing Provided Courtesy of Aimee Van Diest, HomeSmart
General Information
NWM2483567
Commercial Industrial
58
DOM
0.44 acres
0
1984
Commerc
Grant
Commercial Sale
Commercial Industrial
Listing Provided Courtesy of Aimee Van Diest, HomeSmart
Krishna Realty data last checked: Apr 26, 2026 07:35 | Listing last modified Apr 22, 2026 17:14,
Source:
This commercial building has 2143 sq ft with high ceilings and endless potential, plus an additional 1643 sq ft of unfinished basement w 9 foot ceilings with separate entrance for storage or more? Flexible Single or Multi- Tenant Opportunity business cul-de-sac, just off Pioneer Way(15,000 cars daily) offering exceptional visibility. Adaptability defines this well-appointed office building-ideal for dental, professional, medical, or service-oriented users. Features include 6 private 10 x 10 rooms w large exterior windows, 23 paved & marked parking spaces, new roof in 2018 is pitched metal and welded vinyl flat roof 30 year warranty. New 2019 Trane HVAC. Currently single-tenant but could be multi tenant.