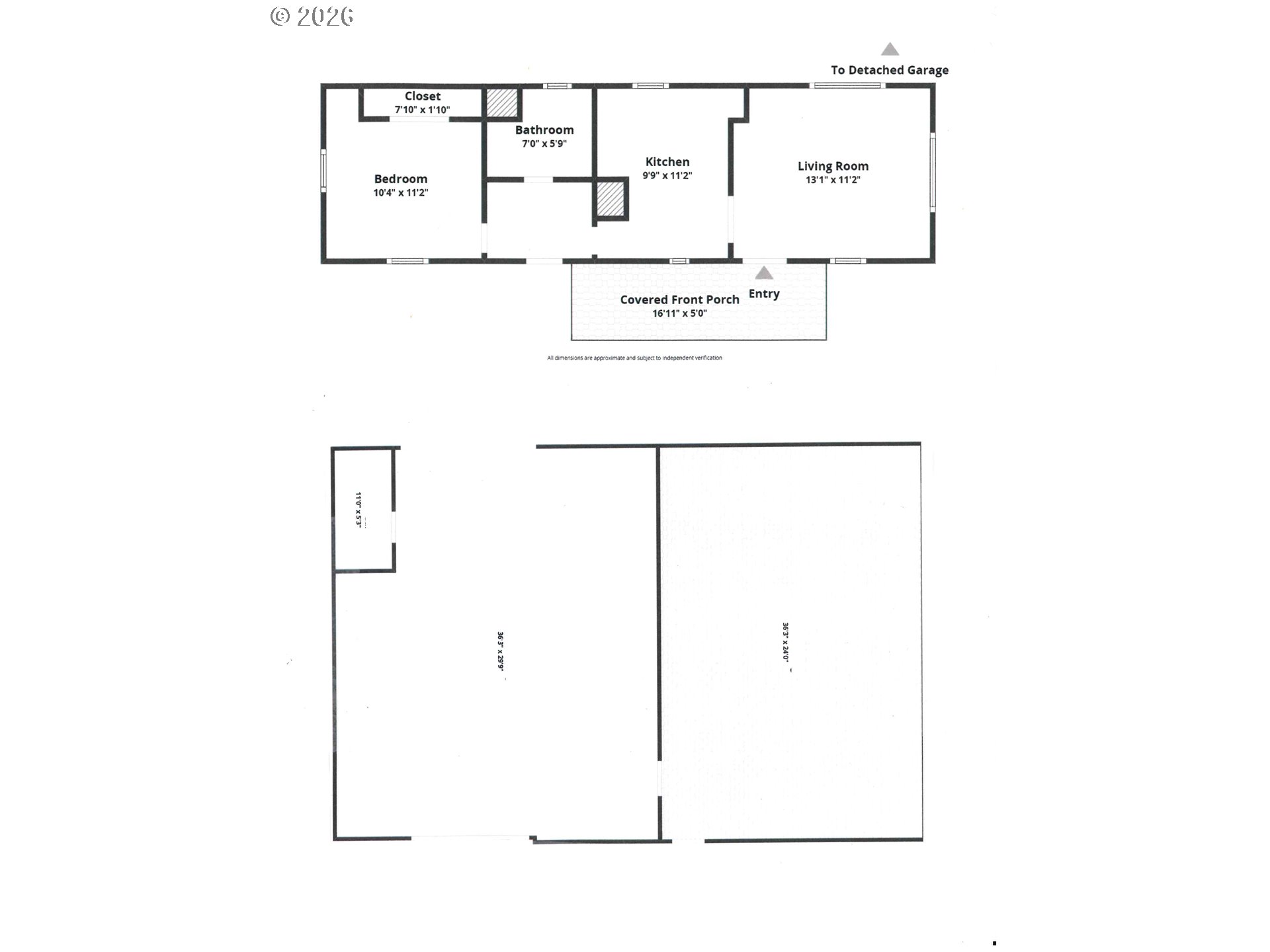
This commercial property features a 36' x 30' shop with a concrete floor and convenient pull-through roll-up doors. It includes a 36' x 28' partially enclosed lean to and a 20' x 36' roof cover over a single-wide trailer. The 1971 single-wide measures 12' x 40' and contains one bedroom, one bathroom, and a kitchen area equipped with cabinets and a countertop, although it lacks appliances. The living room was previously utilized as an office for a former business. Additionally, the property includes a 24' x 30' storage building.The premises are equipped with three-phase power, two electric meters, fiber internet, and a loading dock, all accompanied by ample parking. City water and sewer services are also available. The total lot size is 0.56 acres.
Listing Provided Courtesy of Michal Madden, Madden Realty
General Information
256765236
Commercial
21
DOM
0.56 acres
2808
1987
Comm
Grant
13S3122C10201
CommercialSale
Commercial
13-31-22C TL102
Listing Provided Courtesy of Michal Madden, Madden Realty
Krishna Realty data last checked: May 07, 2026 04:40 | Listing last modified May 07, 2026 00:12,
Source:
This commercial property features a 36' x 30' shop with a concrete floor and convenient pull-through roll-up doors. It includes a 36' x 28' partially enclosed lean to and a 20' x 36' roof cover over a single-wide trailer. The 1971 single-wide measures 12' x 40' and contains one bedroom, one bathroom, and a kitchen area equipped with cabinets and a countertop, although it lacks appliances. The living room was previously utilized as an office for a former business. Additionally, the property includes a 24' x 30' storage building.The premises are equipped with three-phase power, two electric meters, fiber internet, and a loading dock, all accompanied by ample parking. City water and sewer services are also available. The total lot size is 0.56 acres.