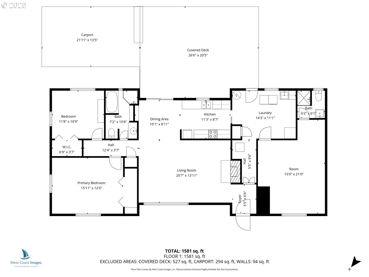
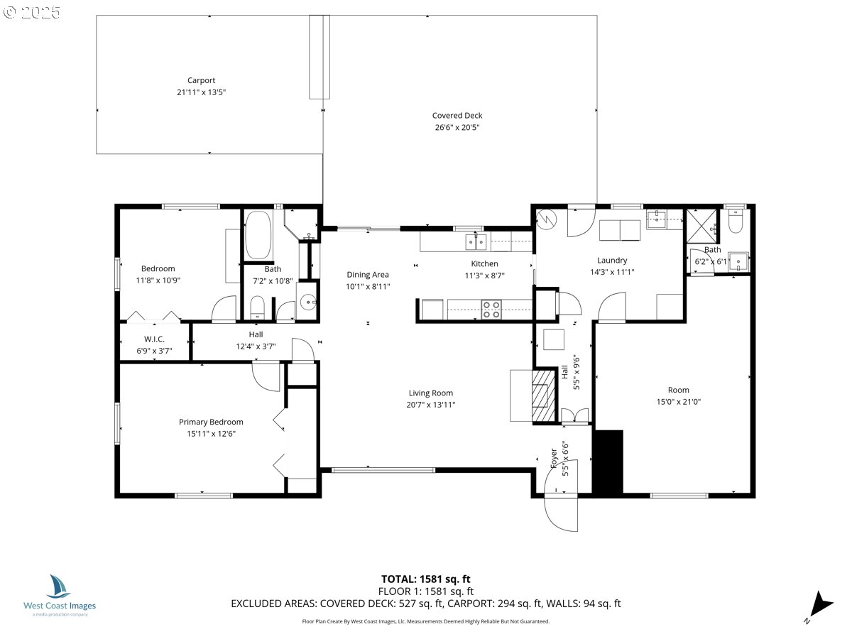
2965 S MYRTLE RD

Myrtle Creek, 97457

  • 3 Bed

  • 2 Bath

  • 1656 SqFt

  • 40 DOM

  • Built: 1967

  • Status: Active

$585,000

X

2965 S MYRTLE RD

Myrtle Creek 97457

$585000

  • 3 Bed

  • 2 Bath

  • 1656 SqFt

  • 40 DOM

  • Built: 1967

  • Status: Active

Krishna Regupathy

Principal Broker

(503) 893-8874

Charming Ranch-Style Home on 31.77 Acreage with Creek Frontage, Forested Land & Timber Value. This well-kept ranch-style home offers the perfect blend of peaceful country living and in-town convenience. Located just minutes from town, this property showcases pride of ownership, all on a picturesque slice of countryside. Interior Features: Spacious galley kitchen and solid wood cabinetry—ideal for the home cook. Cozy living room with pellet stove and an oil furnace for year-round comfort. Flexible floor plan includes a potential master suite with private bathroom and separate entrance—perfect for guests, extended family, or a rental unit. Recent Upgrades: New roof installed in 2022 on both the home and the shop. Covered patio and carport provide outdoor shelter and entertaining space. Detached shop with ample workspace and extra storage area on the side used for storing wood. Established orchard Garden space supported by irrigation rights, fenced pasture with a 30' x 20' pole barn for hay, tools, or equipment. Pasture previously used for hay production—great for hobby farming or supplemental income with the pastureland featuring a haybarn with 2 corrals. Second oldest water rights in the area, with irrigation pods and 2 irrigation pumps ready to go. Outdoors Lifestyle & Timber Potential: A serene creek runs through the property, with 19 acres of Timber accessible across the creek-ideal for hiking, hunting, wildlife watching, or simply enjoying nature Timber cruise on file (as of December 2024) estimates over $200,000 in standing timber value—providing a unique opportunity for selective harvest income Whether you're seeking a forever home, a small homestead, or a private retreat with income potential, this property offers incredible versatility and natural beauty. Schedule your private showing today and experience the best of country living!

Download our Mobile app

Similar Properties

Download our Mobile app

$995,000

  • 3 Bed

  • 2 Bath

  • 2234 SqFt

  • 19 DOM

  • 1171 NE DIVISION ST, Myrtle Creek, 97457

$375,000

  • 3 Bed

  • 2 Bath

  • 1566 SqFt

  • 3 DOM

  • 1386 RICHARDSON RD, Myrtle Creek, 97457

$127,000

  • 3 Bed

  • 2 Bath

  • 1659 SqFt

  • 4 DOM

  • 195 SE MILL ST, Myrtle Creek, 97457

$239,000

  • 2 Bed

  • 1 Bath

  • 824 SqFt

  • 5 DOM

  • 150 NE BROADWAY ST, Myrtle Creek, 97457