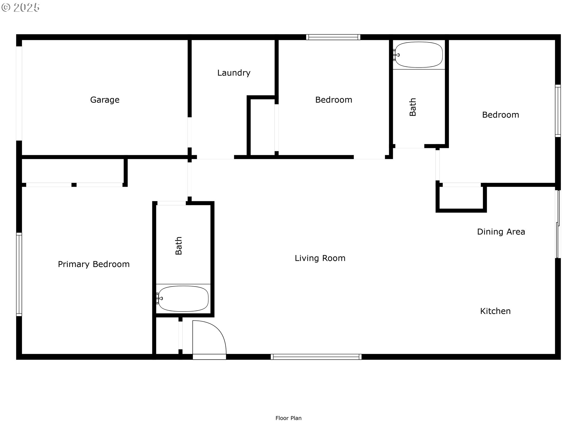
INVESTOR SPECIAL! Instead of looking for your next remodel project, flip this new construction opportunity in the heart of Roseburg! Owner financing terms considered. Framed, dried-in, and well on its way to the finish line. This 3-bedroom, 2-bath home offers 1,342 square feet with a modern single-level layout, attached garage, and alley access with additional RV parking potential. Major progress has been made, and now it’s ready for the right buyer to take it across the finish line. Inside, you’ll find a wide-open living, dining, and kitchen area. Drywall is up and finished, HVAC ducting installed, and flooring has already been laid through the main living areas. The primary suite is positioned privately from the secondary bedrooms and includes an en-suite bath. Plumbing, electrical, and rough-ins are in place, with bathrooms ready for fixtures and finish work. The kitchen is framed and ready for cabinetry, counters, and appliances. Situated on a manageable lot directly across from the courthouse and just blocks from downtown Roseburg, this location makes sense for resale or rental. Alley access offers flexibility for additional parking, and the attached garage adds value and functionality. This is not your usual flipper's full gut remodel; instead, it's a near-complete new build being sold as-is. Ideal for contractors looking for their next project, investors seeking a strong margin opportunity, or builders who want to control the final finishes and maximize return. Bring your crew, run your numbers, and finish it your way. Owner is willing to carry note for the right buyer. Seller carry terms negotiable. Schedule your private tour today!
Listing Provided Courtesy of Anthony Beckham, Different Better Real Estate
General Information
732144291
SingleFamilyResidence
112
DOM
3
3920.4 SqFt
2
1342
2024
MR14
Douglas
R11573
Eastwood 6/10
Fremont
Roseburg 4/10
Residential
SingleFamilyResidence
CHADWICK ADD, BLOCK 6, LOT 2, ACRES 0.09
Listing Provided Courtesy of Anthony Beckham, Different Better Real Estate
Krishna Realty data last checked: Apr 26, 2026 17:22 | Listing last modified Apr 20, 2026 09:10,
Source:
Download our Mobile app
Residence Information
0
1342
0
1342
County
1342
3
2
0
2
Composition
1, Attached
Stories1
Driveway,RVAccessPar
1
2024
No
CementSiding, LapSiding, T111Siding
CrawlSpace,PartialBasement,Unfinished
RVParking
CrawlSpace,PartialBa
ConcretePerimeter
DoublePaneWindows,Vi
Features and Utilities
Laundry, LuxuryVinylPlank
RVParking, Yard
MinimalSteps, OneLevel, UtilityRoomOnMain
Electricity
None
PublicSewer
Electricity
Electricity
Financial
2141.09
0
Cash,OwnerWillCarry,Rehab
12-29-2025
No
No
Comparable Information
112
118
Cash,OwnerWillCarry,Rehab
$234,900
$214,500
Apr 20, 2026 09:10
Schools
public Elementary : Eastwood
6/10Ratings Middle : Fremont N/ARatingspublic High : Roseburg
4/10Ratings
INVESTOR SPECIAL! Instead of looking for your next remodel project, flip this new construction opportunity in the heart of Roseburg! Owner financing terms considered. Framed, dried-in, and well on its way to the finish line. This 3-bedroom, 2-bath home offers 1,342 square feet with a modern single-level layout, attached garage, and alley access with additional RV parking potential. Major progress has been made, and now it’s ready for the right buyer to take it across the finish line. Inside, you’ll find a wide-open living, dining, and kitchen area. Drywall is up and finished, HVAC ducting installed, and flooring has already been laid through the main living areas. The primary suite is positioned privately from the secondary bedrooms and includes an en-suite bath. Plumbing, electrical, and rough-ins are in place, with bathrooms ready for fixtures and finish work. The kitchen is framed and ready for cabinetry, counters, and appliances. Situated on a manageable lot directly across from the courthouse and just blocks from downtown Roseburg, this location makes sense for resale or rental. Alley access offers flexibility for additional parking, and the attached garage adds value and functionality. This is not your usual flipper's full gut remodel; instead, it's a near-complete new build being sold as-is. Ideal for contractors looking for their next project, investors seeking a strong margin opportunity, or builders who want to control the final finishes and maximize return. Bring your crew, run your numbers, and finish it your way. Owner is willing to carry note for the right buyer. Seller carry terms negotiable. Schedule your private tour today!