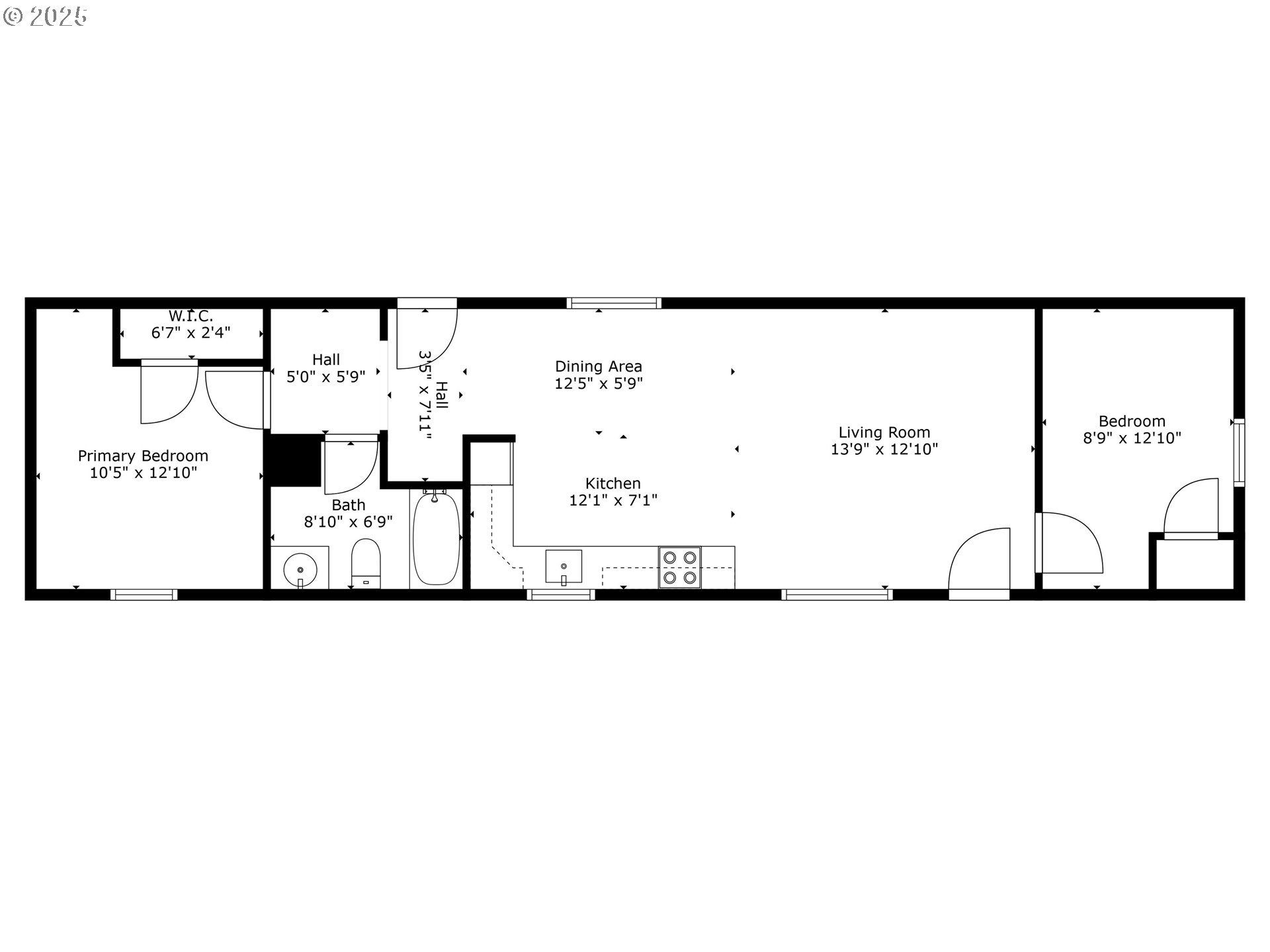
Located in a well-kept 55+ community with newly upgraded park infrastructure, this home benefits from all-new utilities. Peaceful creek-side setting and a friendly residential feel—close to town yet tucked away. This 2-bedrooms, 1-bath home offers an affordable and comfortable living setup with easy access to I-5 and just minutes from town. Featuring 746 sq ft and a modern floorplan with an open concept living room/kitchen area, and bedrooms located on either side of the home for privacy. This home feels brand new! Only lightly lived in, and recently updated with fresh interior and exterior paint, a new heat pump, and new front and back decks. The layout includes a dedicated laundry area, and all appliances are included, so you can move right in without the hassle. The covered carport with attached storage keeps your vehicle out of the elements and gives you extra room for tools or hobbies. Outside, the low-maintenance landscaping means less time doing yard work and more time doing whatever you want. Space rent is $650/month and includes water, sewer, and trash. This is a solid, easy-to-manage home in a quiet setting that keeps you close to everything without being in the middle of it all. Schedule your private tour today!
Listing Provided Courtesy of Anthony Beckham, Different Better Real Estate
General Information
500628132
ManufacturedHomeinPark
84
DOM
2
1
746
2015
Douglas
Not Found
Fir Grove
Joseph Lane 5/10
Roseburg 4/10
Residential
ManufacturedHomeinPark
NEPTUNE MOBILE PARK, SPACE 6, MS SERIAL FLE210OR1517133A, HUD # ORE529177, HOME ID: 389917, PERSONAL MS
Listing Provided Courtesy of Anthony Beckham, Different Better Real Estate
Krishna Realty data last checked: Dec 06, 2025 11:43 | Listing last modified Nov 10, 2025 16:56,
Source:
Download our Mobile app
Residence Information
0
746
0
746
Seller
746
2
1
0
1
Composition
1, Carport
Stories1,SingleWideManufactured
Carport,Driveway
1
2015
No
T111Siding
CrawlSpace
CrawlSpace
Skirting
DoublePaneWindows,Vi
Sewer, Trash, Water
Features and Utilities
ExteriorEntry
FreeStandingRange, FreeStandingRefrigerator
Laundry, VinylFloor, WalltoWallCarpet
Porch
CentralAir, HeatPump
Electricity
ForcedAir
PublicSewer
Electricity
Electricity
Financial
0
0
650 / Month
Cash,Conventional
08-18-2025
No
No
Comparable Information
84
110
Cash,Conventional
$69,900
$64,000
Nov 10, 2025 16:56
Schools
Elementary : Fir GroveN/ARatingspublic Middle : Joseph Lane
5/10Ratingspublic High : Roseburg
4/10Ratings
Located in a well-kept 55+ community with newly upgraded park infrastructure, this home benefits from all-new utilities. Peaceful creek-side setting and a friendly residential feel—close to town yet tucked away. This 2-bedrooms, 1-bath home offers an affordable and comfortable living setup with easy access to I-5 and just minutes from town. Featuring 746 sq ft and a modern floorplan with an open concept living room/kitchen area, and bedrooms located on either side of the home for privacy. This home feels brand new! Only lightly lived in, and recently updated with fresh interior and exterior paint, a new heat pump, and new front and back decks. The layout includes a dedicated laundry area, and all appliances are included, so you can move right in without the hassle. The covered carport with attached storage keeps your vehicle out of the elements and gives you extra room for tools or hobbies. Outside, the low-maintenance landscaping means less time doing yard work and more time doing whatever you want. Space rent is $650/month and includes water, sewer, and trash. This is a solid, easy-to-manage home in a quiet setting that keeps you close to everything without being in the middle of it all. Schedule your private tour today!