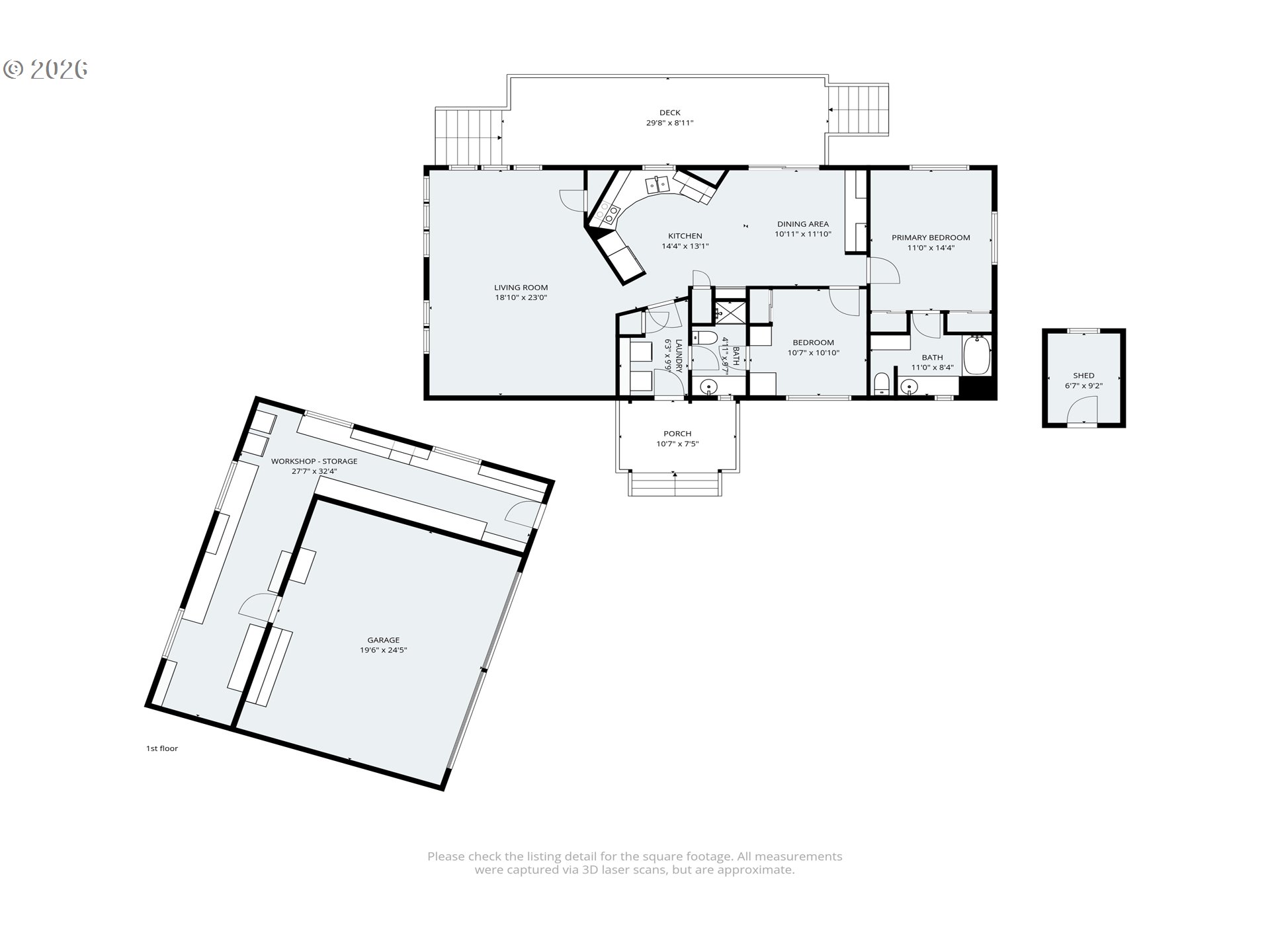
This residence offers expansive views of the Umpqua River, Pacific Ocean, and Winchester Bay’s Salmon Harbor from its elevated hilltop position. Situated down the street from the National Dunes Recreational Area, it is an ideal location for enthusiasts of outdoor activities. Residents can appreciate stunning sunsets and picturesque ocean and river vistas directly from the living area. A 120 sq. ft. deck at the front of the property is well-suited for barbecues, relaxation, and enjoying sunshine. An open concept floor plan enables seamless entertainment while maximizing enjoyment of scenic views and sunsets. The primary bedroom includes an ensuite bathroom, generous closet space, abundant natural light, and water views. The property is meticulously maintained, reflecting a high standard of ownership. With a total area of 1,248 sq. ft., this two-bedroom, two-bathroom home is positioned on a tranquil private road. The 896 sq. ft. garage is equipped with a workshop and a canning kitchen. Additional parking adjacent to the garage accommodates boats or recreational vehicles. The paved driveway ensures easy maintenance, and a garden shed provides ample storage for gardening tools and barbecue equipment. Extensive terracing facilitates flower gardens and straightforward outdoor upkeep. This property serves as an excellent base for a variety of recreational pursuits along the Oregon Coast. As the property is located on a private road, drive bys are not possible. Make an appointment to see this one of a kind property today!
Listing Provided Courtesy of Desiree Clifton, Windermere Real Estate Lane County
General Information
553370871
ManufacturedHomeonRealProperty
64
DOM
2
0.28 acres
2
1248
1981
R1
Douglas
R51952
Highland 5/10
Reedsport 2/10
Reedsport 2/10
Residential
ManufacturedHomeonRealProperty
221313BA01400
Listing Provided Courtesy of Desiree Clifton, Windermere Real Estate Lane County
Krishna Realty data last checked: Apr 26, 2026 13:20 | Listing last modified Feb 21, 2026 15:06,
Source:
This residence offers expansive views of the Umpqua River, Pacific Ocean, and Winchester Bay’s Salmon Harbor from its elevated hilltop position. Situated down the street from the National Dunes Recreational Area, it is an ideal location for enthusiasts of outdoor activities. Residents can appreciate stunning sunsets and picturesque ocean and river vistas directly from the living area. A 120 sq. ft. deck at the front of the property is well-suited for barbecues, relaxation, and enjoying sunshine. An open concept floor plan enables seamless entertainment while maximizing enjoyment of scenic views and sunsets. The primary bedroom includes an ensuite bathroom, generous closet space, abundant natural light, and water views. The property is meticulously maintained, reflecting a high standard of ownership. With a total area of 1,248 sq. ft., this two-bedroom, two-bathroom home is positioned on a tranquil private road. The 896 sq. ft. garage is equipped with a workshop and a canning kitchen. Additional parking adjacent to the garage accommodates boats or recreational vehicles. The paved driveway ensures easy maintenance, and a garden shed provides ample storage for gardening tools and barbecue equipment. Extensive terracing facilitates flower gardens and straightforward outdoor upkeep. This property serves as an excellent base for a variety of recreational pursuits along the Oregon Coast. As the property is located on a private road, drive bys are not possible. Make an appointment to see this one of a kind property today!