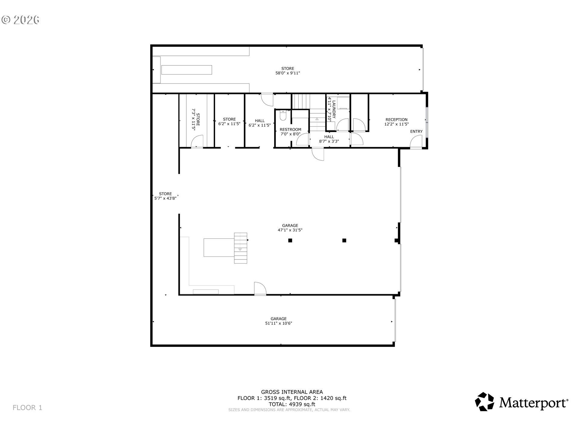
A fantastic and rare opportunity to acquire a centrally located warehouse and shop property just off Highway 101. This versatile commercial building offers approximately 4,500 square feet and is well-suited for a wide range of business uses. There is a modest living area and a full bath upstairs. The layout includes a dedicated office, two truck bays, and additional office space and storage on the second floor, providing flexibility for operations, inventory, and administrative needs. The design supports efficient workflow while allowing room for growth or customization. A great opportunity if you also need a vast parking area. Properties of this type and location are seldom available. Buyers are encouraged to verify square footage and confirm allowable uses directly with the City of Brookings. Please inquire for additional information and ask to see the 3D tour.
Listing Provided Courtesy of Jude Hodge, RE/MAX Coast and Country
General Information
116309071
Industrial
1
DOM
7405.2 SqFt
4513
2003
IP
Curry
R15494
CommercialSale
Industrial
LOT 3 & 7 BLOCK 2 BROOKINGS PLAT NO.1
Listing Provided Courtesy of Jude Hodge, RE/MAX Coast and Country
Krishna Realty data last checked: Mar 16, 2026 15:58 | Listing last modified Jan 08, 2026 18:00,
Source:
A fantastic and rare opportunity to acquire a centrally located warehouse and shop property just off Highway 101. This versatile commercial building offers approximately 4,500 square feet and is well-suited for a wide range of business uses. There is a modest living area and a full bath upstairs. The layout includes a dedicated office, two truck bays, and additional office space and storage on the second floor, providing flexibility for operations, inventory, and administrative needs. The design supports efficient workflow while allowing room for growth or customization. A great opportunity if you also need a vast parking area. Properties of this type and location are seldom available. Buyers are encouraged to verify square footage and confirm allowable uses directly with the City of Brookings. Please inquire for additional information and ask to see the 3D tour.