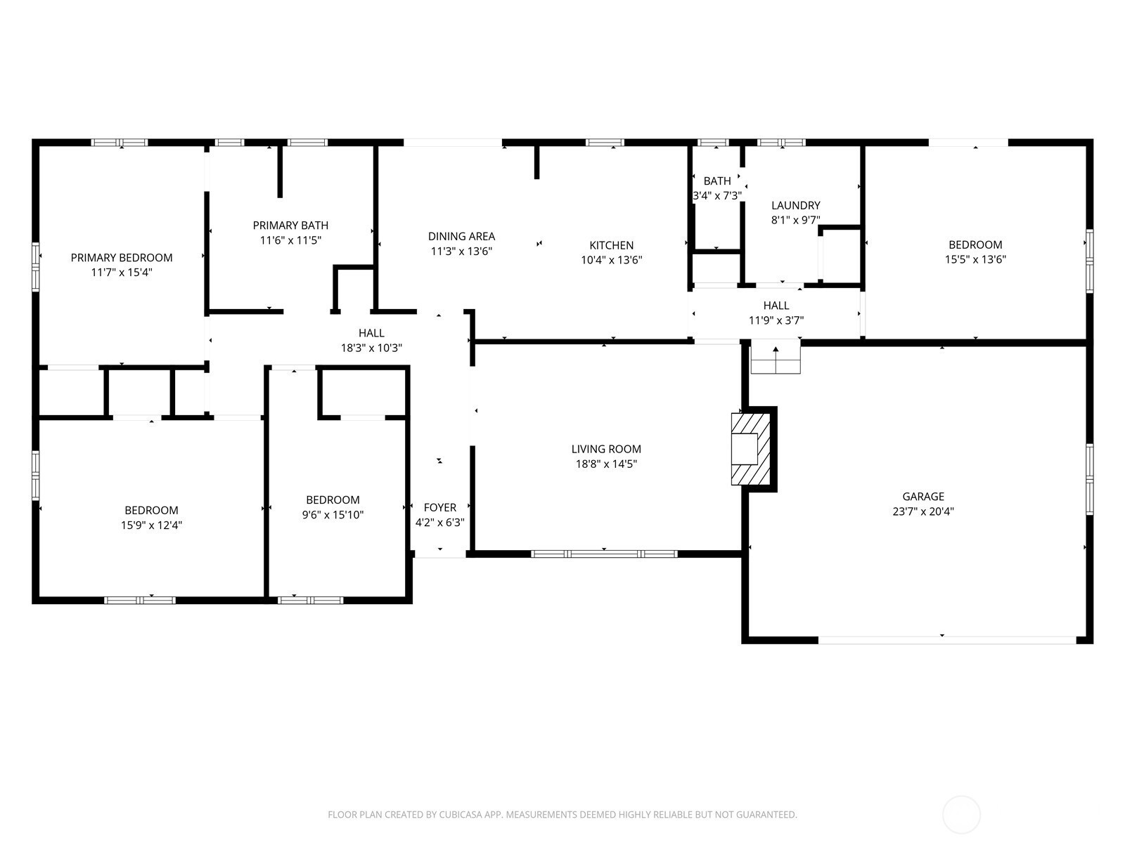
Charming one-level home on a roomy 0.75-acre lot. Features 3 bedrooms, 2 baths, a living room with wood-burning insert, bonus room/4th bedroom, and separate utility room. The kitchen opens to a large dining area with slider to the back deck. Enjoy a spacious backyard with deck, fire pit, mature landscaping, fruit trees, garden space, and a fenced pet area with wooded trails. RV parking, storage shed, double garage, extra parking, and fenced front yard add convenience. Central A/C, new laminate floors, and a remodeled bath with deep clawfoot tub. Close to I-5, waterfront, shops, restaurants, golfing, and world-class fishing.
Listing Provided Courtesy of Elisha Jolma, Sho'me Real Estate
General Information
NWM2456954
Single Family Residence
1
DOM
3
0.72 acres
2
2211
1970
Cowlitz
Kalama Elem
Kalama Jnr Snr
Kalama Jnr Snr
Residential
Single Family Residence
Listing Provided Courtesy of Elisha Jolma, Sho'me Real Estate
Krishna Realty data last checked: Nov 23, 2025 04:12 | Listing last modified Nov 23, 2025 04:25,
Source:
Charming one-level home on a roomy 0.75-acre lot. Features 3 bedrooms, 2 baths, a living room with wood-burning insert, bonus room/4th bedroom, and separate utility room. The kitchen opens to a large dining area with slider to the back deck. Enjoy a spacious backyard with deck, fire pit, mature landscaping, fruit trees, garden space, and a fenced pet area with wooded trails. RV parking, storage shed, double garage, extra parking, and fenced front yard add convenience. Central A/C, new laminate floors, and a remodeled bath with deep clawfoot tub. Close to I-5, waterfront, shops, restaurants, golfing, and world-class fishing.