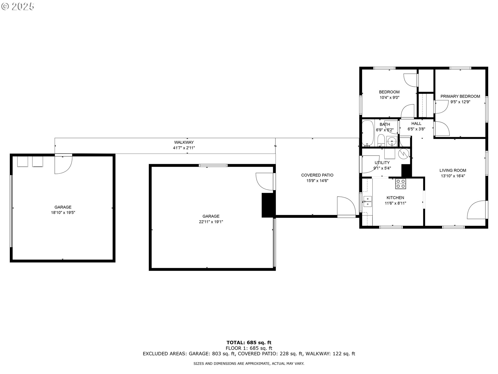
Need shop space? This has just approximately 800 sf of shop...ready for your tools, your toys or hobbies. The house...Cute, clean adorable two bedroom 1 bath is turn key and ready for new owner! Upgrades to this home include fresh paint through out, new carpet, spacious kitchen w/tile backsplash, vinyl windows. Lovely and private covered patio w/ freshly poured concrete including walkway to back of property. Backyard is fenced. New Siding. New roof. Oversized single car garage has spacious shop area and another garage w/ access off alley has RV door. This home is darling and ready to go!
Listing Provided Courtesy of Kristina Mack, RE/MAX Premier Group
General Information
378922126
SingleFamilyResidence
302
DOM
2
1
720
1946
Cowlitz
06070
Olympic
Monticello
RA Long
Residential
SingleFamilyResidence
402 (OLYMPIC 1) -47 -33 32 -8N -2W
Listing Provided Courtesy of Kristina Mack, RE/MAX Premier Group
Krishna Realty data last checked: Jan 01, 2026 18:30 | Listing last modified Dec 10, 2025 10:11,
Source:
Need shop space? This has just approximately 800 sf of shop...ready for your tools, your toys or hobbies. The house...Cute, clean adorable two bedroom 1 bath is turn key and ready for new owner! Upgrades to this home include fresh paint through out, new carpet, spacious kitchen w/tile backsplash, vinyl windows. Lovely and private covered patio w/ freshly poured concrete including walkway to back of property. Backyard is fenced. New Siding. New roof. Oversized single car garage has spacious shop area and another garage w/ access off alley has RV door. This home is darling and ready to go!