Longview, 98632
4 Bed
3 Bath
1748 SqFt
1 DOM
Built: 1928
$525,000
$525000
4 Bed
3 Bath
1748 SqFt
1 DOM
Built: 1928
Principal Broker
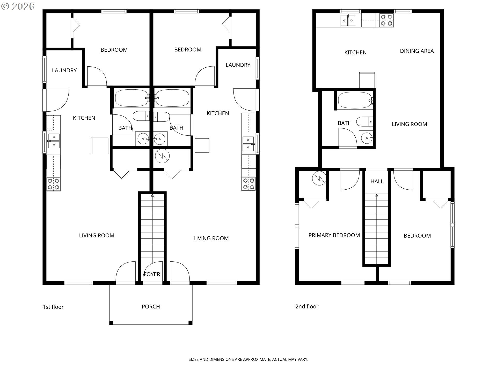
(503) 893-8874Excellent Investment Opportunity. Triplex just completely renovated down to the studs. New electrical, new plumbing, new roof and new Hardie Plank Siding. New insulation, drywall, freshly painted, New carpet and Vinyl Plank flooring throughout. New Appliances and fixtures. Two units main level with one bedroom, one bath each. Upstairs is a two bedroom, one bath unit. All units have Washer and Dryer hookups. Parking off street. Perfect to live in one and rent the other two units or as an addition to your investment portfolio.
Listing Provided Courtesy of Diane Lokan, John L. Scott/LVW
142019477
1 DOM
4
3
1748
1928
R04
Cowlitz
04198
Kessler
Monticello
RA Long
MultiFamily
226 (HIGHLANDS 2) -12 -4 5 -7N -2W
Listing Provided Courtesy of Diane Lokan, John L. Scott/LVW
Krishna Realty data last checked: Apr 11, 2026 01:54 | Listing last modified Apr 10, 2026 17:12,
Source:
Download our Mobile app
1748
4
3
Composition
OffStreet
2
1928
No
CementSiding
ConcretePerimeter
Electricity
WallHeater
PublicSewer
Electricity
Electricity
1464
Sewer,Water
Cash,Conventional,FHA,VALoan
04-10-2026
No
No
1
1
Cash,Conventional,FHA,VALoan
$525,000
$525,000
Apr 10, 2026 17:12
Listing courtesy of John L. Scott/LVW.
The content relating to real estate for sale on this site comes in part from the IDX program of the RMLS of Portland, Oregon.
Real Estate listings held by brokerage firms other than this firm are marked with the RMLS logo, and
detailed information about these properties include the name of the listing's broker.
Listing content is copyright © 2019 RMLS of Portland, Oregon.
All information provided is deemed reliable but is not guaranteed and should be independently verified.
Krishna Realty data last checked: Apr 11, 2026 01:54 | Listing last modified Apr 10, 2026 17:12.
Some properties which appear for sale on this web site may subsequently have sold or may no longer be available.
Principal Broker
(503) 893-8874Excellent Investment Opportunity. Triplex just completely renovated down to the studs. New electrical, new plumbing, new roof and new Hardie Plank Siding. New insulation, drywall, freshly painted, New carpet and Vinyl Plank flooring throughout. New Appliances and fixtures. Two units main level with one bedroom, one bath each. Upstairs is a two bedroom, one bath unit. All units have Washer and Dryer hookups. Parking off street. Perfect to live in one and rent the other two units or as an addition to your investment portfolio.
Download our Mobile app