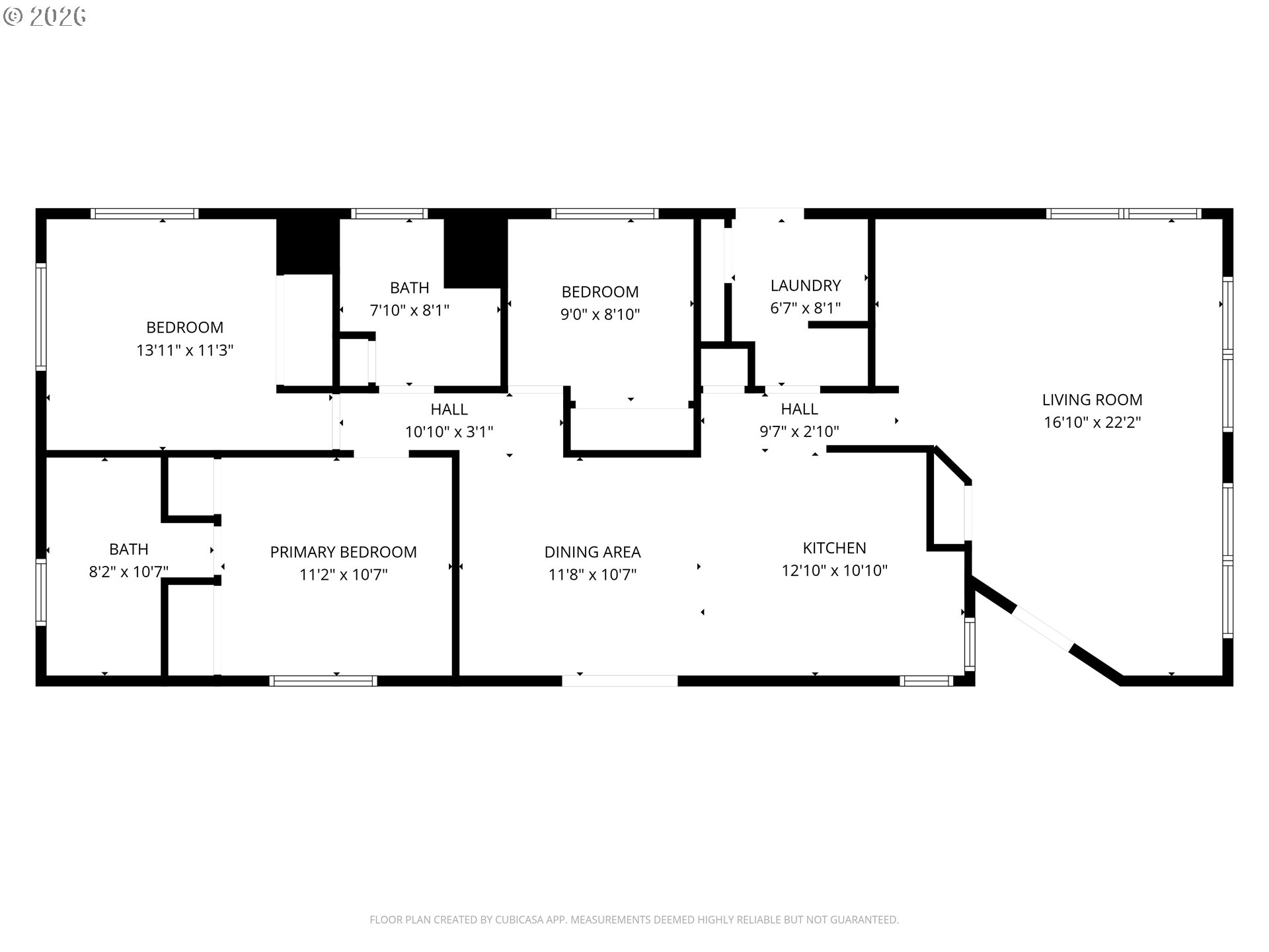
Welcome to easy, comfortable living in Kelso’s desirable 55+ Brook Hollow RV Park! This well-designed 3-bedroom, 2-bath, 1,433 sq. ft. double-wide manufactured home offers both space and charm. Enjoy a bright front living room filled with natural light from expansive windows, plus a cozy family room with a sliding door that opens to a covered deck—perfect for relaxing or entertaining year-round. The kitchen is thoughtfully equipped with bar seating, a pantry, built-in oven, cooktop, and microwave, making meal prep a breeze. A standout feature is the beautiful built-in, lighted curio/china hutch, ideal for showcasing your favorite pieces. The primary suite provides comfort and convenience with dual closets and a private bath featuring a step-in shower, while two additional bedrooms offer flexibility for guests or hobbies. A utility room just off the kitchen adds valuable extra storage and direct access to the carport. Sellers recently added a large storage shed and new appliances. This home combines function and style in a welcoming community setting. Sale is subject to park approval of the buyer.
Listing Provided Courtesy of Tesha Perry, Keller Williams Realty
General Information
734118926
ManufacturedHomeinPark
1
DOM
3
2
1432
1977
Cowlitz
7323
Butler Acres
Coweeman
Kelso
Residential
ManufacturedHomeinPark
25 -8N -2W VIN# 0534; 1977 GUERDON VANDYKE 2460.
Listing Provided Courtesy of Tesha Perry, Keller Williams Realty
Krishna Realty data last checked: Apr 23, 2026 04:17 | Listing last modified Apr 22, 2026 12:44,
Source:
Welcome to easy, comfortable living in Kelso’s desirable 55+ Brook Hollow RV Park! This well-designed 3-bedroom, 2-bath, 1,433 sq. ft. double-wide manufactured home offers both space and charm. Enjoy a bright front living room filled with natural light from expansive windows, plus a cozy family room with a sliding door that opens to a covered deck—perfect for relaxing or entertaining year-round. The kitchen is thoughtfully equipped with bar seating, a pantry, built-in oven, cooktop, and microwave, making meal prep a breeze. A standout feature is the beautiful built-in, lighted curio/china hutch, ideal for showcasing your favorite pieces. The primary suite provides comfort and convenience with dual closets and a private bath featuring a step-in shower, while two additional bedrooms offer flexibility for guests or hobbies. A utility room just off the kitchen adds valuable extra storage and direct access to the carport. Sellers recently added a large storage shed and new appliances. This home combines function and style in a welcoming community setting. Sale is subject to park approval of the buyer.