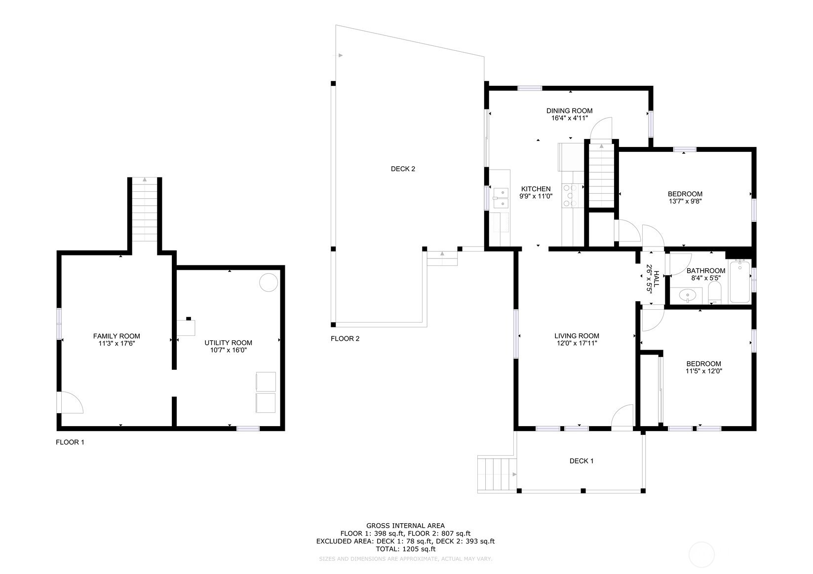
RIVERFRONT PROPERTY!! Welcome to this charming 2 bed /1 bath home with beautiful river views! Upstairs offers the kitchen, dining room, living room, and two spacious bedrooms w/ a bathroom. The finished basement offers great flexibility for a bonus room, extra living space, home office, or hobby area. Step outside and enjoy the covered patio and deck, perfect for relaxing, entertaining, or taking in the scenery year-round. With inviting spaces inside and out, this home offers comfort, function, and a setting you’ll love. Great location in the heart of Kalama! Walking distance to local shops and dining. Come see today!
Listing Provided Courtesy of Kori Burke, Windermere Northwest Living
General Information
NWM2502926
Single Family Residence
1
DOM
2
8929.8 SqFt
1
1280
1925
Cowlitz
Residential
Single Family Residence
Listing Provided Courtesy of Kori Burke, Windermere Northwest Living
Krishna Realty data last checked: Apr 11, 2026 01:45 | Listing last modified Apr 11, 2026 04:38,
Source:
RIVERFRONT PROPERTY!! Welcome to this charming 2 bed /1 bath home with beautiful river views! Upstairs offers the kitchen, dining room, living room, and two spacious bedrooms w/ a bathroom. The finished basement offers great flexibility for a bonus room, extra living space, home office, or hobby area. Step outside and enjoy the covered patio and deck, perfect for relaxing, entertaining, or taking in the scenery year-round. With inviting spaces inside and out, this home offers comfort, function, and a setting you’ll love. Great location in the heart of Kalama! Walking distance to local shops and dining. Come see today!