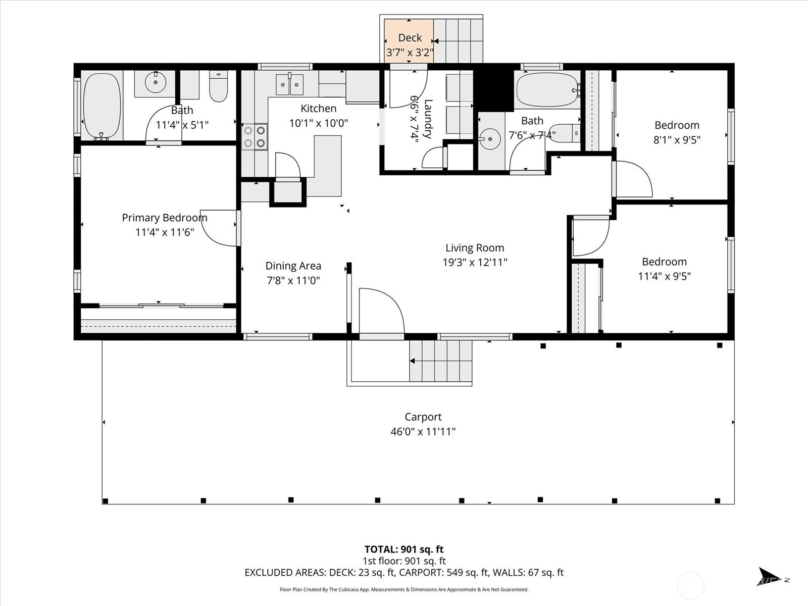
Nice 3 bedroom 2 full bath home in TimWa 55+ manufactured home park. Primary has an attached full bathroom with a large closet. Kitchen comes with stove and dishwasher. Washer/Dryer included. 2 additional bedrooms and another full size bathroom with a vaulted spacious living room and dining area round out this clean and move in ready home. Newer laminate wood floors and neutral paint colors will make for a calm and peaceful home. The yard has a tool shed and a covered carport.
Listing Provided Courtesy of Melissa Erickson, Windermere Northwest Living
General Information
NWM2474684
Manufactured Home
6
DOM
3
4477.97 SqFt
2
960
1998
Cowlitz
Residential
Manufactured Home
Listing Provided Courtesy of Melissa Erickson, Windermere Northwest Living
Krishna Realty data last checked: Mar 14, 2026 06:30 | Listing last modified Feb 04, 2026 16:55,
Source:
Nice 3 bedroom 2 full bath home in TimWa 55+ manufactured home park. Primary has an attached full bathroom with a large closet. Kitchen comes with stove and dishwasher. Washer/Dryer included. 2 additional bedrooms and another full size bathroom with a vaulted spacious living room and dining area round out this clean and move in ready home. Newer laminate wood floors and neutral paint colors will make for a calm and peaceful home. The yard has a tool shed and a covered carport.