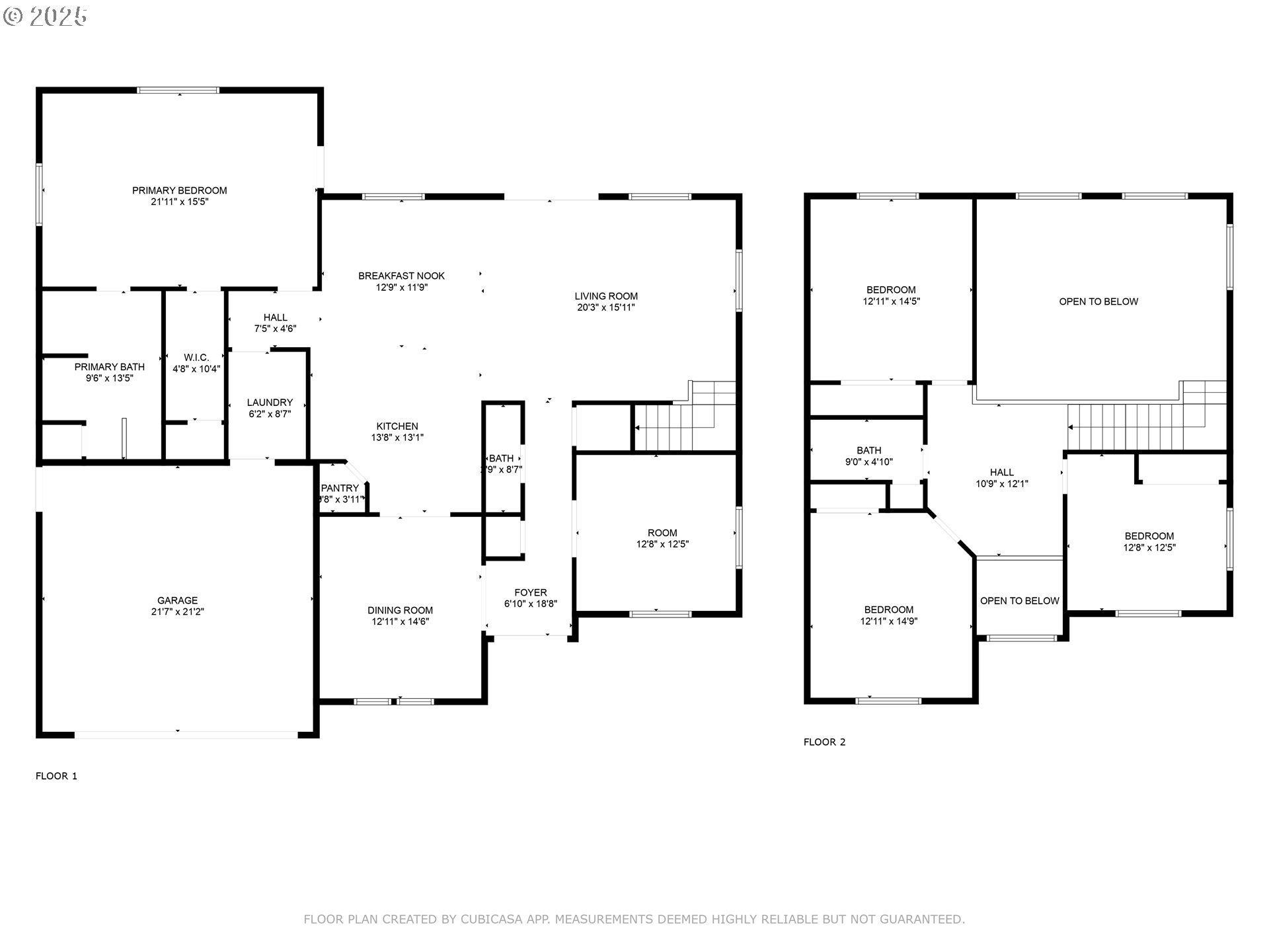
Brand-New Coastal Retreat on Bastendorf Beach Road – Nearly 3,000 Sq Ft on 3.58 AcresDon’t miss this rare opportunity to own a brand-new home just a quarter mile from the sands of Bastendorf Beach. Set along Bastendorf Beach Road—where only five homes share this coveted address—this never-lived-in property offers nearly 3,000 square feet of thoughtfully designed living space, all situated on 3.58 acres spanning two tax lots.The spacious layout features four bedrooms and two and a half bathrooms. The primary suite is conveniently located on the main level, while the upper floor boasts three additional bedrooms, a full bath, and a versatile bonus area perfect for a home office, reading nook, or library.Enjoy modern comfort with a heat pump system, and savor the coastal ambiance from the expansive wrap-around covered deck. A ramp leads to the front entry, providing enhanced accessibility for residents and guests alike.Beyond the home itself, the property offers enticing possibilities, including the potential for a second home site thanks to its generous acreage and dual tax lots. The grounds remain ready for your vision, with landscaping yet to be completed, allowing you to create your own coastal oasis.Whether you’re looking for a serene primary residence, a beachside getaway, or a property with development potential, this Bastendorf Beach gem combines new construction, prime location, and future opportunity in one exceptional offering.
Listing Provided Courtesy of Randy Hoffine, Pacific Properties
General Information
624908910
SingleFamilyResidence
177
DOM
4
3.58 acres
2.5
2865
2024
EFU
Coos
568000
Madison 3/10
Sunset 3/10
Marshfield 4/10
Residential
SingleFamilyResidence
26S 14 03C TL 700 & 900
Listing Provided Courtesy of Randy Hoffine, Pacific Properties
Krishna Realty data last checked: Jan 11, 2026 00:07 | Listing last modified Jan 02, 2026 13:59,
Source:
Brand-New Coastal Retreat on Bastendorf Beach Road – Nearly 3,000 Sq Ft on 3.58 AcresDon’t miss this rare opportunity to own a brand-new home just a quarter mile from the sands of Bastendorf Beach. Set along Bastendorf Beach Road—where only five homes share this coveted address—this never-lived-in property offers nearly 3,000 square feet of thoughtfully designed living space, all situated on 3.58 acres spanning two tax lots.The spacious layout features four bedrooms and two and a half bathrooms. The primary suite is conveniently located on the main level, while the upper floor boasts three additional bedrooms, a full bath, and a versatile bonus area perfect for a home office, reading nook, or library.Enjoy modern comfort with a heat pump system, and savor the coastal ambiance from the expansive wrap-around covered deck. A ramp leads to the front entry, providing enhanced accessibility for residents and guests alike.Beyond the home itself, the property offers enticing possibilities, including the potential for a second home site thanks to its generous acreage and dual tax lots. The grounds remain ready for your vision, with landscaping yet to be completed, allowing you to create your own coastal oasis.Whether you’re looking for a serene primary residence, a beachside getaway, or a property with development potential, this Bastendorf Beach gem combines new construction, prime location, and future opportunity in one exceptional offering.