Coos Bay, 97420
3 Bed
2 Bath
2380 SqFt
1 DOM
Built: 1990
$369,000
$369000
3 Bed
2 Bath
2380 SqFt
1 DOM
Built: 1990
Principal Broker
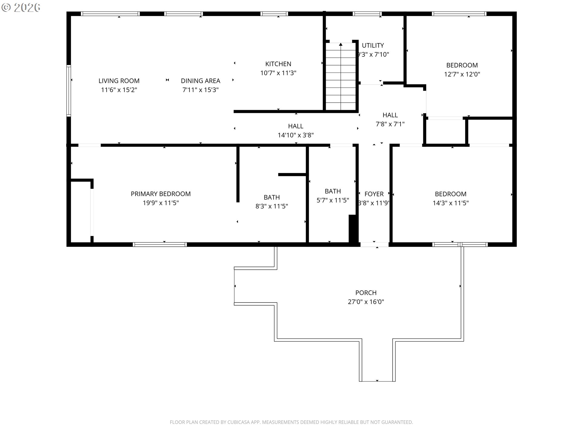
(503) 893-8874Coos Bay three bedroom, two bath home on a large corner lot with mature trees that create a private, country feel. The two-story layout features the main living area upstairs, bringing in great natural light and a light, airy feel along with peek-a-boo bay views.The lower level offers a large garage and spacious bonus room with plenty of potential.Open floor plan with kitchen, dining and living areas flowing together. Generous primary bedroom with its own private bath, featuring a solar tube for added natural light. Separate laundry room located just before heading downstairs. Additional touches include added wood shelving for extra storage. Large corner lot offers room for RV, boats and more. New siding and a new back door are already scheduled.
Listing Provided Courtesy of Trudy Holmen, Pacific Properties
438194480
SingleFamilyResidence
1 DOM
3
2
2380
1990
R2
Coos
1957400
Madison 3/10
Sunset 3/10
Marshfield 4/10
Residential
SingleFamilyResidence
SEC 19 TWN 25S RNG
Listing Provided Courtesy of Trudy Holmen, Pacific Properties
Krishna Realty data last checked: Apr 18, 2026 04:07 | Listing last modified Apr 17, 2026 10:44,
Source:
Download our Mobile app
0
1512
868
2380
county
1512
3
2
0
2
Composition
2, Attached
Stories2
OffStreet,RVAccessPa
2
1990
No
CementSiding
Daylight
RVParking
Daylight
ConcretePerimeter,Sl
VinylFrames
Dishwasher, Disposal, FreeStandingRange, FreeStandingRefrigerator
Laundry, SolarTube, VinylFloor
RVParking, Yard
WalkinShower
None
Electricity
Zoned
PublicSewer
Electricity
Electricity
4004.75
0
CallListingAgent,Cash,Conventional,Rehab,VALoan
04-17-2026
No
No
1
1
CallListingAgent,Cash,Conventional,Rehab,VALoan
$369,000
$369,000
Apr 17, 2026 10:44
Listing courtesy of Pacific Properties.
The content relating to real estate for sale on this site comes in part from the IDX program of the RMLS of Portland, Oregon.
Real Estate listings held by brokerage firms other than this firm are marked with the RMLS logo, and
detailed information about these properties include the name of the listing's broker.
Listing content is copyright © 2019 RMLS of Portland, Oregon.
All information provided is deemed reliable but is not guaranteed and should be independently verified.
Krishna Realty data last checked: Apr 18, 2026 04:07 | Listing last modified Apr 17, 2026 10:44.
Some properties which appear for sale on this web site may subsequently have sold or may no longer be available.
Principal Broker
(503) 893-8874Coos Bay three bedroom, two bath home on a large corner lot with mature trees that create a private, country feel. The two-story layout features the main living area upstairs, bringing in great natural light and a light, airy feel along with peek-a-boo bay views.The lower level offers a large garage and spacious bonus room with plenty of potential.Open floor plan with kitchen, dining and living areas flowing together. Generous primary bedroom with its own private bath, featuring a solar tube for added natural light. Separate laundry room located just before heading downstairs. Additional touches include added wood shelving for extra storage. Large corner lot offers room for RV, boats and more. New siding and a new back door are already scheduled.
Download our Mobile app