Vernonia, 97064
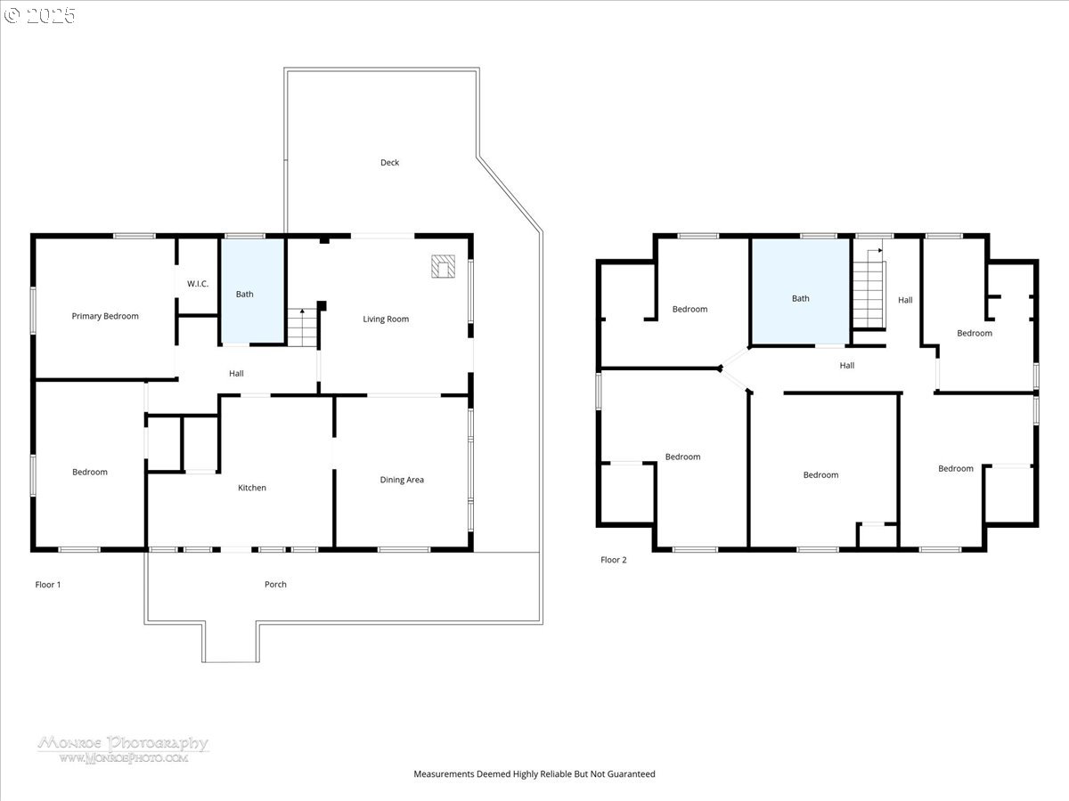
7 Bed
2 Bath
2336 SqFt
1 DOM
Built: 1950
$599,950
$599950
7 Bed
2 Bath
2336 SqFt
1 DOM
Built: 1950
Principal Broker
(503) 893-8874Enjoy the perfect blend of historic charm and rural living on this beautiful 7+ acre property featuring horse pasture, hay fields, and nearby riding trails. This seven-bedroom (five upstairs are noncomforming) farmhouse offers timeless character with original knot-free fir floors on the main level as well as original wood framed windows and detailed baseboards, crown and picture moldings, pocket doors, and abundant natural light. Upstairs you’ll find fresh paint, new carpet, and an updated bathroom, while the full unfinished basement provides ample potential for storage or expansion.Outdoors, the property shines with fruit and walnut trees, grapevines, and Battle Creek flowing through the land. Farm-ready amenities include a three-bay pole barn ideal for a shop, RV storage, stalls, or equipment, along with a charming hay barn and tack room. New well house, newer roof, expansive wood deck and plenty of room for animals and crops complete the picture. Come experience the beauty and freedom of country living today!
Listing Provided Courtesy of Andrea Jones, John L. Scott Market Center
539403041
SingleFamilyResidence
1 DOM
7
7.34 acres
2
2336
1950
CO:RR5
Columbia
25039
Vernonia 4/10
Vernonia 4/10
Vernonia 4/10
Residential
SingleFamilyResidence
see trio
Listing Provided Courtesy of Andrea Jones, John L. Scott Market Center
Krishna Realty data last checked: Jan 15, 2026 02:40 | Listing last modified Sep 26, 2025 10:46,
Source:
Download our Mobile app
1136
1200
0
2336
tax record
2336
1/Gas
7
2
0
2
Composition
Stories2,Farmhouse
OffStreet,OnStreet
2
1950
No
BoardBattenSiding, Cedar
ExteriorEntry,Unfinished
RVParking
ExteriorEntry,Unfini
ConcretePerimeter
VinylFrames,WoodFram
BuiltinFeatures, ExteriorEntry
Dishwasher, DownDraft, FreeStandingRange, FreeStandingRefrigerator, GasAppliances, Island
CeilingFan, HighCeilings, WalltoWallCarpet, WoodFloors
Barn, CoveredDeck, Deck, Fenced, Outbuilding, Porch, PoultryCoop, RVParking, Yard
None
Gas
ForcedAir
SepticTank
Gas
Gas
2997.62
0
Cash,Conventional
09-25-2025
No
No
1
112
Cash,Conventional
$599,950
$599,950
Sep 26, 2025 10:46
Listing courtesy of John L. Scott Market Center.
The content relating to real estate for sale on this site comes in part from the IDX program of the RMLS of Portland, Oregon.
Real Estate listings held by brokerage firms other than this firm are marked with the RMLS logo, and
detailed information about these properties include the name of the listing's broker.
Listing content is copyright © 2019 RMLS of Portland, Oregon.
All information provided is deemed reliable but is not guaranteed and should be independently verified.
Krishna Realty data last checked: Jan 15, 2026 02:40 | Listing last modified Sep 26, 2025 10:46.
Some properties which appear for sale on this web site may subsequently have sold or may no longer be available.
Principal Broker
(503) 893-8874Enjoy the perfect blend of historic charm and rural living on this beautiful 7+ acre property featuring horse pasture, hay fields, and nearby riding trails. This seven-bedroom (five upstairs are noncomforming) farmhouse offers timeless character with original knot-free fir floors on the main level as well as original wood framed windows and detailed baseboards, crown and picture moldings, pocket doors, and abundant natural light. Upstairs you’ll find fresh paint, new carpet, and an updated bathroom, while the full unfinished basement provides ample potential for storage or expansion.Outdoors, the property shines with fruit and walnut trees, grapevines, and Battle Creek flowing through the land. Farm-ready amenities include a three-bay pole barn ideal for a shop, RV storage, stalls, or equipment, along with a charming hay barn and tack room. New well house, newer roof, expansive wood deck and plenty of room for animals and crops complete the picture. Come experience the beauty and freedom of country living today!
Download our Mobile app