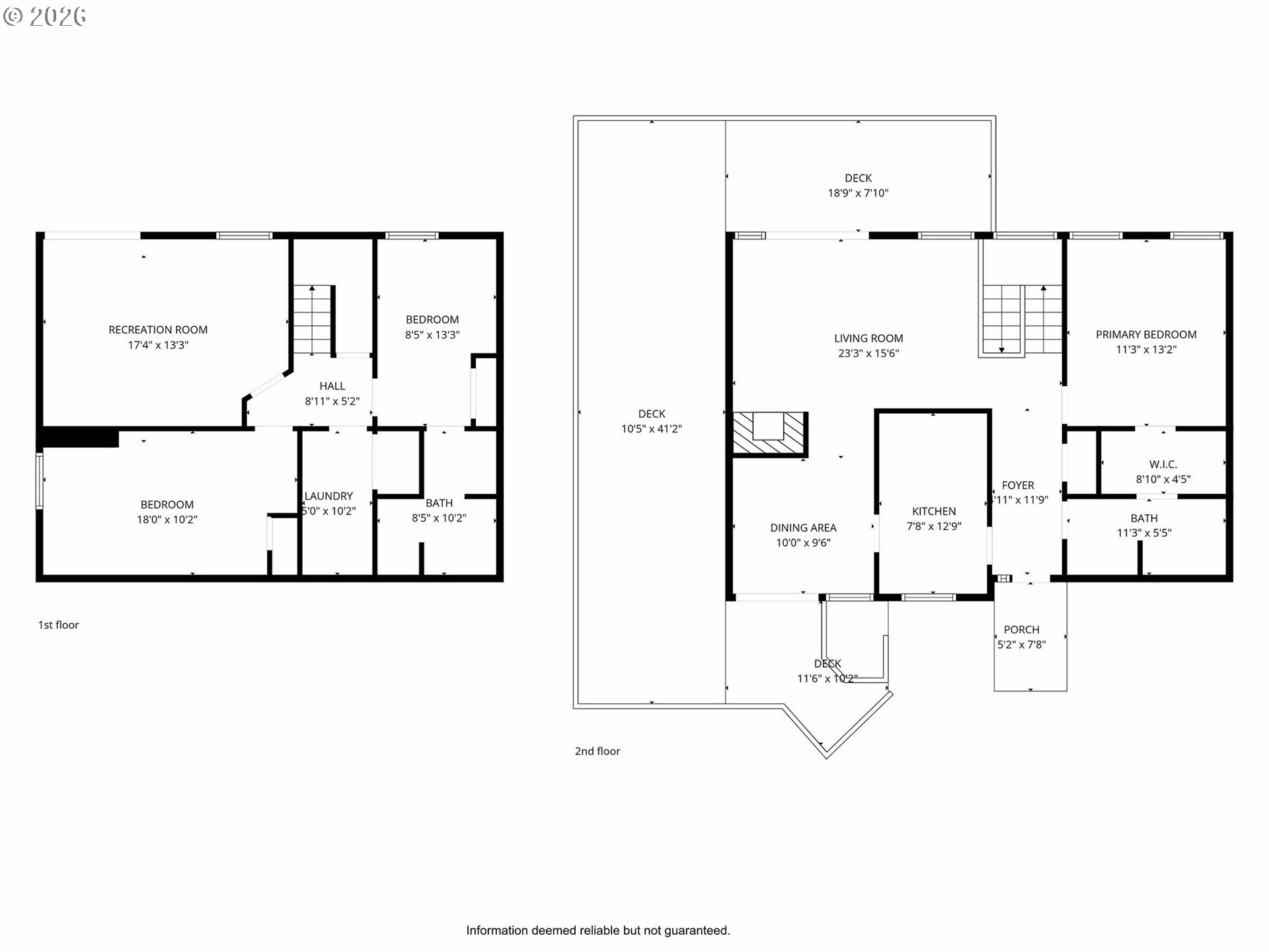
Perched to capture breathtaking panoramic views of Portland city lights, surrounding mountains, and the charming City of St. Helens, this home offers a rare blend of scenery and comfort.The primary suite on the main level features a walk-in closet, skylights that fill the space with natural light, and a beautifully remodeled bathroom with a tile shower. Thoughtful updates continue throughout with new luxury vinyl plank flooring in the bathrooms, kitchen, lower bedrooms, and family room—bringing both style and durability.Enjoy indoor-outdoor living with a spacious deck and hot tub, perfect for soaking in those incredible views year-round. A greenhouse adds even more versatility for gardening enthusiasts or those looking to create their own private oasis.The seller will have a licensed and bonded roofer install a brand-new roof prior to closing, with buyers having the opportunity to choose the roof color—a rare chance to personalize your new home before move-in.
Listing Provided Courtesy of Tammy Scamfer, MORE Realty
General Information
118648272
SingleFamilyResidence
23
DOM
3
0.55 acres
2
1720
1967
Columbia
14886
McBride 2/10
St Helens 4/10
St Helens 4/10
Residential
SingleFamilyResidence
In LIsting Office
Listing Provided Courtesy of Tammy Scamfer, MORE Realty
Krishna Realty data last checked: May 08, 2026 19:47 | Listing last modified Apr 15, 2026 13:51,
Source:
Download our Mobile app
Residence Information
0
928
792
1720
County
928
1/Gas
3
2
0
2
Composition
2, Attached
DaylightRanch
Driveway
2
1967
No
WoodSiding
Finished
RVParking
Finished
ConcretePerimeter,Sl
Features and Utilities
Deck, Fireplace
CentralAir
Gas
ForcedAir
SandFiltered, SepticTank
Gas
Gas
Financial
4026
0
Cash,Conventional,FHA,VALoan
04-15-2026
No
No
Comparable Information
23
23
Cash,Conventional,FHA,VALoan
$560,000
$560,000
Apr 15, 2026 13:51
Schools
public Elementary : McBride
2/10Ratingspublic Middle : St Helens
4/10Ratingspublic High : St Helens
4/10Ratings
Perched to capture breathtaking panoramic views of Portland city lights, surrounding mountains, and the charming City of St. Helens, this home offers a rare blend of scenery and comfort.The primary suite on the main level features a walk-in closet, skylights that fill the space with natural light, and a beautifully remodeled bathroom with a tile shower. Thoughtful updates continue throughout with new luxury vinyl plank flooring in the bathrooms, kitchen, lower bedrooms, and family room—bringing both style and durability.Enjoy indoor-outdoor living with a spacious deck and hot tub, perfect for soaking in those incredible views year-round. A greenhouse adds even more versatility for gardening enthusiasts or those looking to create their own private oasis.The seller will have a licensed and bonded roofer install a brand-new roof prior to closing, with buyers having the opportunity to choose the roof color—a rare chance to personalize your new home before move-in.