Scappoose, 97056
4 Bed
2 Bath
3185 SqFt
62 DOM
Built: 1952
$1,800,000
$1800000
4 Bed
2 Bath
3185 SqFt
62 DOM
Built: 1952
Principal Broker
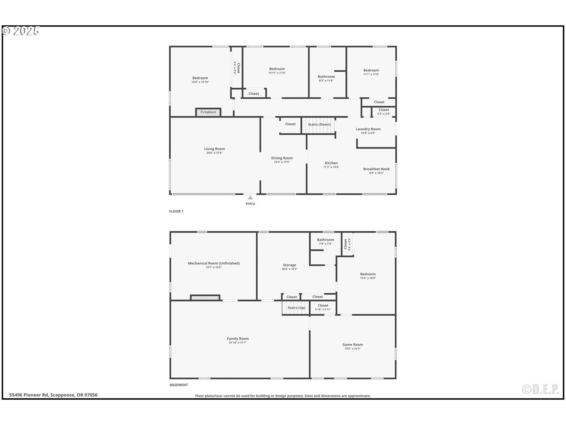
(503) 893-8874Welcome to a truly unique offering - a sprawling 43.89 acre estate in the hills of Scappoose, Oregon with true panoramic view of downtown Portland, Mt Hood, Mt St Helens, Mt Rainier and beyond. The home features a 3,185 sq ft residence built in 1952. With 4 bedrooms and 2 bathrooms, this two-level home offers potential for both restoration and reinvention, combining timeless charm with room to expand. The home includes a huge covered deck, large windows to let the views come inside, formal and informal dining rooms, large living room with a fireplace, a finished basement with a family room plus bonus room. With 2 barns, a mechanic shed, covered equipment storage, detached garage/workshop and additional outbuilds, the possibilities are endless. Fenced and cross fenced pastures have been hayed in the most recent past. This family owned property presents exceptional possibilities—ideal for equestrian pursuits, agricultural ventures, private retreat space or a multi-generational family homestead. This is your chance to secure large acreage parcels just minutes from schools, local amenities, and natural beauty. You truly have unmatched square footage and acreage to bring your aspirations to life here. Please no drive bys as this property is located at the end of a road and nothing is visible from there. Schedule a private showing to see all there is to see!
Listing Provided Courtesy of Lea Chitwood, RE/MAX Powerpros
582401421
SingleFamilyResidence
62 DOM
4
43.89 acres
2
3185
1952
RR-5
Columbia
8171
Petersen 4/10
Scappoose 4/10
Scappoose 4/10
Residential
SingleFamilyResidence
In listing office
Listing Provided Courtesy of Lea Chitwood, RE/MAX Powerpros
Krishna Realty data last checked: Dec 27, 2025 16:28 | Listing last modified Oct 14, 2025 13:16,
Source:
Download our Mobile app
0
1820
1365
3185
County
1820
1/Gas
4
2
0
2
Composition,Shingle
2, Detached, ExtraDeep
DaylightRanch
Driveway,RVAccessPar
2
1952
No
Block
Daylight,FullBasement,PartiallyFinished
Daylight,FullBasemen
ConcretePerimeter,Sl
DoublePaneWindows,Vi
BuiltinFeatures, CeilingFan, Fireplace
Dishwasher, Disposal, FreeStandingRange, FreeStandingRefrigerator, PlumbedForIceMaker
CeilingFan, ConcreteFloor, Laundry, VinylFloor, WalltoWallCarpet, WasherDryer
Barn, Corral, CoveredDeck, CrossFenced, Deck, Fenced, Garden, Outbuilding, Porch, RVParking, ToolShed, Workshop
NaturalLighting, Parking, UtilityRoomOnMain, WalkinShower
CentralAir, HeatPump
Electricity
ForcedAir, HeatPump
SepticTank, StandardSeptic
Electricity
Electricity
8892.29
0
Cash,Conventional,FarmCreditService
08-13-2025
No
No
62
136
Cash,Conventional,FarmCreditService
$1,800,000
$1,800,000
Oct 14, 2025 13:16
Listing courtesy of RE/MAX Powerpros.
The content relating to real estate for sale on this site comes in part from the IDX program of the RMLS of Portland, Oregon.
Real Estate listings held by brokerage firms other than this firm are marked with the RMLS logo, and
detailed information about these properties include the name of the listing's broker.
Listing content is copyright © 2019 RMLS of Portland, Oregon.
All information provided is deemed reliable but is not guaranteed and should be independently verified.
Krishna Realty data last checked: Dec 27, 2025 16:28 | Listing last modified Oct 14, 2025 13:16.
Some properties which appear for sale on this web site may subsequently have sold or may no longer be available.
Principal Broker
(503) 893-8874Welcome to a truly unique offering - a sprawling 43.89 acre estate in the hills of Scappoose, Oregon with true panoramic view of downtown Portland, Mt Hood, Mt St Helens, Mt Rainier and beyond. The home features a 3,185 sq ft residence built in 1952. With 4 bedrooms and 2 bathrooms, this two-level home offers potential for both restoration and reinvention, combining timeless charm with room to expand. The home includes a huge covered deck, large windows to let the views come inside, formal and informal dining rooms, large living room with a fireplace, a finished basement with a family room plus bonus room. With 2 barns, a mechanic shed, covered equipment storage, detached garage/workshop and additional outbuilds, the possibilities are endless. Fenced and cross fenced pastures have been hayed in the most recent past. This family owned property presents exceptional possibilities—ideal for equestrian pursuits, agricultural ventures, private retreat space or a multi-generational family homestead. This is your chance to secure large acreage parcels just minutes from schools, local amenities, and natural beauty. You truly have unmatched square footage and acreage to bring your aspirations to life here. Please no drive bys as this property is located at the end of a road and nothing is visible from there. Schedule a private showing to see all there is to see!
Download our Mobile app