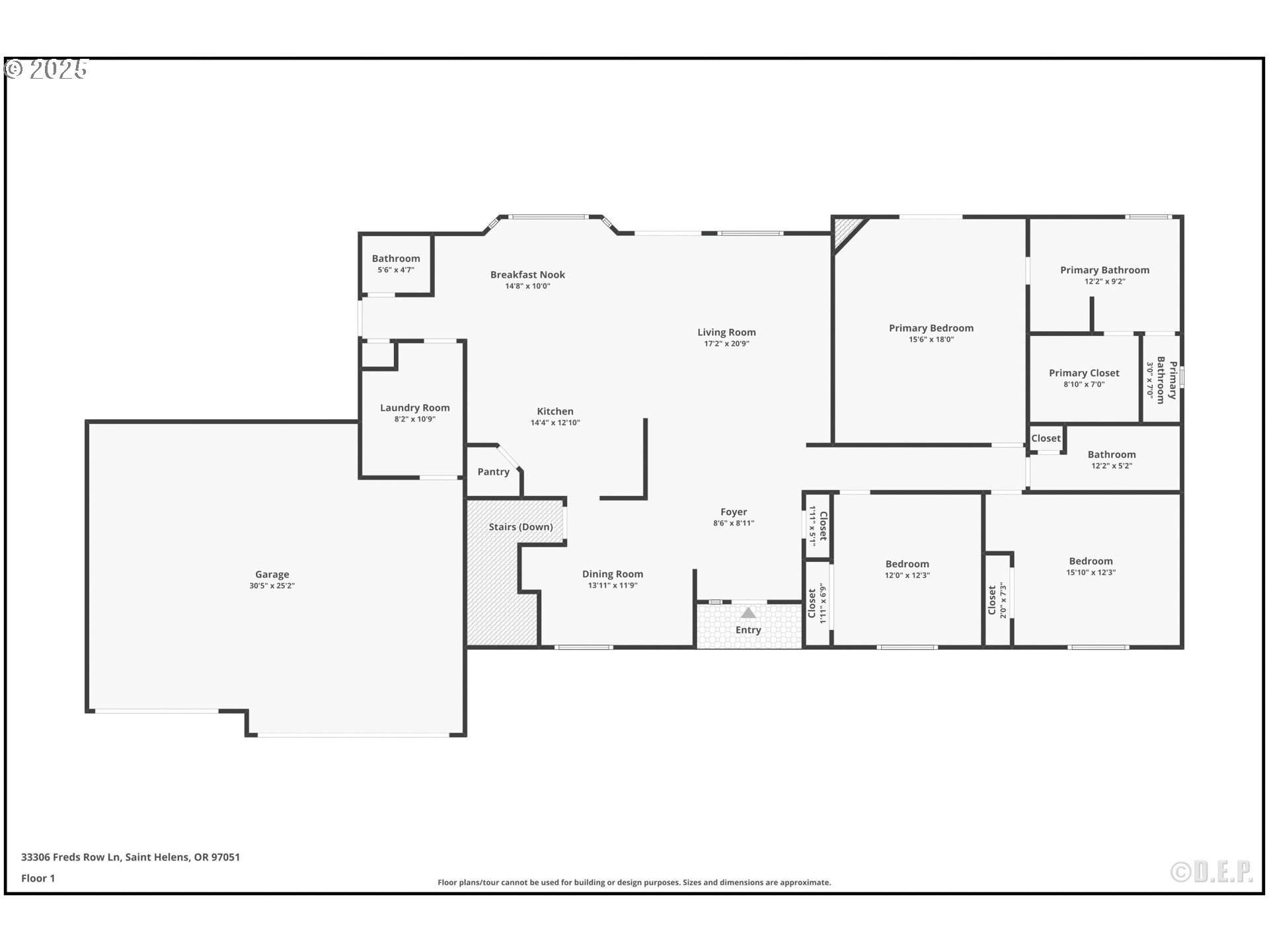
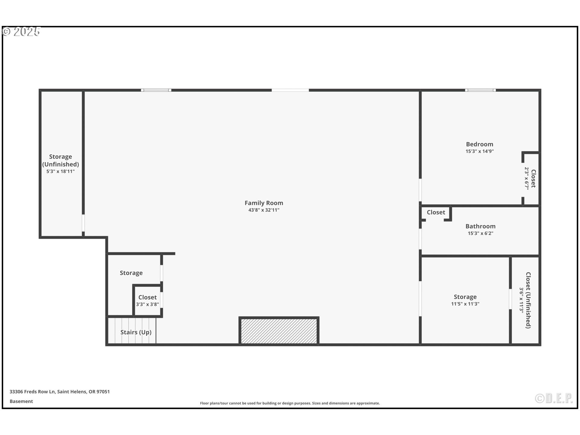
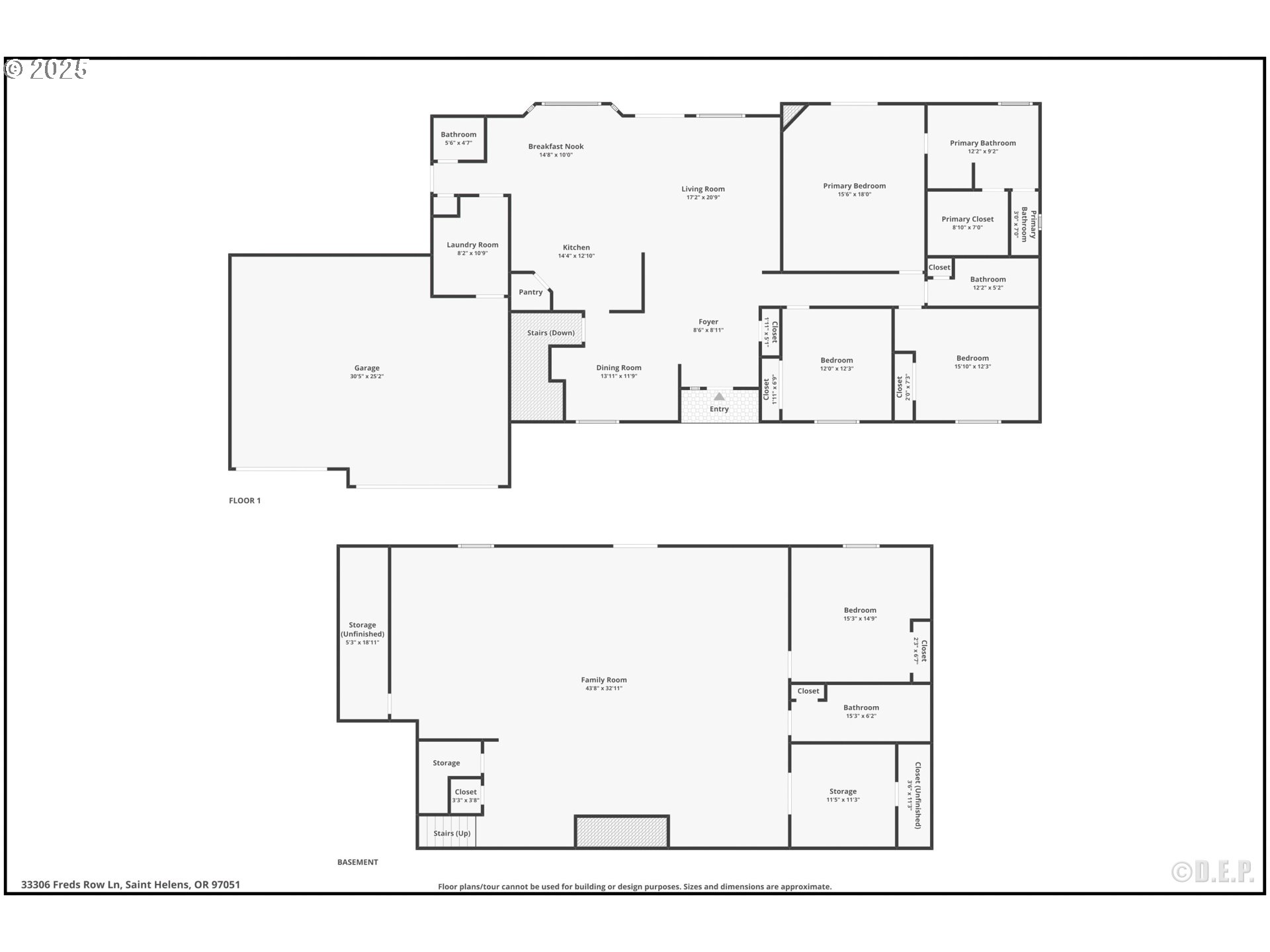
Welcome home to your 4,354 sq ft home in the heart of Yankton that perfectly blends comfort, functionality, and style. This spacious 4-bedroom, 3-bath residence features an inviting open-concept design with vaulted ceilings and abundant natural light. The chef’s kitchen boasts granite countertops, stainless steel appliances, and a pantry, flowing seamlessly into the great room for effortless entertaining. The large main level primary suite offers an en-suite bath and walk-in closet and doors out to the deck. Relax and enjoy your morning coffee/tea with views of the hillside, wildlife and mountains. All this while the fully finished basement provides a cozy woodstove, an additional huge family room and tons of storage space. Enjoy movie nights or gatherings here. You can also step outside to backyard with a fantastic covered patio ideal for year-round enjoyment. Don't miss the fully fenced garden space filled with blueberries plus the apple trees on the property. With a 3-car garage, smart home features, and energy-efficient upgrades throughout, this home is as practical as it is beautiful. If you are looking for shop space, there are plenty of options for that as well. All of this wrapped up on 2.94 acres ideally located making this the perfect place to call home.
Listing Provided Courtesy of Lea Chitwood, RE/MAX Powerpros
General Information
332895961
SingleFamilyResidence
256
DOM
4
2.94 acres
3.5
4354
2013
PA-80
Columbia
432443
McBride 2/10
St Helens 4/10
St Helens 4/10
Residential
SingleFamilyResidence
In listing office
Listing Provided Courtesy of Lea Chitwood, RE/MAX Powerpros
Krishna Realty data last checked: Apr 26, 2026 03:24 | Listing last modified Mar 23, 2026 11:03,
Source:
Welcome home to your 4,354 sq ft home in the heart of Yankton that perfectly blends comfort, functionality, and style. This spacious 4-bedroom, 3-bath residence features an inviting open-concept design with vaulted ceilings and abundant natural light. The chef’s kitchen boasts granite countertops, stainless steel appliances, and a pantry, flowing seamlessly into the great room for effortless entertaining. The large main level primary suite offers an en-suite bath and walk-in closet and doors out to the deck. Relax and enjoy your morning coffee/tea with views of the hillside, wildlife and mountains. All this while the fully finished basement provides a cozy woodstove, an additional huge family room and tons of storage space. Enjoy movie nights or gatherings here. You can also step outside to backyard with a fantastic covered patio ideal for year-round enjoyment. Don't miss the fully fenced garden space filled with blueberries plus the apple trees on the property. With a 3-car garage, smart home features, and energy-efficient upgrades throughout, this home is as practical as it is beautiful. If you are looking for shop space, there are plenty of options for that as well. All of this wrapped up on 2.94 acres ideally located making this the perfect place to call home.