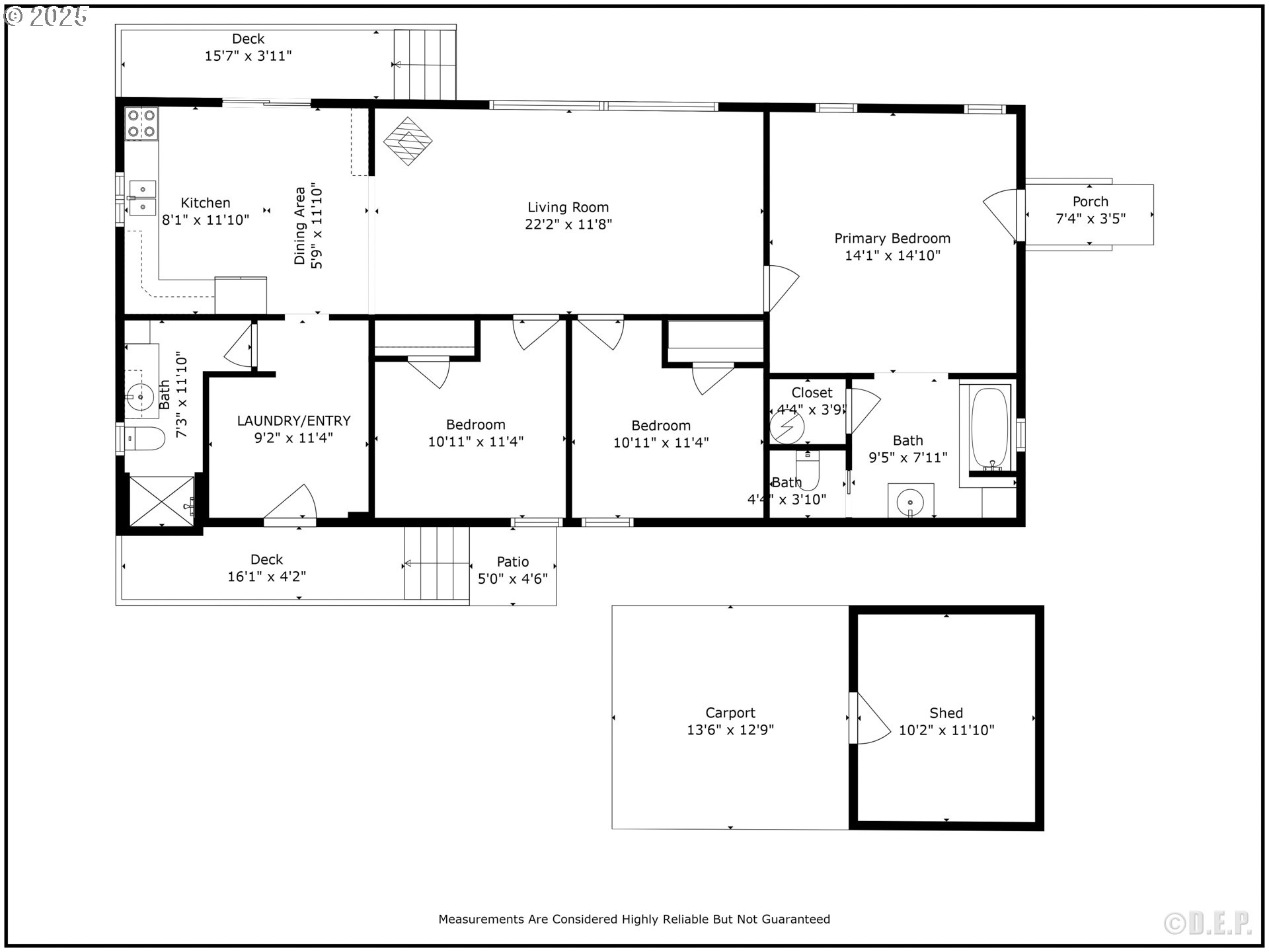
COLUMBIA RIVER VIEWS FROM YOUR OWN DECK — RAINIER, ORRiverside living, updated comfort, and a community that feels like home.Wake up to sweeping Columbia River views — including sightlines to the iconic Lewis and Clark Bridge connecting Rainier, Oregon and Longview, Washington — from this thoughtfully updated manufactured home just minutes from the water.Inside, 1,264 square feet feels bright and welcoming. The open living room centers around a cozy woodstove, with generous windows that frame those river views and a slider door opening onto one of two outdoor decks. The kitchen is ready to use with stainless steel appliances and a charming buffet area with an eat-up nook — perfect for casual mornings or entertaining.Recent updates take the guesswork out of ownership: new furnace, flooring, carpet, interior and exterior paint, modern fixtures, a new carport, and an outbuilding for extra storage. This one has been genuinely cared for.The primary suite includes backyard access, a soaking tub, and a walk-in closet. Two additional bedrooms, a full guest bath, a laundry room, and a mudroom round out a smart, functional floor plan with room for family or guests.Outside your door, the Columbia River offers boating, kayaking, and some of the best fishing in the region. Rainier's Grocery Outlet and everyday essentials are just minutes away, with Longview's shopping, dining, and hospital services close across the bridge. Portland and the Oregon Coast are each about an hour out — close enough for a day trip, far enough to feel like you've escaped.Rainier is the kind of town where neighbors know your name, walking trails are part of the daily routine, and the Fourth of July fireworks over the river are something the town looks forward to.Come see the views for yourself — schedule your tour today.
Listing Provided Courtesy of Michelle Langdon, Soldera Properties, Inc
General Information
416153852
ManufacturedHomeonRealProperty
208
DOM
3
5662.8 SqFt
2
1264
1983
Columbia
440349
Hudson Park 2/10
Rainier 3/10
Rainier 3/10
Residential
ManufacturedHomeonRealProperty
County
Listing Provided Courtesy of Michelle Langdon, Soldera Properties, Inc
Krishna Realty data last checked: Apr 26, 2026 18:23 | Listing last modified Apr 17, 2026 08:38,
Source:
COLUMBIA RIVER VIEWS FROM YOUR OWN DECK — RAINIER, ORRiverside living, updated comfort, and a community that feels like home.Wake up to sweeping Columbia River views — including sightlines to the iconic Lewis and Clark Bridge connecting Rainier, Oregon and Longview, Washington — from this thoughtfully updated manufactured home just minutes from the water.Inside, 1,264 square feet feels bright and welcoming. The open living room centers around a cozy woodstove, with generous windows that frame those river views and a slider door opening onto one of two outdoor decks. The kitchen is ready to use with stainless steel appliances and a charming buffet area with an eat-up nook — perfect for casual mornings or entertaining.Recent updates take the guesswork out of ownership: new furnace, flooring, carpet, interior and exterior paint, modern fixtures, a new carport, and an outbuilding for extra storage. This one has been genuinely cared for.The primary suite includes backyard access, a soaking tub, and a walk-in closet. Two additional bedrooms, a full guest bath, a laundry room, and a mudroom round out a smart, functional floor plan with room for family or guests.Outside your door, the Columbia River offers boating, kayaking, and some of the best fishing in the region. Rainier's Grocery Outlet and everyday essentials are just minutes away, with Longview's shopping, dining, and hospital services close across the bridge. Portland and the Oregon Coast are each about an hour out — close enough for a day trip, far enough to feel like you've escaped.Rainier is the kind of town where neighbors know your name, walking trails are part of the daily routine, and the Fourth of July fireworks over the river are something the town looks forward to.Come see the views for yourself — schedule your tour today.