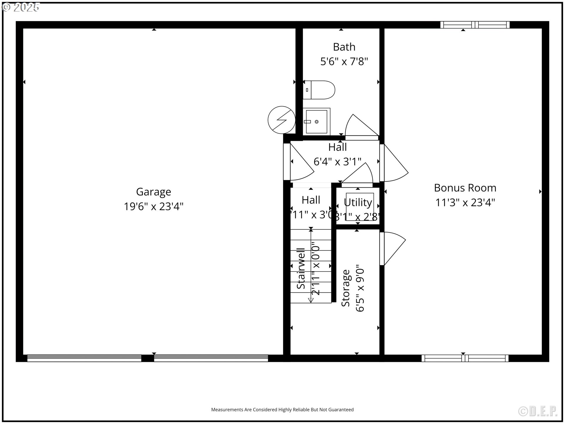
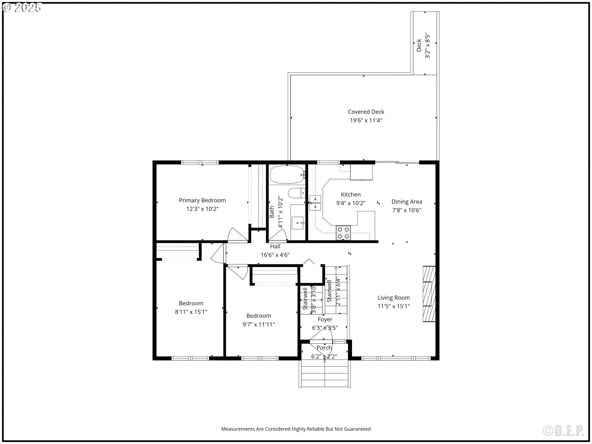
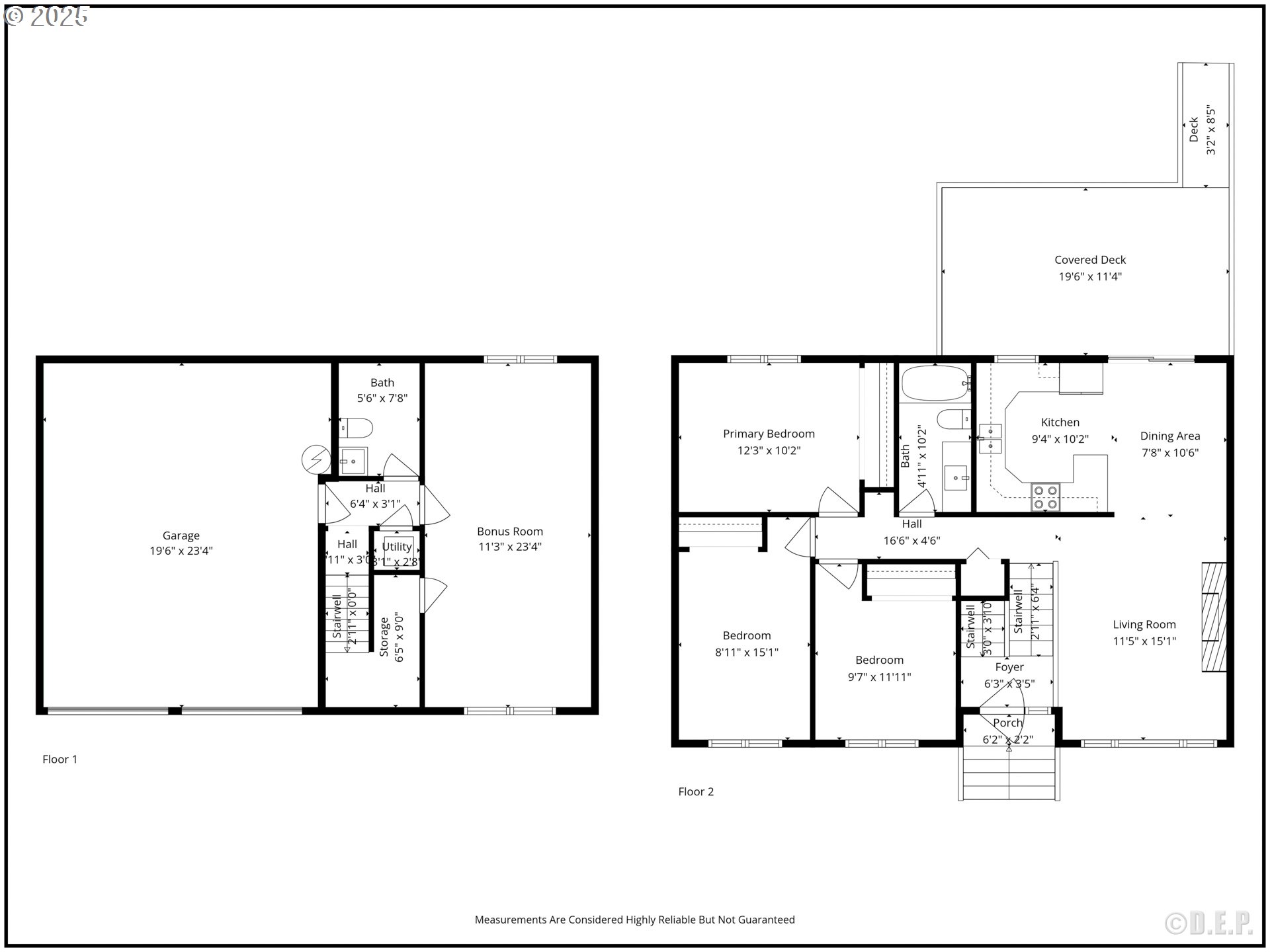
Take a look at this wonderful split level home that has been nicely updated! The upper main level includes 3 bedrooms, 1 full bath, living room, dining area with slider to the back deck, and the kitchen. Lower level has been completely finished with a large bonus room, and a half bath that includes washer/ dryer hookups. The garage is also completely finished and has a hot/cold water faucet. Some updates include Lifeproof 30 mil Vinyl plank flooring on both levels, newer carpet and new recessed lighting in the bedrooms, all new trim, doors, hardware, outlets, light switches, and a smart thermostat! The new electric and ventless fireplace in the living room encased by beautiful tile with a framed TV area. The entire home has been retextured and painted! Both bathrooms and been updated with new vanities. This wonderful home is in a great location putting you minutes away from Longview and I5. Schedule your private showing today!
Listing Provided Courtesy of Carly Jo Howe, RE/MAX Powerpros
General Information
685740538
SingleFamilyResidence
46
DOM
3
4791.6 SqFt
1.5
1408
1977
R-2
Columbia
18508
Hudson Park 2/10
Rainier 3/10
Rainier 3/10
Residential
SingleFamilyResidence
BLANCHARDS ADD LOT: 5 BLOCK: 14
Listing Provided Courtesy of Carly Jo Howe, RE/MAX Powerpros
Krishna Realty data last checked: Dec 08, 2025 07:07 | Listing last modified Oct 23, 2025 18:28,
Source:
Take a look at this wonderful split level home that has been nicely updated! The upper main level includes 3 bedrooms, 1 full bath, living room, dining area with slider to the back deck, and the kitchen. Lower level has been completely finished with a large bonus room, and a half bath that includes washer/ dryer hookups. The garage is also completely finished and has a hot/cold water faucet. Some updates include Lifeproof 30 mil Vinyl plank flooring on both levels, newer carpet and new recessed lighting in the bedrooms, all new trim, doors, hardware, outlets, light switches, and a smart thermostat! The new electric and ventless fireplace in the living room encased by beautiful tile with a framed TV area. The entire home has been retextured and painted! Both bathrooms and been updated with new vanities. This wonderful home is in a great location putting you minutes away from Longview and I5. Schedule your private showing today!