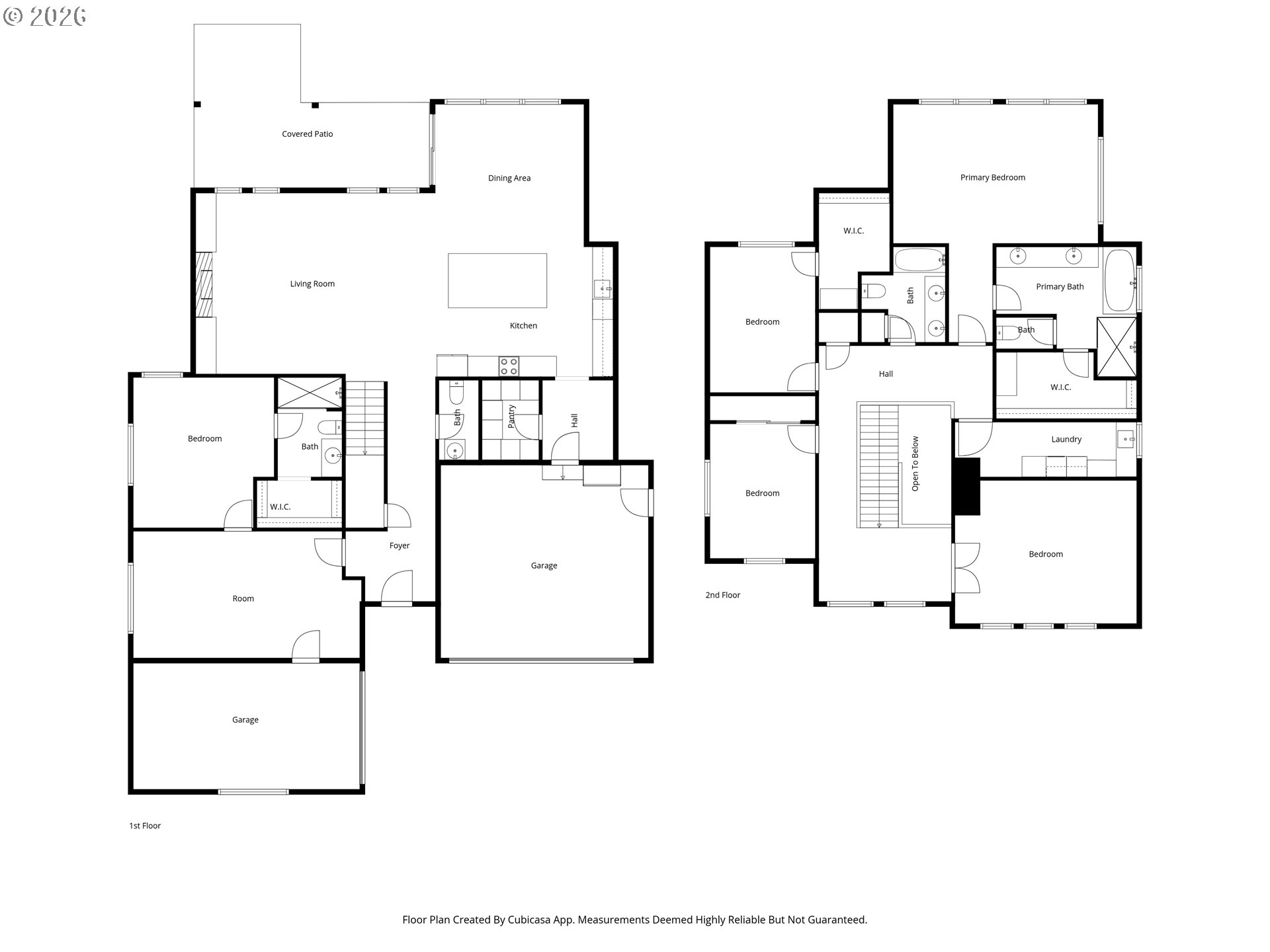
Completely custom built, this 4 bed, 3.5 bath home with a bonus room offers a bright open floor plan with high ceilings and natural light throughout. Main-level multi-generational living/ ADU includes its own living space, bedroom, bathroom with walk in shower, garage, and secondary laundry—ideal for extended living or guests. The gourmet kitchen features a Sub-Zero refrigerator and beverage fridge, Wolf brand steam oven, gas cook top, and separate convection oven, large island, and walk-in pantry, opening to the main living area. Upstairs, the primary suite is spacious and private, facing the green space, with dual vanities, soaking tub, and walk-in shower with dual shower heads. A 3-zone heating system, tankless water heater, whole house water filtration, and moisture-sensing exhaust fans add comfort, peace of mind, and efficiency. Step outside to a .25-acre lot backing to green space, enjoy summer nights on your covered patio, have a BBQ with gas hookup, and enjoy privacy! Located just minutes from Ridgefield National Wildlife Refuge, downtown Ridgefield, I-5 access, and zoned for Ridge Elementary—this home offers a rare combination of space, privacy, and flexibility. Schedule your private tour today.
Listing Provided Courtesy of Stephanie Sale, Real Broker LLC
General Information
440798544
SingleFamilyResidence
2
DOM
4
0.25 acres
3.5
3530
2019
Clark
986048975
Union Ridge
View Ridge
Ridgefield
Residential
SingleFamilyResidence
SEVEN WELLS ESTATES PUD PH4 LOT 339 312003 FOR ASSESSOR USE ONLY
Listing Provided Courtesy of Stephanie Sale, Real Broker LLC
Krishna Realty data last checked: Apr 24, 2026 14:00 | Listing last modified Apr 24, 2026 12:46,
Source:
Open House
Sat, Apr 25th, 12PM to 2PM
Sun, Apr 26th, 12PM to 2PM
Download our Mobile app
Residence Information
1780
1750
0
3530
GIS
3530
1/Gas
4
3
1
3.5
Composition
3, Attached
Stories2,CustomStyle
Driveway,OnStreet
2
2019
No
Brick, Cedar, CementSiding
CrawlSpace
CrawlSpace
ConcretePerimeter
DoublePaneWindows,Vi
Commons, FrontYardLan
Features and Utilities
CeilingFan, Fireplace, GreatRoom
BuiltinRange, BuiltinRefrigerator, Cooktop, Dishwasher, DoubleOven, GasAppliances, InductionCooktop, Island
Completely custom built, this 4 bed, 3.5 bath home with a bonus room offers a bright open floor plan with high ceilings and natural light throughout. Main-level multi-generational living/ ADU includes its own living space, bedroom, bathroom with walk in shower, garage, and secondary laundry—ideal for extended living or guests. The gourmet kitchen features a Sub-Zero refrigerator and beverage fridge, Wolf brand steam oven, gas cook top, and separate convection oven, large island, and walk-in pantry, opening to the main living area. Upstairs, the primary suite is spacious and private, facing the green space, with dual vanities, soaking tub, and walk-in shower with dual shower heads. A 3-zone heating system, tankless water heater, whole house water filtration, and moisture-sensing exhaust fans add comfort, peace of mind, and efficiency. Step outside to a .25-acre lot backing to green space, enjoy summer nights on your covered patio, have a BBQ with gas hookup, and enjoy privacy! Located just minutes from Ridgefield National Wildlife Refuge, downtown Ridgefield, I-5 access, and zoned for Ridge Elementary—this home offers a rare combination of space, privacy, and flexibility. Schedule your private tour today.