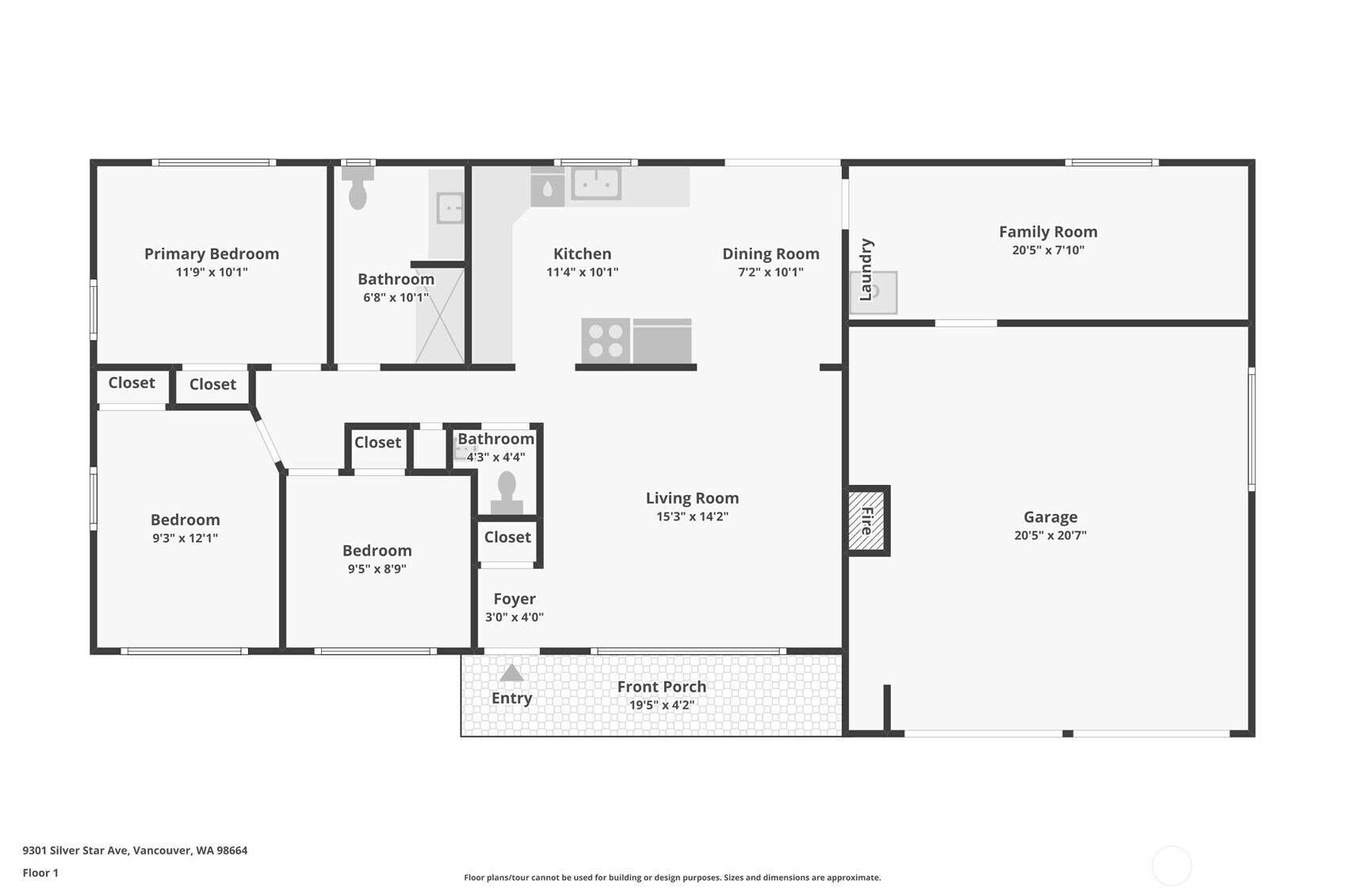
Charming three plus bedroom ranch style home in the sought-after Vancouver Heights on a spacious corner lot. Living room features brick surround wood, burning fireplace with mantle and hearth flowing seamlessly into the dining area. Newly refinished original white oak hardwood flooring runs through the home. The very large stainless kitchen includes built-in dishwasher, five burner gas range with rangehood, refrigerator, and abundant cabinetry. Full bath remodeled 2019, half bath updated in 2022. The 18 solar panels and two Tesla power wall batteries, keep rising electric bills, very manageable, realizing smart savings and sustainable living. Additional updates include double pane vinyl windows installed 2010, composition roof in 2010, water heater in 2017, heavily insulated attic and crawlspace in 2017, electrical panel in 2018, furnace and air conditioning in 2018, new PEX plumbing in 2019. Including a storage shed, property offers RV parking additional side yard, RV parking, 50-amp RV outlet installed in 2022 and RV dump installed in 2022. Located with quick access to SR-14, I-205, and I-5 , near Peace Health hospital, schools and shopping. Mortgage savings may be available for buyers of this listing.
Listing Provided Courtesy of Fred Sanchez, Redfin
General Information
NWM2489481
Single Family Residence
1
DOM
3
7919.21 SqFt
1.5
1265
1955
Clark
Marshall Elemen
McLoughlin Midd
Fort Vancouver
Residential
Single Family Residence
Listing Provided Courtesy of Fred Sanchez, Redfin
Krishna Realty data last checked: Apr 23, 2026 12:50 | Listing last modified Apr 03, 2026 12:00,
Source:
Charming three plus bedroom ranch style home in the sought-after Vancouver Heights on a spacious corner lot. Living room features brick surround wood, burning fireplace with mantle and hearth flowing seamlessly into the dining area. Newly refinished original white oak hardwood flooring runs through the home. The very large stainless kitchen includes built-in dishwasher, five burner gas range with rangehood, refrigerator, and abundant cabinetry. Full bath remodeled 2019, half bath updated in 2022. The 18 solar panels and two Tesla power wall batteries, keep rising electric bills, very manageable, realizing smart savings and sustainable living. Additional updates include double pane vinyl windows installed 2010, composition roof in 2010, water heater in 2017, heavily insulated attic and crawlspace in 2017, electrical panel in 2018, furnace and air conditioning in 2018, new PEX plumbing in 2019. Including a storage shed, property offers RV parking additional side yard, RV parking, 50-amp RV outlet installed in 2022 and RV dump installed in 2022. Located with quick access to SR-14, I-205, and I-5 , near Peace Health hospital, schools and shopping. Mortgage savings may be available for buyers of this listing.