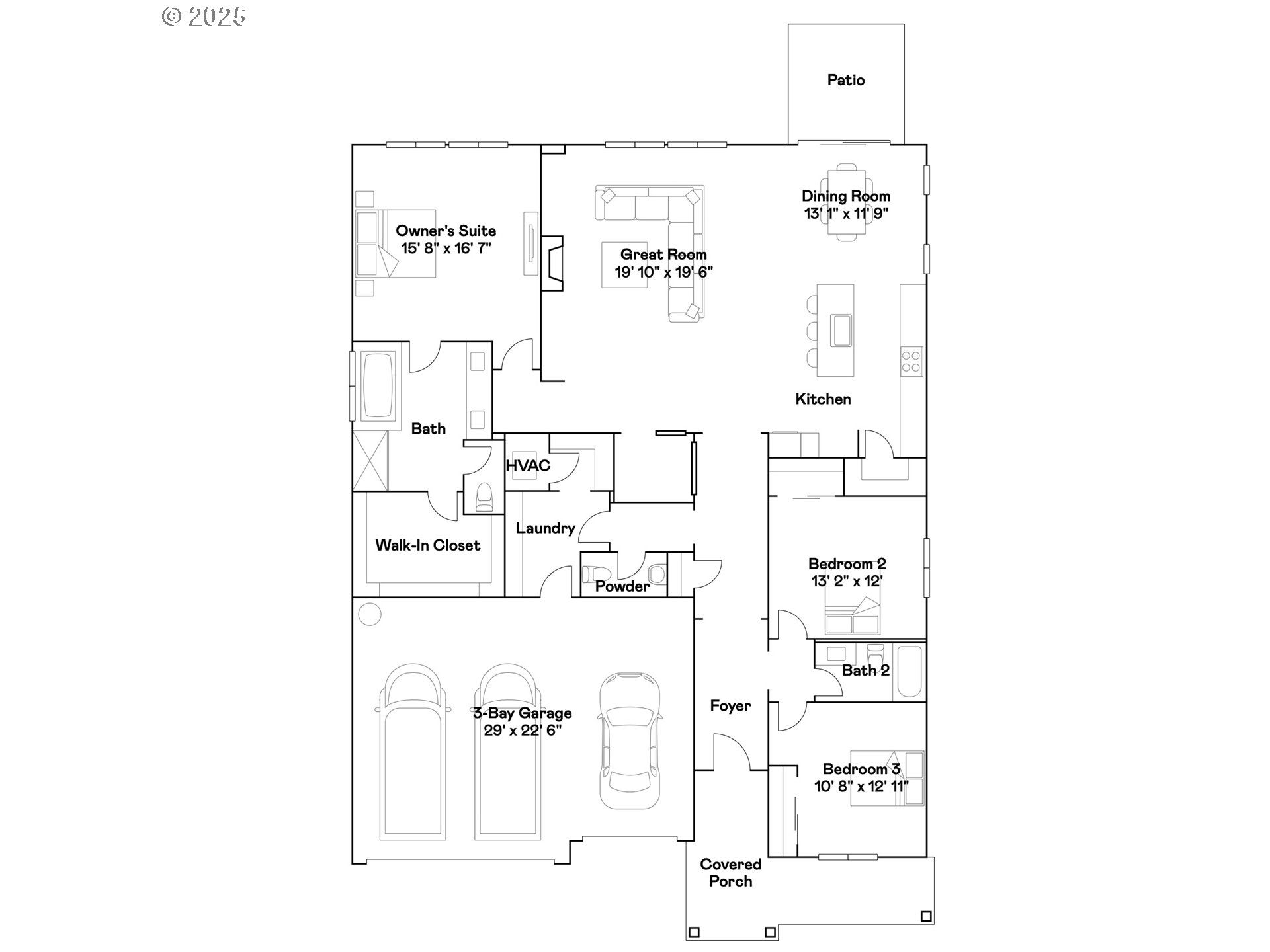
This new construction home in Camas Heights is located in a quiet setting just minutes from PDX and the Camas School District, with nearby recreation at Lacamas Lake, golf at Camas Meadows, and dining in downtown Camas. The Deschutes plan offers single-level living with three bedrooms and a three-bay garage. Two secondary bedrooms and a full bath sit near the entry, while the open-concept kitchen, dining, and great room flow seamlessly to a patio for indoor-outdoor living. The primary suite is tucked at the rear of the home and includes a walk-in closet and spa-inspired bath. Interior highlights feature quartz countertops, shaker-style cabinets, a picket-style backsplash in the kitchen, matte black fixtures, and LVP flooring in select spaces, with other luxury features included throughout. This home also comes with landscaping, fencing, and central air conditioning, plus a refrigerator, washer and dryer, and blinds—all at no extra cost! Located on homesite 24, this home is move-in ready! Rendering is artist conception only. Photos are of a similar home, features and finishes will vary. Flex credit/closing cost incentive available when financing with preferred lender! Use towards rate buydown and closing costs.
Listing Provided Courtesy of Melinda Shoote, Lennar Sales Corp
General Information
361593943
SingleFamilyResidence
166
DOM
3
2.5
2387
2025
RLD-8
Clark
986069340
Lacamas Lake
Liberty
Camas
Residential
SingleFamilyResidence
CAMAS HEIGHTS PH1 LOT 24 312340 FOR ASSESSOR USE ONLY CAMAS HEIGH
Listing Provided Courtesy of Melinda Shoote, Lennar Sales Corp
Krishna Realty data last checked: Feb 22, 2026 11:58 | Listing last modified Feb 16, 2026 09:59,
Source:
This new construction home in Camas Heights is located in a quiet setting just minutes from PDX and the Camas School District, with nearby recreation at Lacamas Lake, golf at Camas Meadows, and dining in downtown Camas. The Deschutes plan offers single-level living with three bedrooms and a three-bay garage. Two secondary bedrooms and a full bath sit near the entry, while the open-concept kitchen, dining, and great room flow seamlessly to a patio for indoor-outdoor living. The primary suite is tucked at the rear of the home and includes a walk-in closet and spa-inspired bath. Interior highlights feature quartz countertops, shaker-style cabinets, a picket-style backsplash in the kitchen, matte black fixtures, and LVP flooring in select spaces, with other luxury features included throughout. This home also comes with landscaping, fencing, and central air conditioning, plus a refrigerator, washer and dryer, and blinds—all at no extra cost! Located on homesite 24, this home is move-in ready! Rendering is artist conception only. Photos are of a similar home, features and finishes will vary. Flex credit/closing cost incentive available when financing with preferred lender! Use towards rate buydown and closing costs.