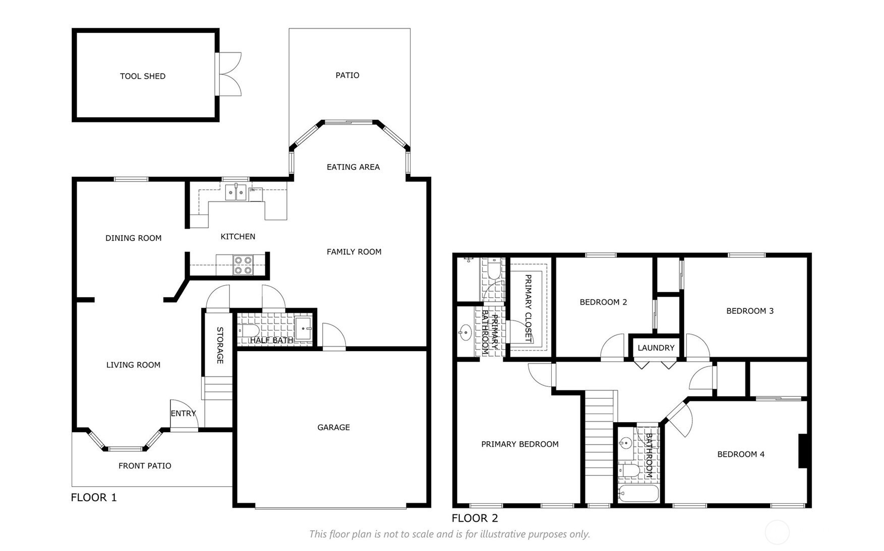
This move-in ready home offers the space, layout, and flexibility buyers are looking for. With 4 bedrooms and 2.5 baths, the floor plan is designed to give everyone room to spread out while still feeling connected. You’ll find both a living room and a separate family room, along with a formal dining space and an additional eating area in the kitchen—ideal for everyday living and hosting. All bedrooms are located upstairs, creating a clear separation between living and resting spaces. The primary suite stands out with its generous size, giving you plenty of room for a full furniture setup and more. Upstairs laundry adds convenience right where you need it most. The home has been refreshed with newer interior paint and also features newer exterior paint, making it truly ready for its next owner to move right in without added projects. Situated on a corner lot, the exterior offers standout functionality and curb appeal with a welcoming front porch and a large driveway. There’s also gated RV parking, both behind the fence and additional space in the driveway—something that’s increasingly hard to find. Out back, you’ll find a spacious yard with room to use how you choose, plus two separate storage units that provide extra flexibility for tools, hobbies, or seasonal items. If you’ve been looking for a home that checks the boxes on space, layout, and usable outdoor features, this one is worth a closer look.
Listing Provided Courtesy of Kelly Muscarella, Keller Williams-Premier Prtnrs
General Information
NWM2491999
Single Family Residence
1
DOM
4
10031.87 SqFt
2.5
2145
1997
Clark
Captain Strong
Chief Umtuch Mi
Battle Ground H
Residential
Single Family Residence
Listing Provided Courtesy of Kelly Muscarella, Keller Williams-Premier Prtnrs
Krishna Realty data last checked: Apr 15, 2026 15:55 | Listing last modified Mar 27, 2026 21:36,
Source:
Download our Mobile app
Residence Information
2145
4
2
1
2.5
Composition
12 - 2 Story
1997
None
None
Concrete Ribbon
Features and Utilities
Dishwasher, Disposal, Stove(s)/Range(s)
Ceiling Fan(s)
Cement Planked
Public
Sewer Connected
Financial
3223
Cash, Conventional, FHA, VA Loan
03-26-2026
Comparable Information
1
1
Cash, Conventional, FHA, VA Loan
$575,000
$575,000
Mar 27, 2026 21:36
Schools
Elementary : Captain Strong N/ARatings Middle : Chief Umtuch Mi N/ARatings High : Battle Ground HN/ARatings
Map
Listing courtesy of Keller Williams-Premier Prtnrs.
This move-in ready home offers the space, layout, and flexibility buyers are looking for. With 4 bedrooms and 2.5 baths, the floor plan is designed to give everyone room to spread out while still feeling connected. You’ll find both a living room and a separate family room, along with a formal dining space and an additional eating area in the kitchen—ideal for everyday living and hosting. All bedrooms are located upstairs, creating a clear separation between living and resting spaces. The primary suite stands out with its generous size, giving you plenty of room for a full furniture setup and more. Upstairs laundry adds convenience right where you need it most. The home has been refreshed with newer interior paint and also features newer exterior paint, making it truly ready for its next owner to move right in without added projects. Situated on a corner lot, the exterior offers standout functionality and curb appeal with a welcoming front porch and a large driveway. There’s also gated RV parking, both behind the fence and additional space in the driveway—something that’s increasingly hard to find. Out back, you’ll find a spacious yard with room to use how you choose, plus two separate storage units that provide extra flexibility for tools, hobbies, or seasonal items. If you’ve been looking for a home that checks the boxes on space, layout, and usable outdoor features, this one is worth a closer look.