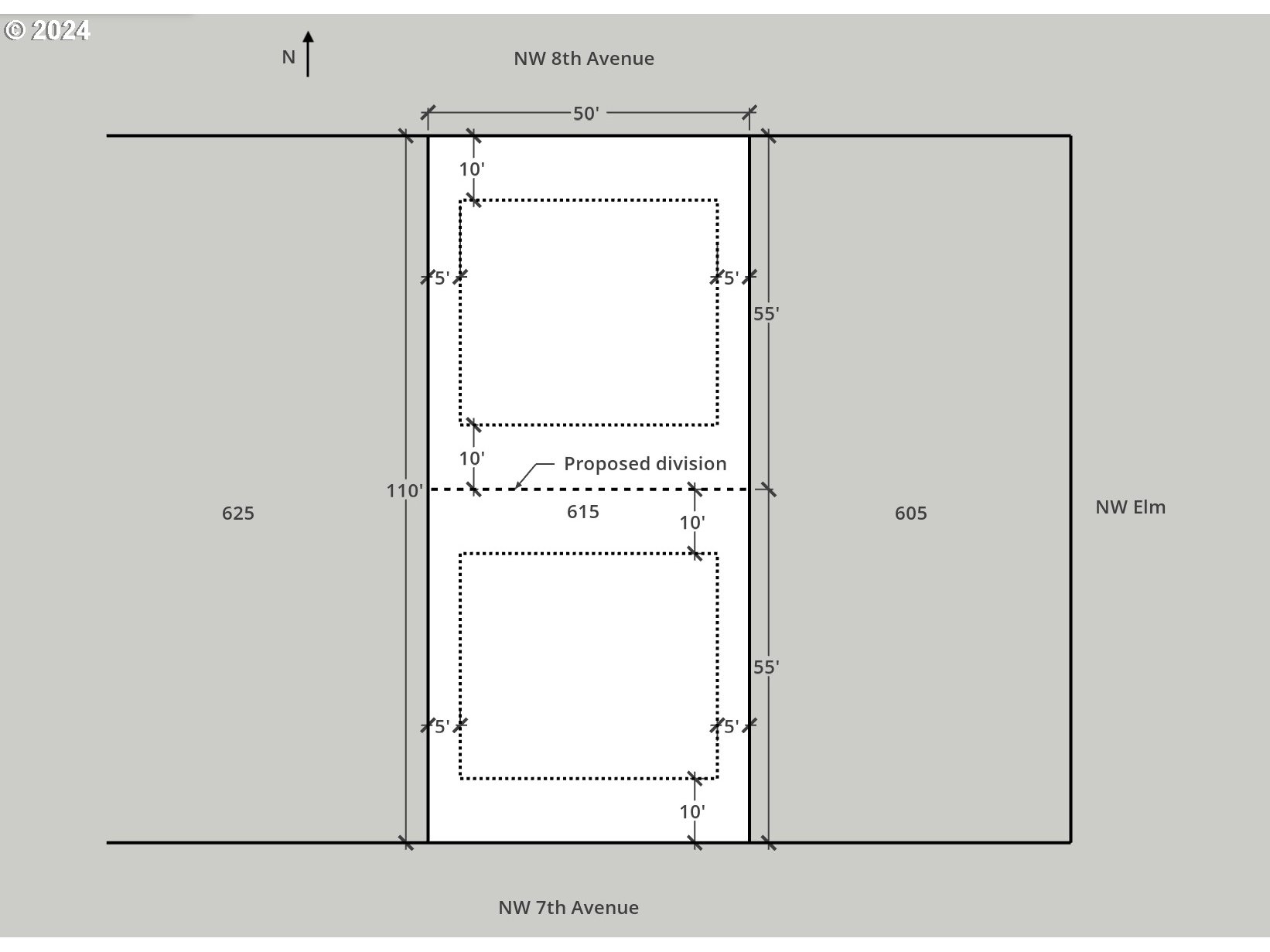
Don't miss this opportunity to purchase this desirable in-fill lot, it has great developmental potential. 2 possible lots, both south facing, with excellent solar access. Perfect for passive or active solar builds, net zero potential. Rare close-in property with access from both NW 7th Ave and NW 8th Ave. NW 8th Ave is a very quiet dead end street with no traffic. Walking distance to Downtown Camas, Forest Home Park, and Benton Park andGreenway. Survey, geotech report, and development pre-app with City already completed. One sewer connection already to site. Accessible water main in NW 8th Ave. PUD approved power connection on north side of NW 7th Ave (don’t need tocross street or install transformer) Designs shown are conceptual only? 2 modest sized houses or a house plus ADU? Property is located 1.5 blocks from future high end mixed use development (26acre Georgia Pacific Lab Property)? Zoned Multifamily Residential (MF-18)
Listing Provided Courtesy of Amy Stoller, Windermere/Crest Realty Co
General Information
24688226
MultiFamily
495
DOM
5227.2 SqFt
R-12
Clark
086100000
Helen Baller
Liberty
Camas
Land
MultiFamily
FOREST HOME SUB-DIV LOT 1 LOT 2 BLK 8 FOR ASSESSOR USE ONLY FOREST HOME SUB-DIV LOT 1 LOT 2 BLK 8
Listing Provided Courtesy of Amy Stoller, Windermere/Crest Realty Co
Krishna Realty data last checked: Apr 25, 2026 12:14 | Listing last modified Apr 22, 2026 07:14,
Source:
Download our Mobile app
Residence Information
No
Features and Utilities
Financial
1373.21
0
Cash,Conventional,FHA
12-13-2024
No
No
Comparable Information
495
498
Cash,Conventional,FHA
$250,000
$250,000
Apr 22, 2026 07:14
Schools
Elementary : Helen BallerN/ARatings Middle : Liberty N/ARatings High : CamasN/ARatings
Don't miss this opportunity to purchase this desirable in-fill lot, it has great developmental potential. 2 possible lots, both south facing, with excellent solar access. Perfect for passive or active solar builds, net zero potential. Rare close-in property with access from both NW 7th Ave and NW 8th Ave. NW 8th Ave is a very quiet dead end street with no traffic. Walking distance to Downtown Camas, Forest Home Park, and Benton Park andGreenway. Survey, geotech report, and development pre-app with City already completed. One sewer connection already to site. Accessible water main in NW 8th Ave. PUD approved power connection on north side of NW 7th Ave (don’t need tocross street or install transformer) Designs shown are conceptual only? 2 modest sized houses or a house plus ADU? Property is located 1.5 blocks from future high end mixed use development (26acre Georgia Pacific Lab Property)? Zoned Multifamily Residential (MF-18)