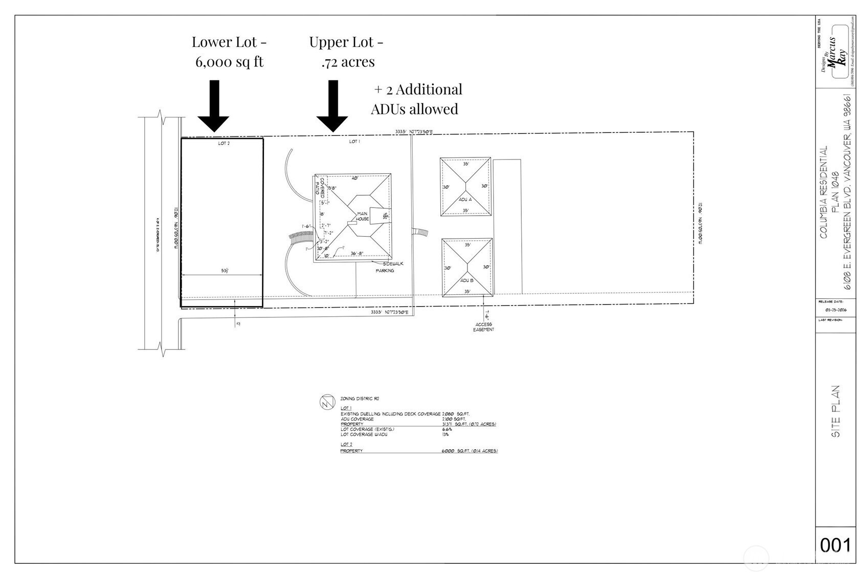
Vancouver’s Evergreen BLVD is introducing first-ever to market! Originally known as the Henderson House and featured in Better Homes and Gardens Magazine in 1948. Featuring cutting edge design with a sunroom and expansive windows, this home's location boasts incredible views of the Columbia River and Portland Airport. Being in it's classic "original" condition - This would be an incredible opportunity for a remodeled mid-century modern masterpiece. It's ready for your custom home remodeler or builder to transform it into an Evergreen Boulevard landmark, once again. With a unique layout and huge storage areas off the garage, there's plenty of good bones to make this into a special property. Restore? Rebuild? Two additional detached ADU's allowed, creating a lot of possibilities!! Lot dimensions approximately 280x112. Additionally, a lower lot is also available see MLS #62676185.
Listing Provided Courtesy of Heather DeFord, Cascade Hasson Sotheby's Int'l
General Information
NWM2499691
Single Family Residence
10
DOM
4
0.72 acres
2
2071
1948
Clark
Harney Elementa
McLoughlin Midd
Fort Vancouver
Residential
Single Family Residence
Listing Provided Courtesy of Heather DeFord, Cascade Hasson Sotheby's Int'l
Krishna Realty data last checked: Apr 21, 2026 04:51 | Listing last modified Apr 10, 2026 20:20,
Source:
Download our Mobile app
Residence Information
2071
1/Gas
4
2
0
2
Flat
16 - 1 Story w/Bsmnt.
1948
Unfinished
Unfinished
Block
Features and Utilities
Fireplace
Wood
Public
Sewer Connected
Financial
6580.96
Cash, Conventional
03-31-2026
Comparable Information
10
10
Cash, Conventional
$899,000
$899,000
Apr 10, 2026 20:20
Schools
Elementary : Harney ElementaN/ARatings Middle : McLoughlin Midd N/ARatings High : Fort Vancouver N/ARatings
Map
Listing courtesy of Cascade Hasson Sotheby's Int'l.
Vancouver’s Evergreen BLVD is introducing first-ever to market! Originally known as the Henderson House and featured in Better Homes and Gardens Magazine in 1948. Featuring cutting edge design with a sunroom and expansive windows, this home's location boasts incredible views of the Columbia River and Portland Airport. Being in it's classic "original" condition - This would be an incredible opportunity for a remodeled mid-century modern masterpiece. It's ready for your custom home remodeler or builder to transform it into an Evergreen Boulevard landmark, once again. With a unique layout and huge storage areas off the garage, there's plenty of good bones to make this into a special property. Restore? Rebuild? Two additional detached ADU's allowed, creating a lot of possibilities!! Lot dimensions approximately 280x112. Additionally, a lower lot is also available see MLS #62676185.