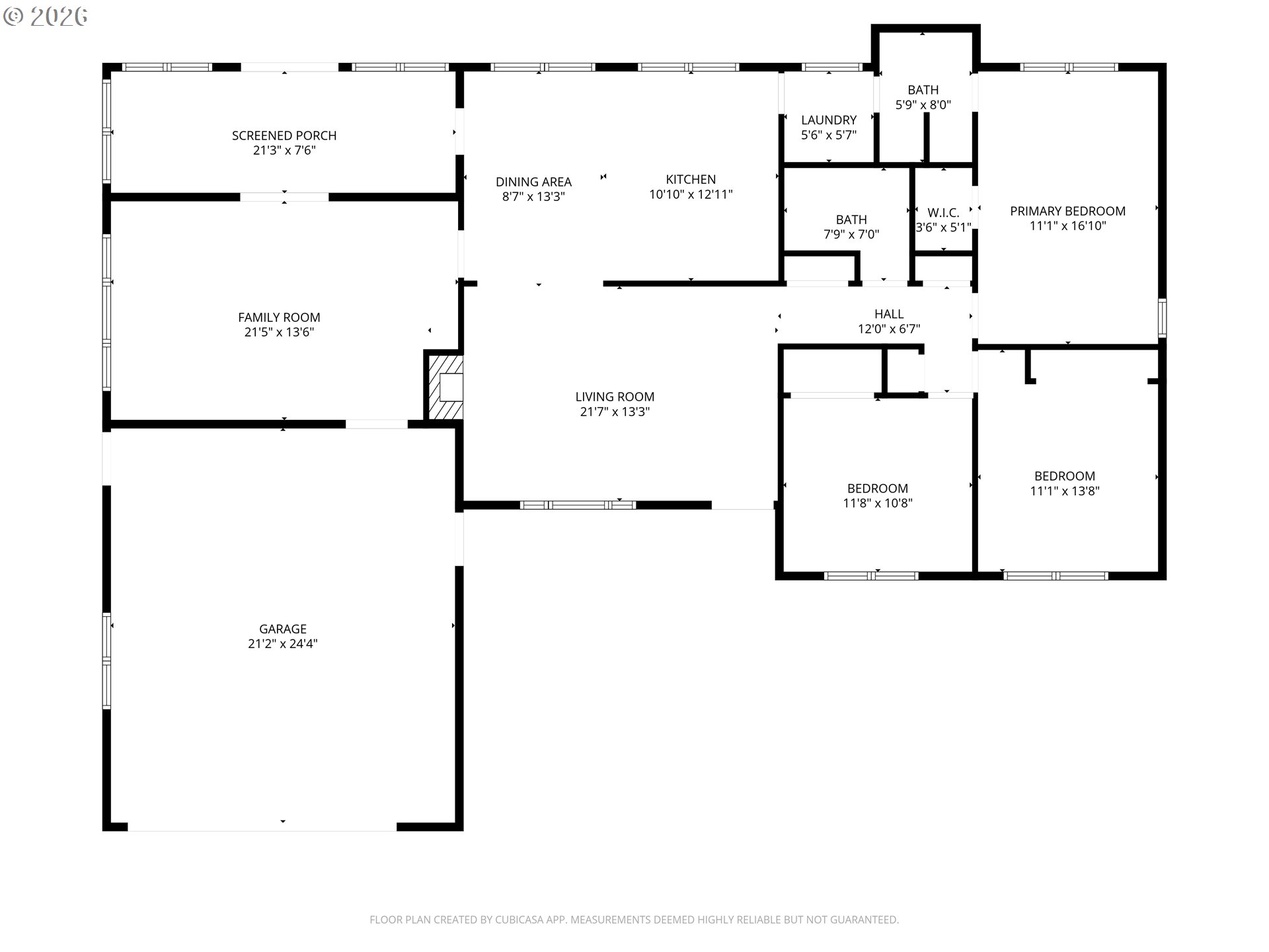
First time on market in over 30 years! Easy access to the Burnt Bridge Creek Trail, this well-maintained single-level ranch offers 3 bedrooms, 2 bathrooms, and 1,812 sq ft of comfortable living space on an oversized corner lot in Northwest Vancouver. High ceilings and durable laminate flooring create an open feel, while the wood-burning fireplace adds warmth and character to the main living area. The functional kitchen includes built-in appliances and generous workspace, with an easy flow into the dining and living areas—ideal for everyday living and gatherings. Outside the home, enjoy the expansive yard featuring a deck, garden space, porch, sprinkler system, and mature trees that provide a peaceful outdoor setting. The large lot offers flexibility for entertaining, gardening, or simply enjoying the open space. Additional highlights include an attached two-car garage with 220V outlet plus a two-car carport for additional covered parking, RV or boat parking, tool shed, and double-pane vinyl windows. Large 0.37-acre corner lots like this are increasingly difficult to find in established Northwest Vancouver neighborhoods. Notable updates include: Roof replaced (2016), roof cleaned and moss treated (March 2026), fence replaced (2024), new cooktop and refrigerator (2025), dishwasher (2019), 220V garage power, and double-pane vinyl windows.
Listing Provided Courtesy of Scott Bain, John L. Scott Real Estate
General Information
412176121
SingleFamilyResidence
41
DOM
3
0.37 acres
2
1812
1968
R-6
Clark
037919640
Franklin
Discovery
Hudsons Bay
Residential
SingleFamilyResidence
THE COLONY #2 LOT 9 FOR ASSESSOR USE ONLY THE COLONY #2 LOT 9
Listing Provided Courtesy of Scott Bain, John L. Scott Real Estate
Krishna Realty data last checked: Apr 26, 2026 15:25 | Listing last modified Apr 22, 2026 21:41,
Source:
Download our Mobile app
Residence Information
0
1812
0
1812
CNTY GIS
1812
1/Gas
3
2
0
2
Composition
2, Attached, Carport
Stories1,Ranch
Driveway
1
1968
No
T111Siding
None
RVParking,RVBoatStorage
None
ConcretePerimeter
DoublePaneWindows,Vi
Features and Utilities
BuiltinOven, Dishwasher, FreeStandingRefrigerator, Island, PlumbedForIceMaker
First time on market in over 30 years! Easy access to the Burnt Bridge Creek Trail, this well-maintained single-level ranch offers 3 bedrooms, 2 bathrooms, and 1,812 sq ft of comfortable living space on an oversized corner lot in Northwest Vancouver. High ceilings and durable laminate flooring create an open feel, while the wood-burning fireplace adds warmth and character to the main living area. The functional kitchen includes built-in appliances and generous workspace, with an easy flow into the dining and living areas—ideal for everyday living and gatherings. Outside the home, enjoy the expansive yard featuring a deck, garden space, porch, sprinkler system, and mature trees that provide a peaceful outdoor setting. The large lot offers flexibility for entertaining, gardening, or simply enjoying the open space. Additional highlights include an attached two-car garage with 220V outlet plus a two-car carport for additional covered parking, RV or boat parking, tool shed, and double-pane vinyl windows. Large 0.37-acre corner lots like this are increasingly difficult to find in established Northwest Vancouver neighborhoods. Notable updates include: Roof replaced (2016), roof cleaned and moss treated (March 2026), fence replaced (2024), new cooktop and refrigerator (2025), dishwasher (2019), 220V garage power, and double-pane vinyl windows.