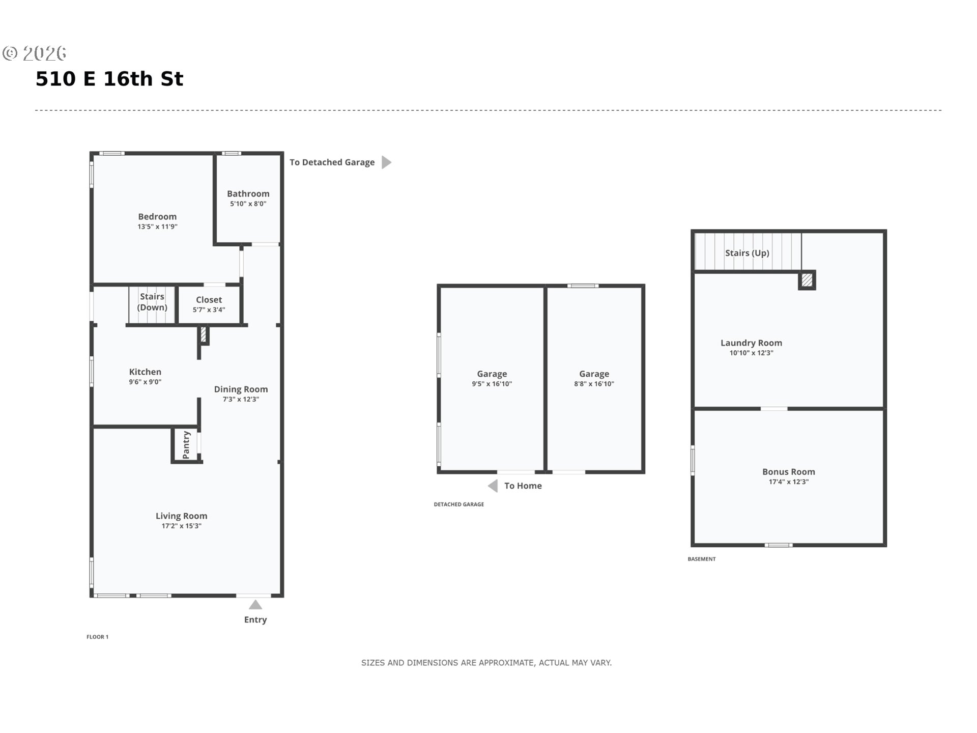
A rare opportunity to own a high-performing, turnkey duplex in the sought-after Arnada neighborhood. This property offers the perfect blend of immediate stability and significant "Strategy Upside" for the modern investor. The CX - City Central zoning provides long-term flexible use options. One side of this beautifully remodeled duplex is vacant, giving the option for owner-occupancy. The double car garage in back could be used for commercial purposes or turned into another residence. Extensive renovation completed. Updated roof, siding, electrical, insulation, sewer line, high-efficiency heat pumps, and more. Absolutely stunning units. Refinished hardwood floors. Remodeled kitchens and baths. Rejuvenation light fixtures. Amazing location just a few blocks from New Seasons, downtown shops and restaurants. Walk score 86, bike score 86. Click the virtual tour link for a PDF "deal sheet", 3D home tour, upgrade list, and floorplan!
Listing Provided Courtesy of Stephen FitzMaurice, eXp Realty LLC
General Information
615252538
1
DOM
2
5227.2 SqFt
2
2556
1947
CX:VAN
Clark
040770000
Hough
Discovery
Hudsons Bay
MultiFamily
EAST VANCOUVER LOT 7 BLK 76 FOR ASSESSOR USE ONLY EAST VANCOUVER
Listing Provided Courtesy of Stephen FitzMaurice, eXp Realty LLC
Krishna Realty data last checked: Apr 17, 2026 05:20 | Listing last modified Apr 16, 2026 09:52,
Source:
A rare opportunity to own a high-performing, turnkey duplex in the sought-after Arnada neighborhood. This property offers the perfect blend of immediate stability and significant "Strategy Upside" for the modern investor. The CX - City Central zoning provides long-term flexible use options. One side of this beautifully remodeled duplex is vacant, giving the option for owner-occupancy. The double car garage in back could be used for commercial purposes or turned into another residence. Extensive renovation completed. Updated roof, siding, electrical, insulation, sewer line, high-efficiency heat pumps, and more. Absolutely stunning units. Refinished hardwood floors. Remodeled kitchens and baths. Rejuvenation light fixtures. Amazing location just a few blocks from New Seasons, downtown shops and restaurants. Walk score 86, bike score 86. Click the virtual tour link for a PDF "deal sheet", 3D home tour, upgrade list, and floorplan!