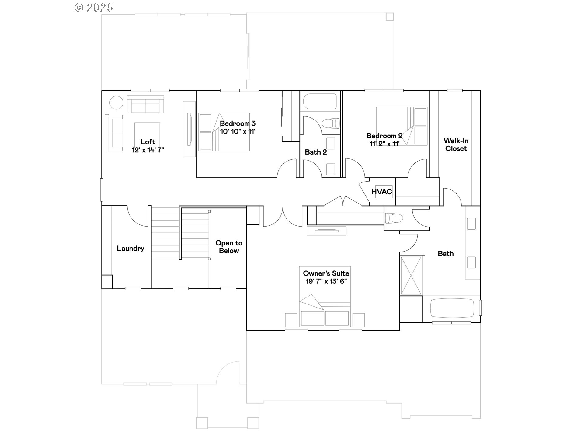
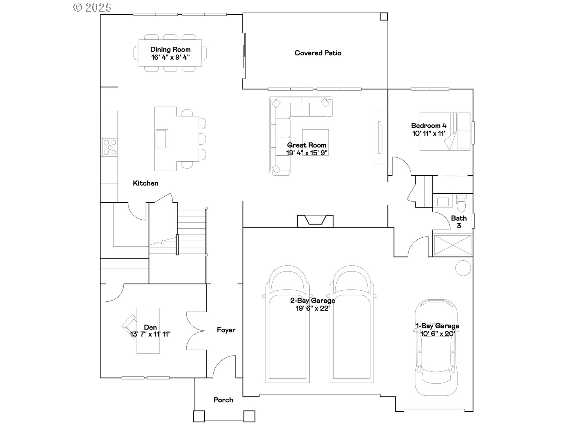
This two-story new construction Hammond home in Salmon Creek Ridge features a three-car garage and is just minutes from Salmon Creek trails, I-5, and shopping. The main floor includes a private bedroom and bath, a den off the entry, and an open kitchen, dining area, and great room warmed by a fireplace. Upstairs, a loft connects three bedrooms, including a primary suite with a soaking tub and walk-in closet. The kitchen includes quartz countertops, shaker-style cabinets, and a vertical tile backsplash. LVP flooring runs through the kitchen and entry, and LVT covers baths and laundry. The primary bath has a tiled shower with a separate tub. Wooden shelving, landscaping, and fencing complete the home. Central air conditioning, a refrigerator, washer and dryer, and blinds are included. Located on homesite 49, this home is move in ready. Flex credit/closing cost incentive available when financing with preferred lender! Use towards rate buydown and closing costs.
Listing Provided Courtesy of Matthew Garvin, Lennar Sales Corp
General Information
784135545
SingleFamilyResidence
205
DOM
4
3
2909
2025
Clark
New Construction
Pleasant Valley
Pleasant Valley
Prairie
Residential
SingleFamilyResidence
Lot 49 Salmon Creek Ridge
Listing Provided Courtesy of Matthew Garvin, Lennar Sales Corp
Krishna Realty data last checked: Feb 22, 2026 07:59 | Listing last modified Feb 21, 2026 11:17,
Source:
Download our Mobile app
Residence Information
1564
1345
0
2909
Builder
2909
1/Gas
4
3
0
3
Composition
3, Attached
Stories2,Craftsman
Driveway,EVReady
2
2025
No
CementSiding, CulturedStone
CrawlSpace
CrawlSpace
PillarPostPier
VinylFrames
Commons, FrontYardLan
Features and Utilities
FamilyRoomKitchenCombo, Fireplace
BuiltinOven, ConvectionOven, Cooktop, Dishwasher, Disposal, FreeStandingRefrigerator, GasAppliances, Island
GarageDoorOpener, HighCeilings, Laundry, LuxuryVinylPlank, LuxuryVinylTile, Quartz, SoakingTub, Sprinkler, W
This two-story new construction Hammond home in Salmon Creek Ridge features a three-car garage and is just minutes from Salmon Creek trails, I-5, and shopping. The main floor includes a private bedroom and bath, a den off the entry, and an open kitchen, dining area, and great room warmed by a fireplace. Upstairs, a loft connects three bedrooms, including a primary suite with a soaking tub and walk-in closet. The kitchen includes quartz countertops, shaker-style cabinets, and a vertical tile backsplash. LVP flooring runs through the kitchen and entry, and LVT covers baths and laundry. The primary bath has a tiled shower with a separate tub. Wooden shelving, landscaping, and fencing complete the home. Central air conditioning, a refrigerator, washer and dryer, and blinds are included. Located on homesite 49, this home is move in ready. Flex credit/closing cost incentive available when financing with preferred lender! Use towards rate buydown and closing costs.