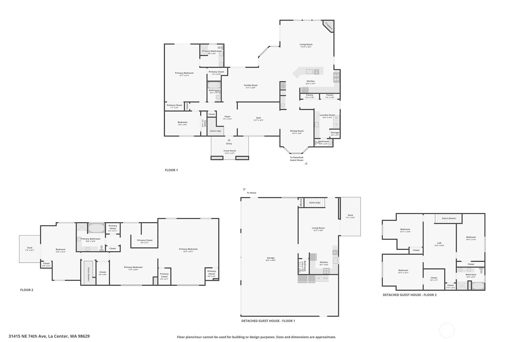
Is there a 4-bed single family home in La Center with acreage and an ADU for multigenerational living or rental potential? This gated 5.5 acre estate plus additional .65 acre tax lot includes a 4 bedroom main home and a 3 bedroom ADU with private entrance, expansive garage space, RV parking, and a well appointed kitchen built for everyday living and entertaining. 4-bed single family home in La Center situated on over 6 acres across two tax lots, offering privacy, functionality, and long term versatility. The 2,672 sqft main residence features two primary suites, including one on the main level and an oversized upper level ensuite with generous closet space. The kitchen is designed for efficiency and style with double ovens, gas range, pot filler, island workspace, butlers pantry, granite counters, and durable tile flooring. The 1,320 sqft ADU spans two levels and includes 3 bedrooms plus loft and 1.5 baths with a private entrance, ideal for extended living arrangements or additional household space. Exterior highlights include gated entry, fenced, covered patio, two septic systems, water filtration system, water softener, and a 4 car detached garage with RV parking. This La Center property offers acreage living with room to grow, gather, and create long term value. Schedule your tour today.
Listing Provided Courtesy of Ellen D Hartzell, Redfin
General Information
NWM2507159
Single Family Residence
0
DOM
4
6.15 acres
2.5
2672
1980
Clark
Lacenter Elem
Lacenter Mid
La Center High
Residential
Single Family Residence
Listing Provided Courtesy of Ellen D Hartzell, Redfin
Krishna Realty data last checked: Apr 14, 2026 20:23 | Listing last modified Apr 14, 2026 21:40,
Source:
Is there a 4-bed single family home in La Center with acreage and an ADU for multigenerational living or rental potential? This gated 5.5 acre estate plus additional .65 acre tax lot includes a 4 bedroom main home and a 3 bedroom ADU with private entrance, expansive garage space, RV parking, and a well appointed kitchen built for everyday living and entertaining. 4-bed single family home in La Center situated on over 6 acres across two tax lots, offering privacy, functionality, and long term versatility. The 2,672 sqft main residence features two primary suites, including one on the main level and an oversized upper level ensuite with generous closet space. The kitchen is designed for efficiency and style with double ovens, gas range, pot filler, island workspace, butlers pantry, granite counters, and durable tile flooring. The 1,320 sqft ADU spans two levels and includes 3 bedrooms plus loft and 1.5 baths with a private entrance, ideal for extended living arrangements or additional household space. Exterior highlights include gated entry, fenced, covered patio, two septic systems, water filtration system, water softener, and a 4 car detached garage with RV parking. This La Center property offers acreage living with room to grow, gather, and create long term value. Schedule your tour today.