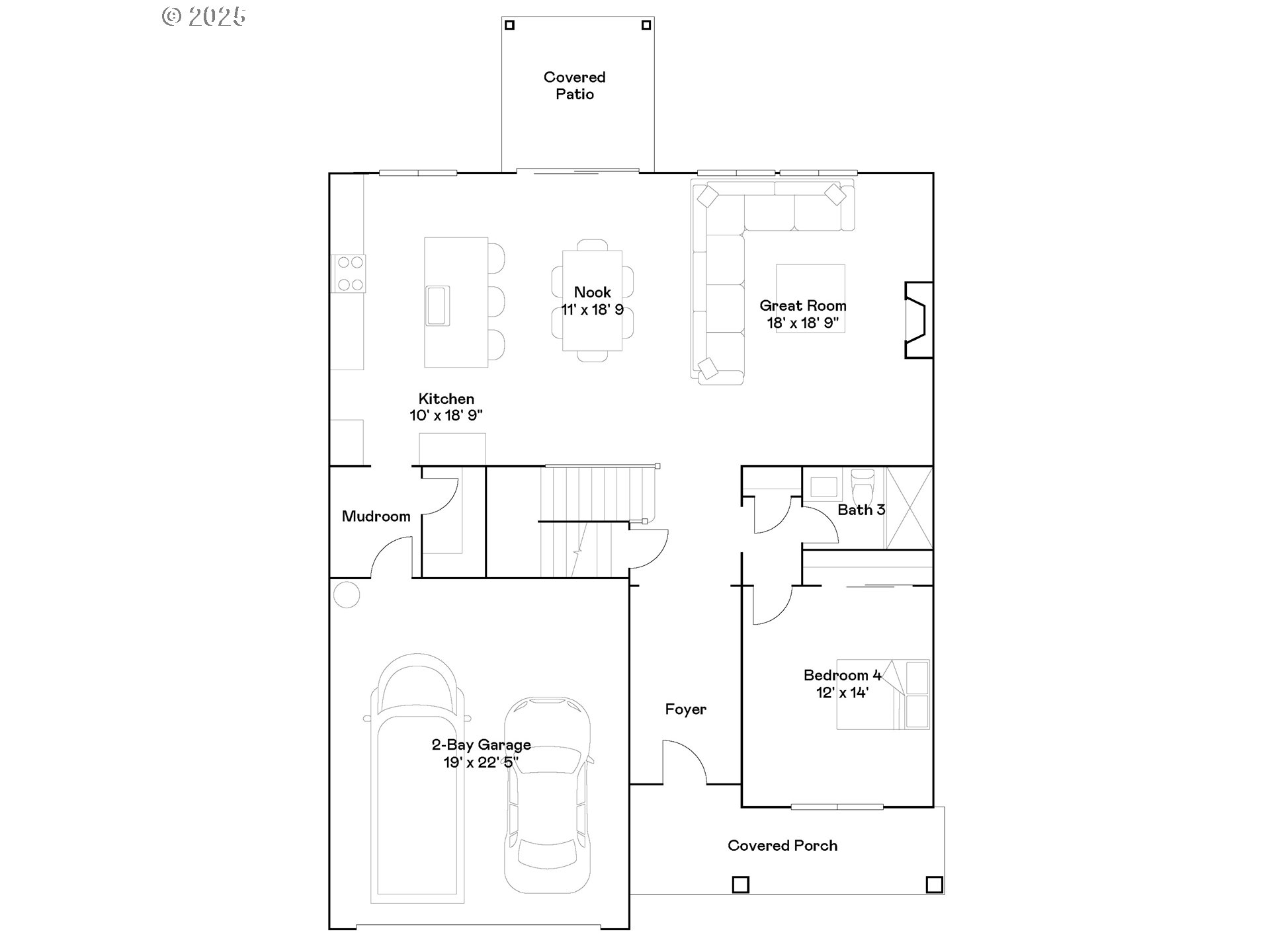
This new construction home is located at Ridgefield Heights, just minutes from kayak access on the river and close to Costco and the new In-N-Out. Community includes a playground, walking trails and basketball court. The Burlington plan offers a spacious layout with a welcoming foyer, open great room, and a bonus room upstairs for added flexibility. The first floor includes a bedroom and full bathroom. Upstairs, the expansive owner’s suite features an oversized walk-in closet and bathroom with separate shower and soaking tub. Interior highlights include quartz countertops with distinct kitchen and bath selections, tile backsplash in kitchen, LVP flooring, Shaker-style cabinetry, and a fireplace that warms the main living area. Other premium features include matte black hardware, a frameless glass shower enclosure in the owner’s suite and wood shelving in closets and the pantry. Back yard is fully fenced with landscaping included. This home also includes an energy efficient HVAC system including A/C, a refrigerator, washer and dryer, and blinds—all at no extra cost! Located on corner homesite #138, this home is expected to be complete in winter 2025. Rendering is artist conception only. Photos are of a similar home, features and finishes will vary.
Listing Provided Courtesy of Melinda Shoote, Lennar Sales Corp
General Information
540962696
SingleFamilyResidence
58
DOM
4
3
2634
2026
RESID
Clark
New Construction
Union Ridge
View Ridge
Ridgefield
Residential
SingleFamilyResidence
Lot 138 Ridgefield Hts
Listing Provided Courtesy of Melinda Shoote, Lennar Sales Corp
Krishna Realty data last checked: Jan 15, 2026 14:11 | Listing last modified Dec 11, 2025 10:11,
Source:
Download our Mobile app
Residence Information
1258
1376
0
2634
Builder
2634
1/Gas
4
3
0
3
Composition
2, Attached
Stories2,Craftsman
EVReady
2
2026
No
BoardBattenSiding, CementSiding, LapSiding
CrawlSpace
CrawlSpace
ConcretePerimeter,Pi
TriplePaneWindows,Vi
AthleticCourt, Basket
Features and Utilities
Fireplace
BuiltinOven, BuiltinRange, ConvectionOven, Dishwasher, Disposal, FreeStandingRefrigerator, GasAppliances, I
This new construction home is located at Ridgefield Heights, just minutes from kayak access on the river and close to Costco and the new In-N-Out. Community includes a playground, walking trails and basketball court. The Burlington plan offers a spacious layout with a welcoming foyer, open great room, and a bonus room upstairs for added flexibility. The first floor includes a bedroom and full bathroom. Upstairs, the expansive owner’s suite features an oversized walk-in closet and bathroom with separate shower and soaking tub. Interior highlights include quartz countertops with distinct kitchen and bath selections, tile backsplash in kitchen, LVP flooring, Shaker-style cabinetry, and a fireplace that warms the main living area. Other premium features include matte black hardware, a frameless glass shower enclosure in the owner’s suite and wood shelving in closets and the pantry. Back yard is fully fenced with landscaping included. This home also includes an energy efficient HVAC system including A/C, a refrigerator, washer and dryer, and blinds—all at no extra cost! Located on corner homesite #138, this home is expected to be complete in winter 2025. Rendering is artist conception only. Photos are of a similar home, features and finishes will vary.