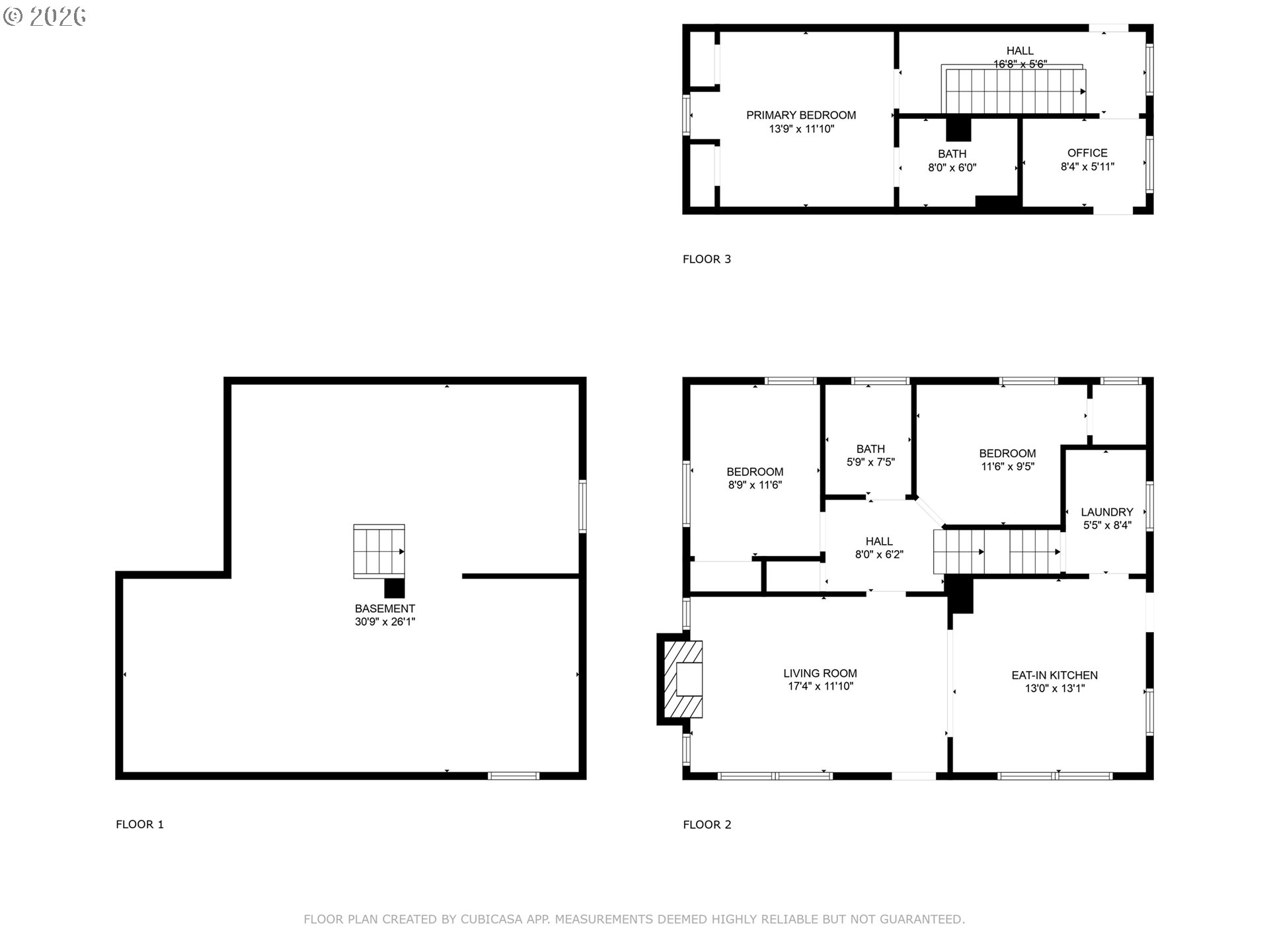
Charming 1931 bungalow located in the desirable City of Camas, known for its highly regarded schools, strong sense of community, and the added benefit of no HOA. Thoughtfully updated while maintaining its original character, this home blends classic style with practical improvements. The approximately 2,200 sq ft layout (including unfinished basement) features 3 bedrooms and 2 bathrooms with abundant natural light throughout the main level. The living space includes a cozy wood-burning fireplace, while the kitchen is equipped with a gas stove, ideal for everyday cooking. Fully fenced front and back yards provide flexible outdoor space for relaxing, gardening, or entertaining. A heat pump offers efficient heating and cooling year-round. The full unfinished basement provides substantial storage and potential for future use. A detached garage adds convenience and functionality. Recent updates include plumbing re-pipe (2022), new main water line (2021), radon mitigation system (2025), exterior paint (2025), and both chimneys replaced in (2025). Conveniently located near parks, local amenities, and downtown Camas, this home offers classic character and meaningful updates.
Listing Provided Courtesy of Scott Bain, John L. Scott Real Estate
General Information
766063365
SingleFamilyResidence
48
DOM
3
6534 SqFt
2
2226
1931
R-6
Clark
083800000
Prune Hill
Skyridge
Camas
Residential
SingleFamilyResidence
MERCER ADDN LOT 3 FOR ASSESSOR USE ONLY MERCER ADDN LOT 3
Listing Provided Courtesy of Scott Bain, John L. Scott Real Estate
Krishna Realty data last checked: May 07, 2026 14:49 | Listing last modified Apr 22, 2026 21:40,
Source:
Charming 1931 bungalow located in the desirable City of Camas, known for its highly regarded schools, strong sense of community, and the added benefit of no HOA. Thoughtfully updated while maintaining its original character, this home blends classic style with practical improvements. The approximately 2,200 sq ft layout (including unfinished basement) features 3 bedrooms and 2 bathrooms with abundant natural light throughout the main level. The living space includes a cozy wood-burning fireplace, while the kitchen is equipped with a gas stove, ideal for everyday cooking. Fully fenced front and back yards provide flexible outdoor space for relaxing, gardening, or entertaining. A heat pump offers efficient heating and cooling year-round. The full unfinished basement provides substantial storage and potential for future use. A detached garage adds convenience and functionality. Recent updates include plumbing re-pipe (2022), new main water line (2021), radon mitigation system (2025), exterior paint (2025), and both chimneys replaced in (2025). Conveniently located near parks, local amenities, and downtown Camas, this home offers classic character and meaningful updates.