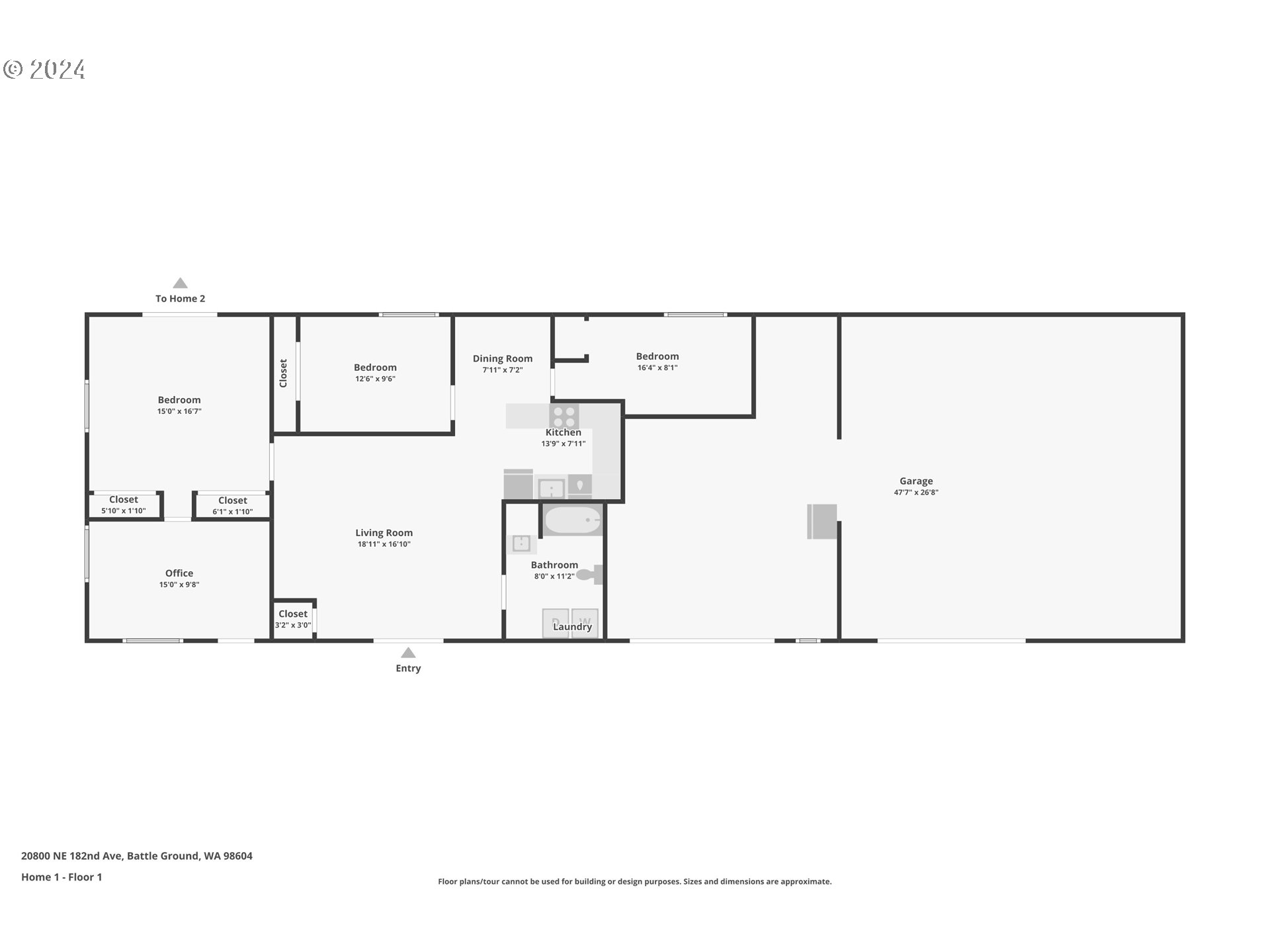
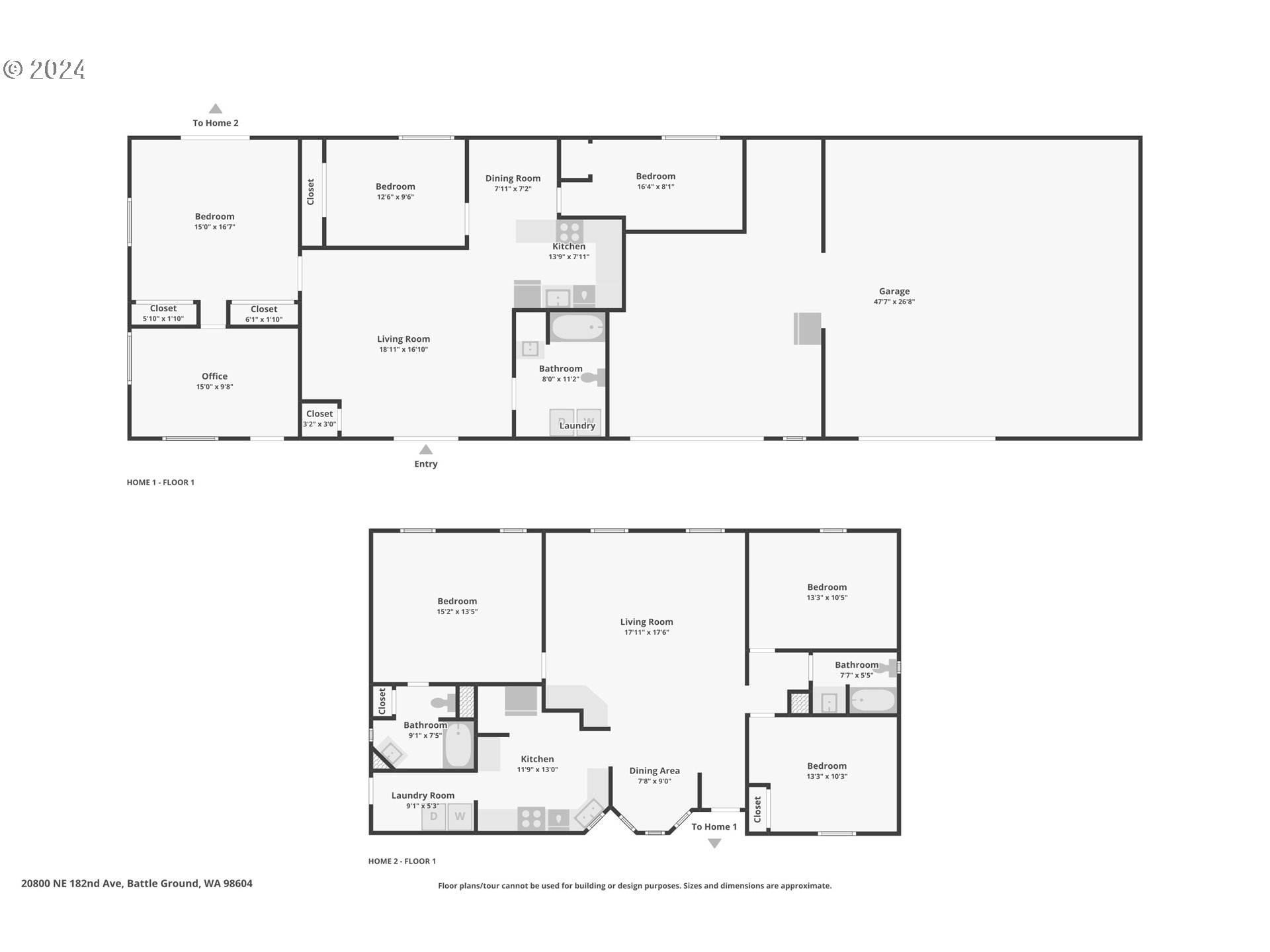
This expansive 1.17-acre property offers versatility with a 1,232 SF manufactured mobile home and an additional 1,120 SF stick built guest home. The manufactured home offers; 3 bedrooms, 2 full baths, a spacious living room and the home has a newer roof placed in 2021. The guest home offers a comfortable second living option with a sleek, updated kitchen, 3 bedrooms, a full bath, and a bonus office space. Outdoor amenities for these homes are a standout! The property features a sanded area, approximately 1/4 acre, with an underground water drainage system—ideal for a horse arena currently being used as a sand volleyball court. The large, level lot includes detached 1,120 SF garage, a detached shed (which could easily be converted into a pole barn), covered RV/boat parking, and a cozy covered sitting area. You’ll also enjoy an above-ground
Listing Provided Courtesy of Meghann Johnson, Reger Homes LLC
General Information
24211375
ManufacturedHomeonRealProperty
76
DOM
6
1.17 acres
3
2352
1986
R-5
Clark
201641010
Tukes Valley
Tukes Valley
Battle Ground
Residential
ManufacturedHomeonRealProperty
LOT 3 SP 1-500 1.17A FOR ASSESSOR USE ONLY S 165 FT OF N 330 FT O
Listing Provided Courtesy of Meghann Johnson, Reger Homes LLC
Krishna Realty data last checked: Oct 23, 2025 16:25 | Listing last modified Nov 27, 2024 08:58,
Source:
This expansive 1.17-acre property offers versatility with a 1,232 SF manufactured mobile home and an additional 1,120 SF stick built guest home. The manufactured home offers; 3 bedrooms, 2 full baths, a spacious living room and the home has a newer roof placed in 2021. The guest home offers a comfortable second living option with a sleek, updated kitchen, 3 bedrooms, a full bath, and a bonus office space. Outdoor amenities for these homes are a standout! The property features a sanded area, approximately 1/4 acre, with an underground water drainage system—ideal for a horse arena currently being used as a sand volleyball court. The large, level lot includes detached 1,120 SF garage, a detached shed (which could easily be converted into a pole barn), covered RV/boat parking, and a cozy covered sitting area. You’ll also enjoy an above-ground