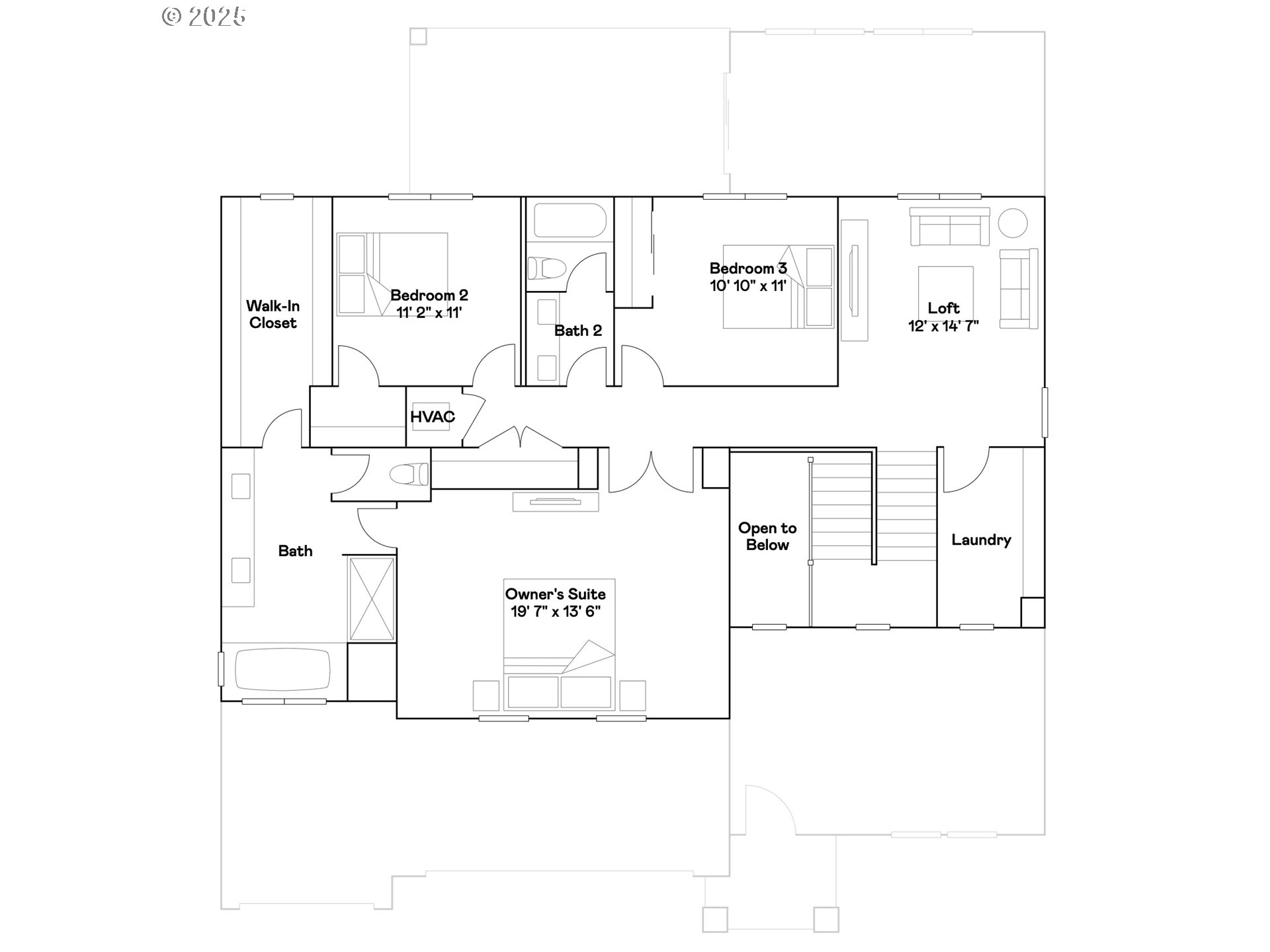
This two-story new construction corner Hammond home in Salmon Creek Ridge features a three-car garage and easy access to I-5, retail, and Salmon Creek trails. The first floor includes a den and private bedroom with bath, along with an open kitchen, dining area, and great room warmed by a fireplace. Upstairs, a loft connects three bedrooms and a primary suite with a soaking tub and walk-in closet. White cabinets, quartz countertops, and a vertical tile backsplash enhance the kitchen. LVP flooring runs through the entry and kitchen, and LVT covers baths and laundry. The primary bath includes a tiled shower with a separate tub. Wooden shelving, landscaping, and fencing complete the home. Central air conditioning, a refrigerator, washer and dryer, and blinds are included. Located on homesite 56, this home is move in ready. Rendering is artist conception only. Photos are of a similar home, features and finishes will vary. Flex credit/closing cost incentive available when financing with preferred lender! Use towards rate buydown and closing costs.
Listing Provided Courtesy of Matthew Garvin, Lennar Sales Corp
General Information
574995270
SingleFamilyResidence
323
DOM
4
3
2909
2025
Clark
New Construction
Pleasant Valley
Pleasant Valley
Prairie
Residential
SingleFamilyResidence
SALMON CREEK RIDGE LOT 56
Listing Provided Courtesy of Matthew Garvin, Lennar Sales Corp
Krishna Realty data last checked: Jan 15, 2026 14:12 | Listing last modified Jan 08, 2026 14:43,
Source:
Download our Mobile app
Residence Information
1564
1345
0
2909
BUILDER
2909
1/Gas
4
3
0
3
Composition
3, Attached
Stories2
Driveway
2
2025
No
CementSiding
CrawlSpace
RVParking
CrawlSpace
ConcretePerimeter
VinylFrames
Commons
Features and Utilities
BuiltinOven, ConvectionOven, Cooktop, Dishwasher, Disposal, Island, Microwave, Pantry, PlumbedForIceMaker, Qu
This two-story new construction corner Hammond home in Salmon Creek Ridge features a three-car garage and easy access to I-5, retail, and Salmon Creek trails. The first floor includes a den and private bedroom with bath, along with an open kitchen, dining area, and great room warmed by a fireplace. Upstairs, a loft connects three bedrooms and a primary suite with a soaking tub and walk-in closet. White cabinets, quartz countertops, and a vertical tile backsplash enhance the kitchen. LVP flooring runs through the entry and kitchen, and LVT covers baths and laundry. The primary bath includes a tiled shower with a separate tub. Wooden shelving, landscaping, and fencing complete the home. Central air conditioning, a refrigerator, washer and dryer, and blinds are included. Located on homesite 56, this home is move in ready. Rendering is artist conception only. Photos are of a similar home, features and finishes will vary. Flex credit/closing cost incentive available when financing with preferred lender! Use towards rate buydown and closing costs.