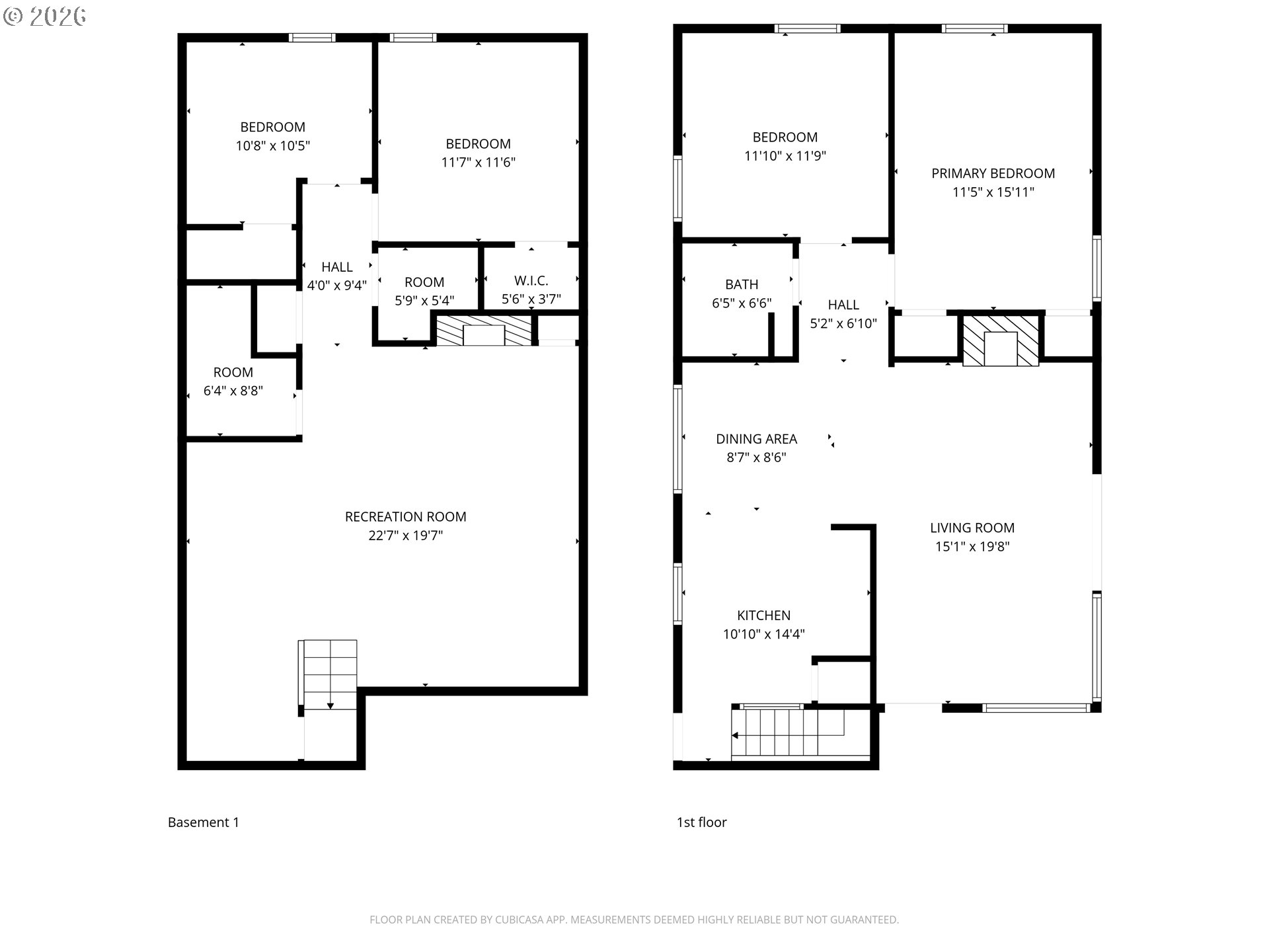
RARE 0.21 ACRE LEVEL LOT WITH DEDICATED RV/BOAT PARKING- SOMETHING MOST HOA RESTRICED CAMAS PROPERTIES CANNOT HANDLE & NO HOA HERE! All the charm of a 1950 home but with the efficiency of a 2024 with so many improvements in this TURN KEY home. Know that you have new windows 2024. New roof 2024. New Heating/Cooling 2024. New James Hardie siding (considered the best) 2024 has epoxy paint for durability and cleaning. New insulation is Closed Cell Spray Foam insulation which will keep those bills down considerably compared to regular insulation. A new Brad White water heater 2024. All new sheet rock 2024. Quartz countertops 2024. New cabinets throughout 2024. Industrial LVP 25mm floors. Interior epoxy paint. Wolf Gas Range. Largest lot in neighborhood. Vaulted ceilings on main floor. 2 fireplaces. 2 family rooms. 3 conforming bedrooms and 1 non conforming. The property has been priced so that you can build/locate YOUR choice of garage. A wrap around covered deck. Camas school district is another bonus as well as being surrounded by parks, close to the Washougal Sandy swimming hole, the Washougal River, LaCamas Lake and a fabulous range of places to eat. What a location for anyone wanting it all! Add a small section of interior wall to create a separate entrance (Door already in) for the lower lever if you wanted to rent that out maybe?. Plumbed with washer dryer but can accommodate a kitchenette easily to give the lower level 2 bedrooms, bathroom with walk-in shower, family area, storage area, larder cupboard, and a fireplace. Priced to sell so come with your best offer.
Listing Provided Courtesy of Debbie Penton-Clark, MORE Realty, Inc
General Information
179558755
SingleFamilyResidence
52
DOM
4
9147.6 SqFt
2
1800
1950
R-7.5
Clark
091045746
Prune Hill
Liberty
Camas
Residential
SingleFamilyResidence
WESTCO SUB-DIV LOT 12 BLK 2 FOR ASSESSOR USE ONLY WESTCO SUB-DIV
Listing Provided Courtesy of Debbie Penton-Clark, MORE Realty, Inc
Krishna Realty data last checked: Apr 06, 2026 17:27 | Listing last modified Apr 06, 2026 16:37,
Source:
RARE 0.21 ACRE LEVEL LOT WITH DEDICATED RV/BOAT PARKING- SOMETHING MOST HOA RESTRICED CAMAS PROPERTIES CANNOT HANDLE & NO HOA HERE! All the charm of a 1950 home but with the efficiency of a 2024 with so many improvements in this TURN KEY home. Know that you have new windows 2024. New roof 2024. New Heating/Cooling 2024. New James Hardie siding (considered the best) 2024 has epoxy paint for durability and cleaning. New insulation is Closed Cell Spray Foam insulation which will keep those bills down considerably compared to regular insulation. A new Brad White water heater 2024. All new sheet rock 2024. Quartz countertops 2024. New cabinets throughout 2024. Industrial LVP 25mm floors. Interior epoxy paint. Wolf Gas Range. Largest lot in neighborhood. Vaulted ceilings on main floor. 2 fireplaces. 2 family rooms. 3 conforming bedrooms and 1 non conforming. The property has been priced so that you can build/locate YOUR choice of garage. A wrap around covered deck. Camas school district is another bonus as well as being surrounded by parks, close to the Washougal Sandy swimming hole, the Washougal River, LaCamas Lake and a fabulous range of places to eat. What a location for anyone wanting it all! Add a small section of interior wall to create a separate entrance (Door already in) for the lower lever if you wanted to rent that out maybe?. Plumbed with washer dryer but can accommodate a kitchenette easily to give the lower level 2 bedrooms, bathroom with walk-in shower, family area, storage area, larder cupboard, and a fireplace. Priced to sell so come with your best offer.