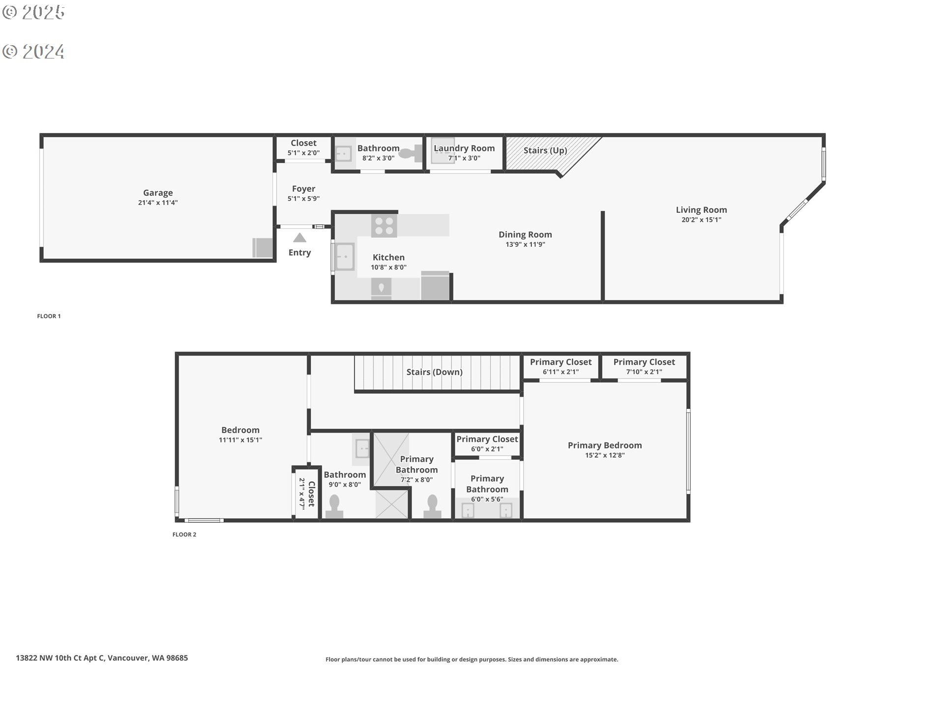
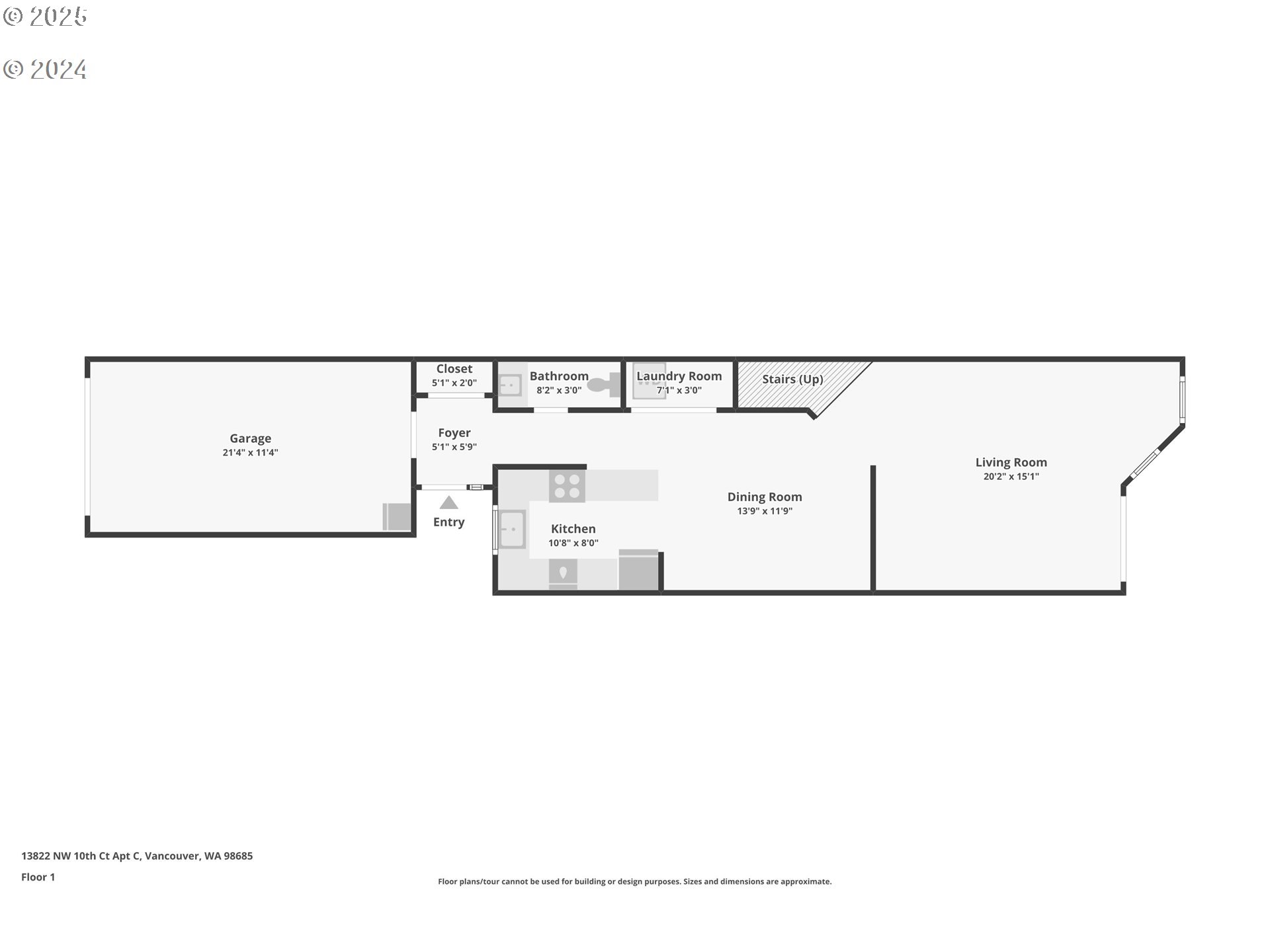
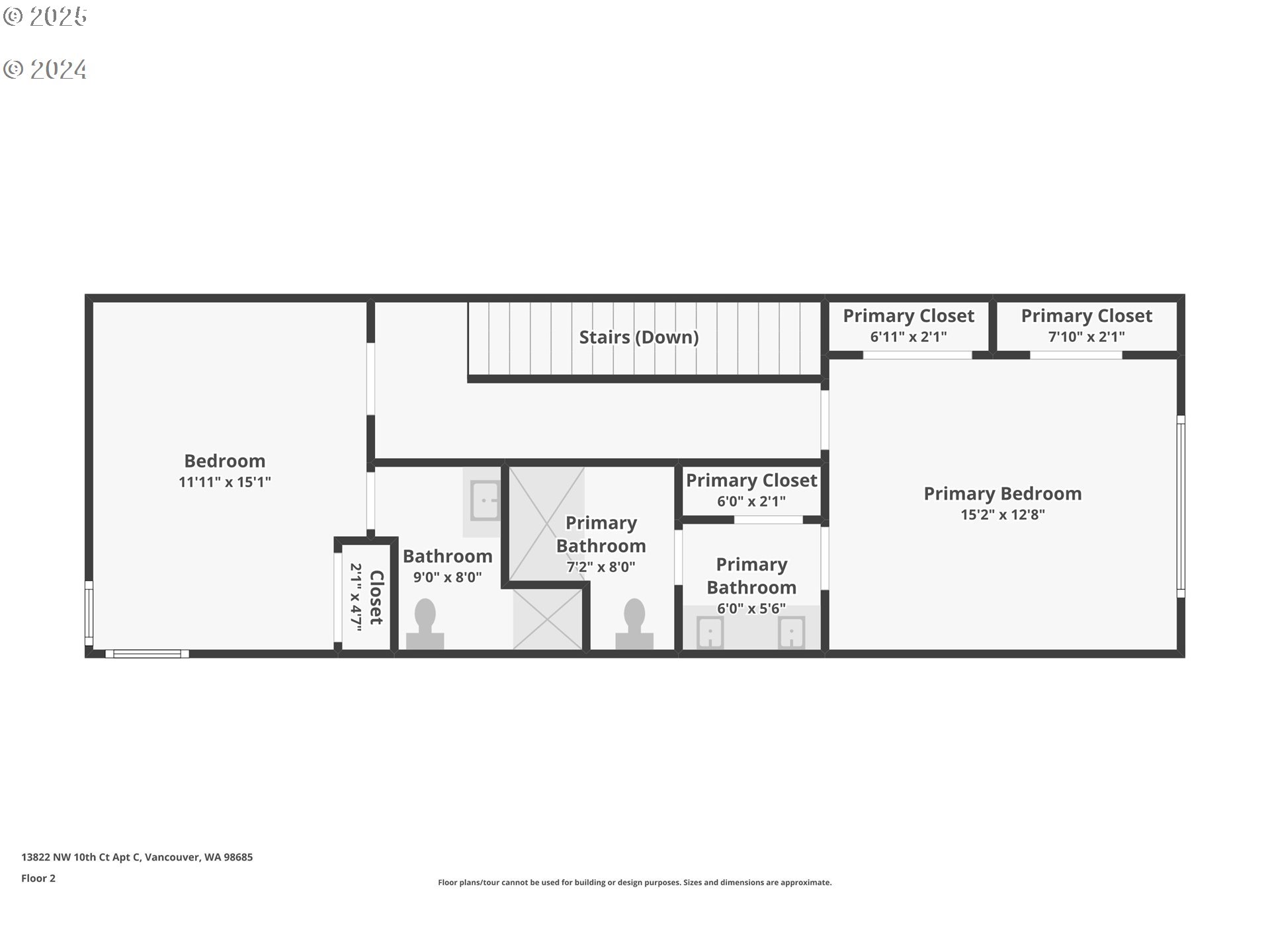
Good news for buyers! The HOA has approved new roofs, siding, exterior paint, and gutters for all units — a major value improvement.This well-maintained 2-bedroom, 2.1-bath condo in Edgetree Condominiums features an updated kitchen with quartz countertops, stainless steel appliances, and luxury vinyl flooring. The open-concept living and dining area leads to a private patio. Upstairs, both bedrooms include en-suite bathrooms, offering comfort and privacy.Additional highlights include in-unit laundry and an attached garage. Community amenities include a pool, clubhouse, tennis courts, and maintained green spaces. HOA dues cover water, sewer, landscaping, and exterior maintenance.Conveniently located in the Salmon Creek area near shopping, dining, and medical facilities.
Listing Provided Courtesy of Ahmed Elsayed, Realty One Group Prestige
General Information
578352094
Condominium
40
DOM
2
2.5
1387
1988
Clark
117901016
Chinook
Alki
Skyview
Residential
Condominium
EDGETREE CONDO PH 22 UNIT C FOR ASSESSOR USE ONLY EDGETREE CONDO
Listing Provided Courtesy of Ahmed Elsayed, Realty One Group Prestige
Krishna Realty data last checked: Apr 29, 2026 04:58 | Listing last modified Apr 08, 2026 19:24,
Source:
Download our Mobile app
Residence Information
705
682
0
1387
Tax
1387
2
2
1
2.5
Shingle
1, Attached
Other,Traditional
Driveway
2
1988
No
WoodSiding
CrawlSpace
CrawlSpace
ConcretePerimeter
DoublePaneWindows
AthleticCourt, Common
Features and Utilities
Dishwasher, Granite, Microwave
Granite, LaminateFlooring, WasherDryer
Garden, Yard
HeatPump
Electricity
ForcedAir
PublicSewer
Electricity
Electricity
Financial
3207.29
1
507 / Month
Cash,Conventional,FHA,Other,VALoan
02-27-2026
No
No
Comparable Information
40
61
Cash,Conventional,FHA,Other,VALoan
$285,000
$285,000
Apr 08, 2026 19:24
Schools
Elementary : ChinookN/ARatings Middle : Alki N/ARatings High : SkyviewN/ARatings
Good news for buyers! The HOA has approved new roofs, siding, exterior paint, and gutters for all units — a major value improvement.This well-maintained 2-bedroom, 2.1-bath condo in Edgetree Condominiums features an updated kitchen with quartz countertops, stainless steel appliances, and luxury vinyl flooring. The open-concept living and dining area leads to a private patio. Upstairs, both bedrooms include en-suite bathrooms, offering comfort and privacy.Additional highlights include in-unit laundry and an attached garage. Community amenities include a pool, clubhouse, tennis courts, and maintained green spaces. HOA dues cover water, sewer, landscaping, and exterior maintenance.Conveniently located in the Salmon Creek area near shopping, dining, and medical facilities.