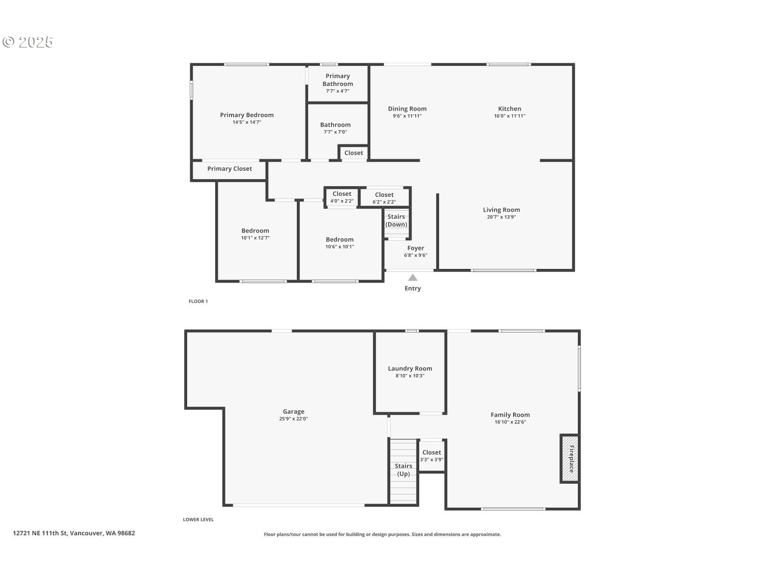
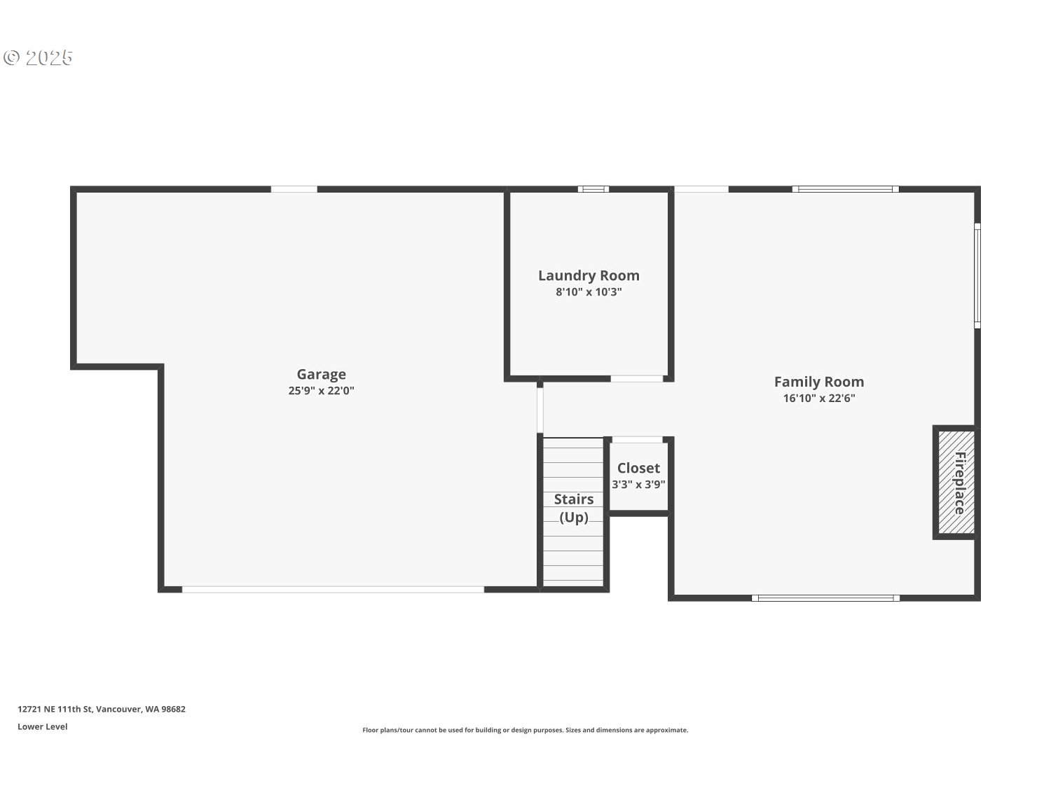
Back on market at no fault of seller. Buyer could not lift contingency. Home passed inspection and appraisal. Rare 1.2-acre property with major updates! Interior includes new kitchen backsplash, countertops, light fixtures, barn door, fresh paint, water tank, plumbing, flooring, and carpet. The open concept kitchen/living area was achieved by removing a wall. Bathrooms are fully updated and include a fun feature rarely seen at this price pt, heated tile floors. Exterior upgrades include a newer roof, leaf guard gutters, AC unit, exterior paint, river rock, and freshly paved driveway that fits commercial vehicles/RV’s/and boats. The wood deck has new boards and support posts. Below it sits a new cement patio. The property is completely fenced and gated on both sides. The owner even added gravel parking in the back left corner and a fire pit with new brick patio. Almost every expense completed with true pride of ownership. Newer appliances included with sale. So much potential with this property!
Listing Provided Courtesy of Esmeralda Callahan, Cascade Hasson Sotheby's International Realty
General Information
319735792
SingleFamilyResidence
126
DOM
3
1.2 acres
2.5
1825
1980
R1
Clark
119881024
Glenwood
Laurin
Prairie
Residential
SingleFamilyResidence
MOUNTAIN VIEW LOT 12 FOR ASSESSOR USE ONLY MOUNTAIN VIEW LOT 12
Listing Provided Courtesy of Esmeralda Callahan, Cascade Hasson Sotheby's International Realty
Krishna Realty data last checked: Jan 18, 2026 14:00 | Listing last modified Jan 09, 2026 07:02,
Source:
Download our Mobile app
Residence Information
0
1250
575
1825
GIS
1250
2/Gas
3
2
1
2.5
Composition
2, Attached
Farmhouse,Split
Driveway,RVAccessPar
2
1980
No
CementSiding
Finished
RVParking,RVBoatStorage
Finished
Slab
DoublePaneWindows,Vi
Features and Utilities
FireplaceInsert
BuiltinOven, BuiltinRange, Dishwasher, Disposal, FreeStandingRefrigerator, Island, Quartz, StainlessSteelAp
Back on market at no fault of seller. Buyer could not lift contingency. Home passed inspection and appraisal. Rare 1.2-acre property with major updates! Interior includes new kitchen backsplash, countertops, light fixtures, barn door, fresh paint, water tank, plumbing, flooring, and carpet. The open concept kitchen/living area was achieved by removing a wall. Bathrooms are fully updated and include a fun feature rarely seen at this price pt, heated tile floors. Exterior upgrades include a newer roof, leaf guard gutters, AC unit, exterior paint, river rock, and freshly paved driveway that fits commercial vehicles/RV’s/and boats. The wood deck has new boards and support posts. Below it sits a new cement patio. The property is completely fenced and gated on both sides. The owner even added gravel parking in the back left corner and a fire pit with new brick patio. Almost every expense completed with true pride of ownership. Newer appliances included with sale. So much potential with this property!