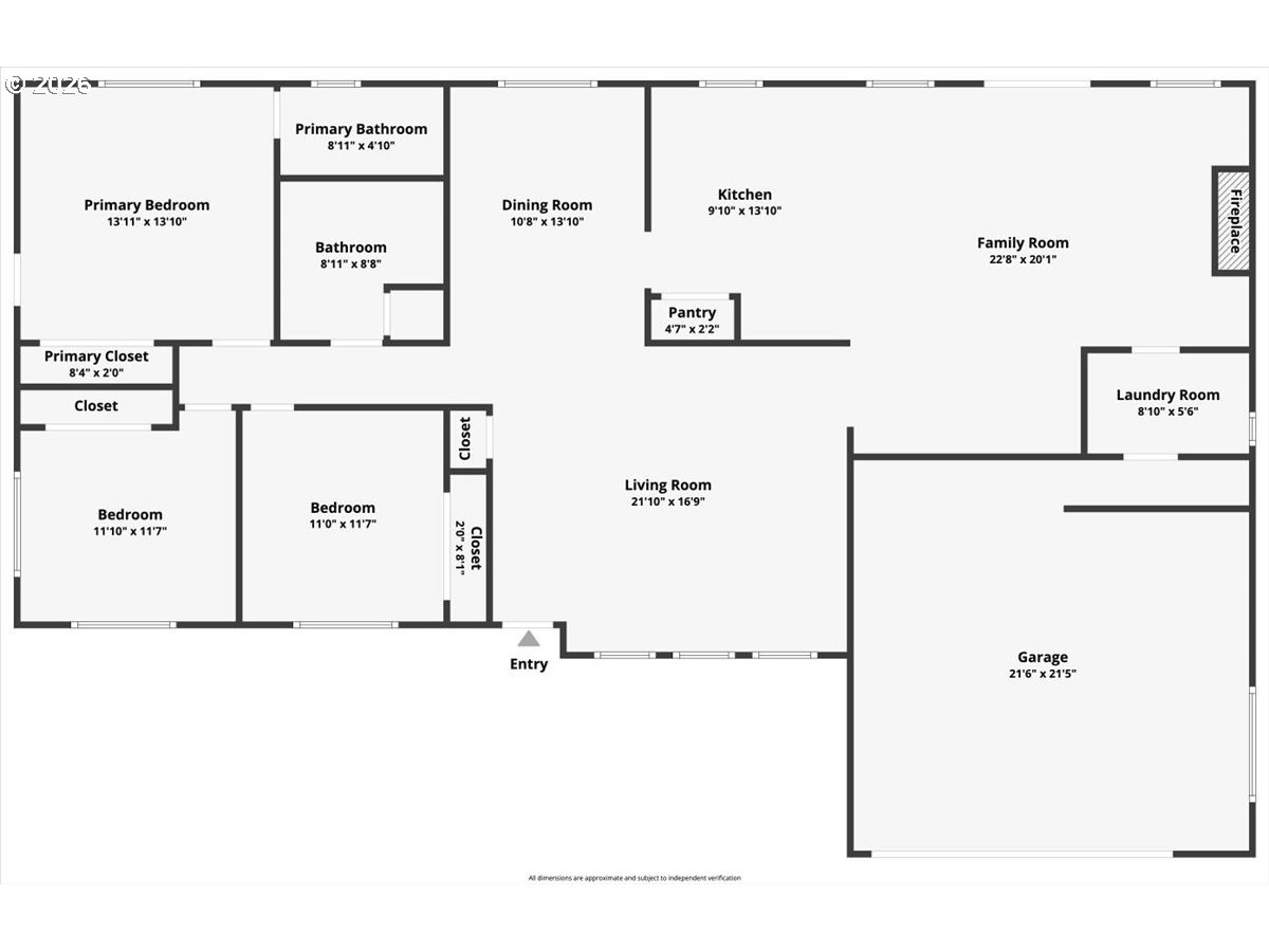
Tucked into a quiet cul-de-sac in highly sought-after Cascade Park, this beautifully updated single-level home offers the kind of comfort and ease that’s hard to find.Set on a spacious corner lot, the property welcomes you with clean lines, thoughtful upgrades, and a layout that simply makes sense. Inside, nearly 1,900 square feet unfolds into a bright, open living space where natural light moves easily from room to room. The kitchen connects seamlessly to the terrific flow of this home, creating a natural gathering place whether you’re hosting friends or enjoying a quiet evening at home.The home features three well-sized bedrooms and two updated bathrooms, all maintained with a level of care that shows the moment you walk in. It’s truly move-in ready, right down to the brand new HVAC system that adds comfort and peace of mind.There’s also a wet bar that makes entertaining easy and fun, while the covered deck extends your living space outdoors year-round. The yard is low maintenance, giving you more time to enjoy the things you love, and there’s even dedicated RV parking, a rare and practical bonus.Built in 1980 and meticulously cared for ever since, this home blends solid construction with modern updates.Homes like this in Cascade Park don’t come along often and is not expected to last long!!
Listing Provided Courtesy of Kara Rider, John L. Scott Real Estate
General Information
294025082
SingleFamilyResidence
0
DOM
3
9583.2 SqFt
2
1896
1980
Clark
114781162
Riverview
Wy East
Mountain View
Residential
SingleFamilyResidence
COLUMBIA MEADOWS UNIT 2 LOT 30 FOR ASSESSOR USE ONLY COLUMBIA MEA
Listing Provided Courtesy of Kara Rider, John L. Scott Real Estate
Krishna Realty data last checked: Apr 23, 2026 16:07 | Listing last modified Apr 23, 2026 13:05,
Source:
Tucked into a quiet cul-de-sac in highly sought-after Cascade Park, this beautifully updated single-level home offers the kind of comfort and ease that’s hard to find.Set on a spacious corner lot, the property welcomes you with clean lines, thoughtful upgrades, and a layout that simply makes sense. Inside, nearly 1,900 square feet unfolds into a bright, open living space where natural light moves easily from room to room. The kitchen connects seamlessly to the terrific flow of this home, creating a natural gathering place whether you’re hosting friends or enjoying a quiet evening at home.The home features three well-sized bedrooms and two updated bathrooms, all maintained with a level of care that shows the moment you walk in. It’s truly move-in ready, right down to the brand new HVAC system that adds comfort and peace of mind.There’s also a wet bar that makes entertaining easy and fun, while the covered deck extends your living space outdoors year-round. The yard is low maintenance, giving you more time to enjoy the things you love, and there’s even dedicated RV parking, a rare and practical bonus.Built in 1980 and meticulously cared for ever since, this home blends solid construction with modern updates.Homes like this in Cascade Park don’t come along often and is not expected to last long!!