Built in 2018 by respected builder Generation Homes, this thoughtfully designed 4-bedroom home offers flexibility and comfort in all the right places. One oversized bedroom easily functions as a bonus or flex space, while a dedicated main-level den/office supports today’s work-from-home needs. The kitchen stands out with quality cabinetry, quartz countertops, and durable LVP flooring, all complemented by refined trim and doors throughout. Enjoy year-round comfort with efficient gas heat and A/C. Covered front and back porches extend your living space outdoors, while the professionally installed turf backyard keeps maintenance simple. Set on a corner lot with HOA-maintained front landscaping, this home blends ease, function, and a welcoming neighborhood setting.
Listing Provided Courtesy of Gregg White, John L. Scott Real Estate
General Information
119523854
SingleFamilyResidence
1
DOM
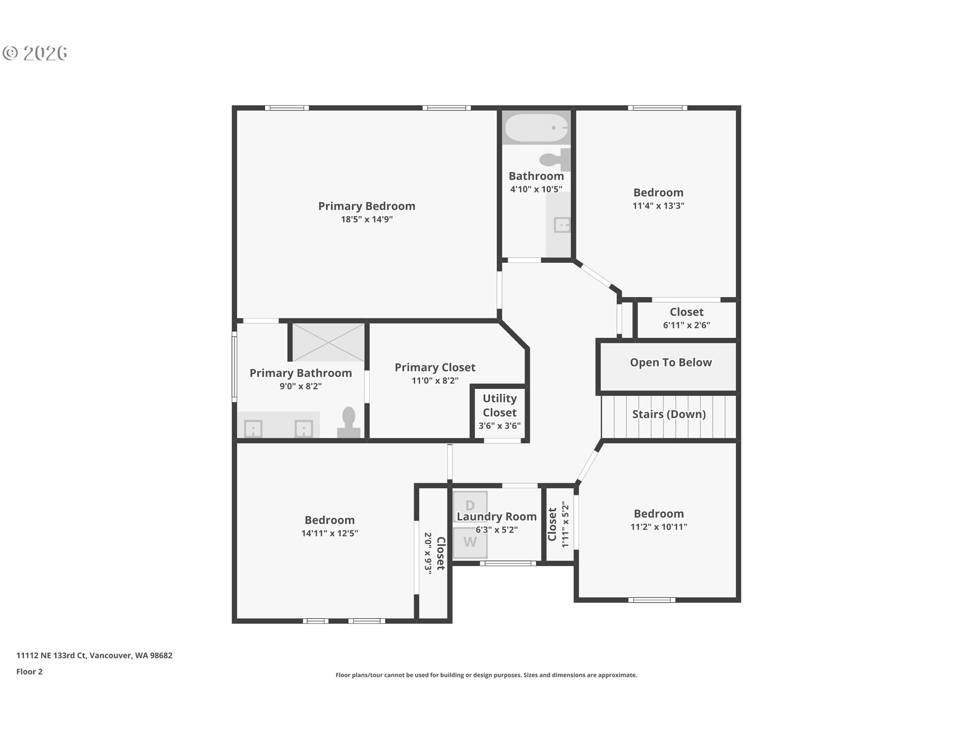
4
4356 SqFt
2.5
2240
2018
Clark
986040121
Maple Grove
Laurin
Prairie
Residential
SingleFamilyResidence
PARKERS ABBY PH1 LOT 1 311849 FOR ASSESSOR USE ONLY PARKERS ABBY
Listing Provided Courtesy of Gregg White, John L. Scott Real Estate
Krishna Realty data last checked: Apr 17, 2026 05:21 | Listing last modified Apr 16, 2026 07:15,
Source:
Open House
Sun, Apr 19th, 11AM to 1PM
Sat, Apr 18th, 12PM to 2PM
Download our Mobile app
Residence Information
1280
960
0
2240
GIS
2240
1/Gas
4
2
1
2.5
Composition
2, Attached
Stories2
Driveway
2
2018
No
BoardBattenSiding, CementSiding, LapSiding, Stone
CrawlSpace
CrawlSpace
ConcretePerimeter,Pi
DoublePaneWindows,Vi
FrontYardLandscaping
Features and Utilities
BuiltinOven, Cooktop, Dishwasher, Disposal, Island, Microwave, Pantry, PlumbedForIceMaker, Quartz, StainlessS
LuxuryVinylPlank, Quartz, WalltoWallCarpet
CoveredPatio, Patio, Yard
CentralAir
Gas, Tankless
ForcedAir
PublicSewer
Gas, Tankless
Electricity, Gas
Financial
3777.16
1
70 / Month
Cash,Conventional,FHA,VALoan
04-16-2026
No
No
Comparable Information
1
1
Cash,Conventional,FHA,VALoan
$589,900
$589,900
Apr 16, 2026 07:15
Schools
Elementary : Maple GroveN/ARatings Middle : Laurin N/ARatings High : PrairieN/ARatings
Built in 2018 by respected builder Generation Homes, this thoughtfully designed 4-bedroom home offers flexibility and comfort in all the right places. One oversized bedroom easily functions as a bonus or flex space, while a dedicated main-level den/office supports today’s work-from-home needs. The kitchen stands out with quality cabinetry, quartz countertops, and durable LVP flooring, all complemented by refined trim and doors throughout. Enjoy year-round comfort with efficient gas heat and A/C. Covered front and back porches extend your living space outdoors, while the professionally installed turf backyard keeps maintenance simple. Set on a corner lot with HOA-maintained front landscaping, this home blends ease, function, and a welcoming neighborhood setting.