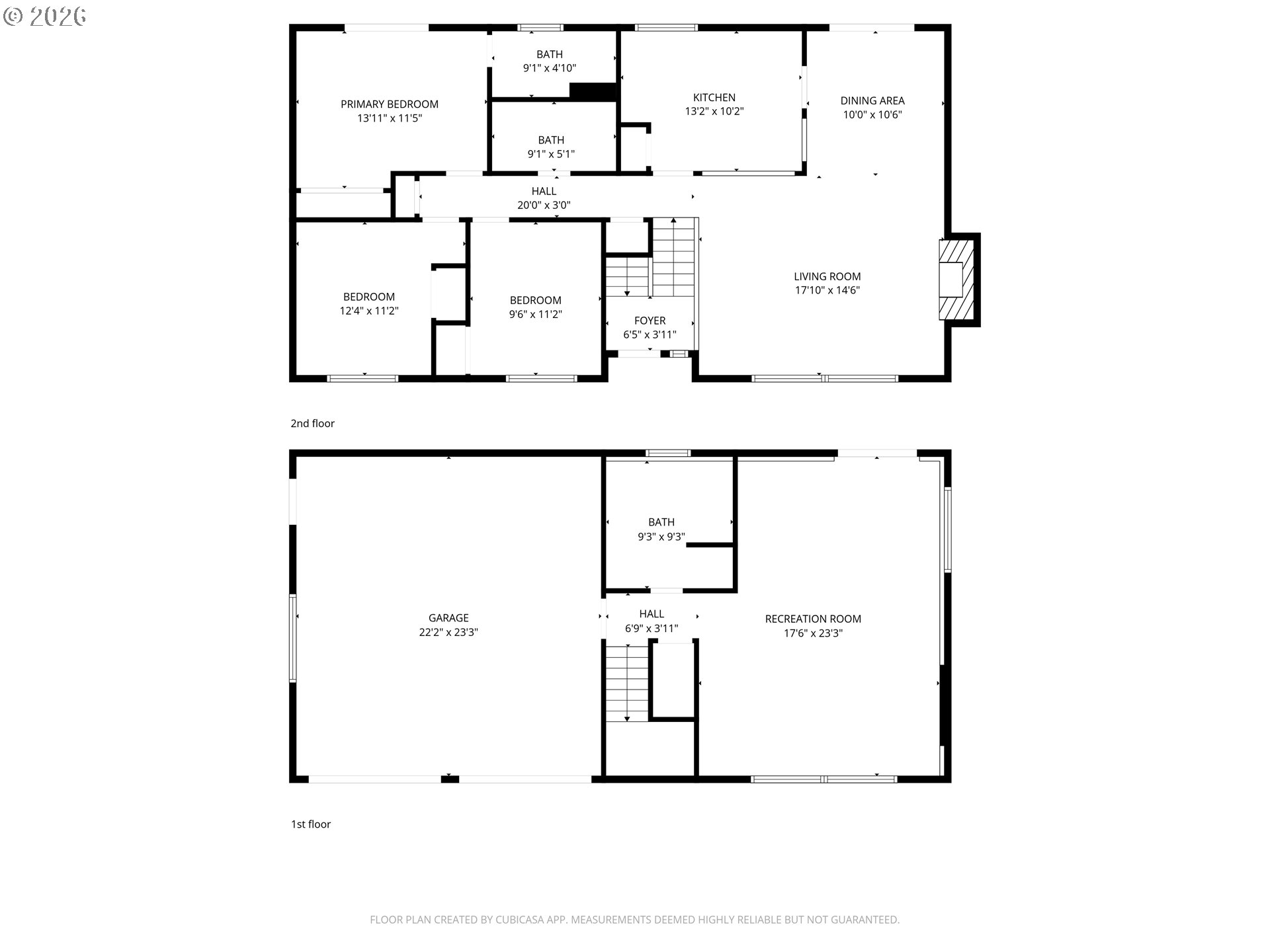
Tucked into a quiet cul-de-sac of well-kept homes, this spacious split-level offers the perfect blend of flexibility, comfort, and location. Just minutes from I-5 and I-205 freeway access, dining, and shopping, you’ll love the convenience without sacrificing neighborhood charm. Inside, vaulted ceilings and hardwood floors create an airy, light-filled main level with an open floor plan designed for both everyday living and entertaining. The dining area flows seamlessly onto a deck, with an additional private deck off the primary suite - perfect for morning coffee or winding down in the evenings. Downstairs, the garage-level bonus space includes a full bath and laundry with its own entrance from the garage and no steps - ideal for a multi-generational studio setup, second living quarters, or guest suite (just add kitchenette). Outside, the large fully fenced backyard offers endless possibilities with a dog run, shed, space for play or gardening, and pad perfect for basketball hoop or create RV/boat parking by creating side access. Additional highlights include two fireplaces (one pellet stove ready), new interior and exterior paint, and a brand new fence. Located within the Salmon Creek / Alki / Skyview school boundaries, this home combines comfort, versatility, and accessibility in one of Vancouver’s most convenient locations. Open Saturday and Sunday (3/28 and 3/29) from 1-3pm!
Listing Provided Courtesy of Julie Baldino, Front Door Realty
General Information
223076018
SingleFamilyResidence
1
DOM
3
8276.4 SqFt
3
1812
1982
Clark
117898310
Salmon Creek
Alki
Skyview
Residential
SingleFamilyResidence
EAST RIDGE LOT 35 FOR ASSESSOR USE ONLY EAST RIDGE LOT 35
Listing Provided Courtesy of Julie Baldino, Front Door Realty
Krishna Realty data last checked: Mar 23, 2026 03:52 | Listing last modified Mar 22, 2026 18:03,
Source:
Tucked into a quiet cul-de-sac of well-kept homes, this spacious split-level offers the perfect blend of flexibility, comfort, and location. Just minutes from I-5 and I-205 freeway access, dining, and shopping, you’ll love the convenience without sacrificing neighborhood charm. Inside, vaulted ceilings and hardwood floors create an airy, light-filled main level with an open floor plan designed for both everyday living and entertaining. The dining area flows seamlessly onto a deck, with an additional private deck off the primary suite - perfect for morning coffee or winding down in the evenings. Downstairs, the garage-level bonus space includes a full bath and laundry with its own entrance from the garage and no steps - ideal for a multi-generational studio setup, second living quarters, or guest suite (just add kitchenette). Outside, the large fully fenced backyard offers endless possibilities with a dog run, shed, space for play or gardening, and pad perfect for basketball hoop or create RV/boat parking by creating side access. Additional highlights include two fireplaces (one pellet stove ready), new interior and exterior paint, and a brand new fence. Located within the Salmon Creek / Alki / Skyview school boundaries, this home combines comfort, versatility, and accessibility in one of Vancouver’s most convenient locations. Open Saturday and Sunday (3/28 and 3/29) from 1-3pm!