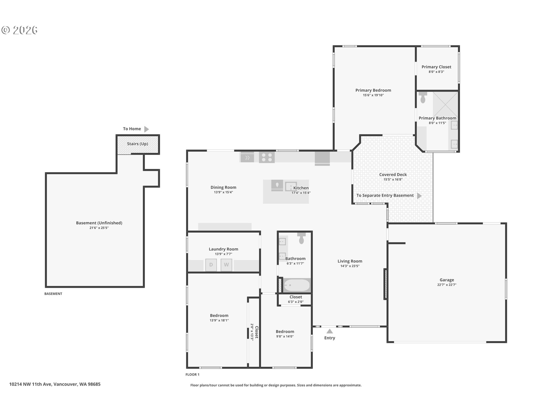
This 100-year-old farmhouse in Felida has been fully remodeled with a mid-century modern vibe, floor to ceiling windows, and an abundance of natural light. All new electrical and plumbing throughout. The open living and dining areas showcase an electric fireplace framed by a wood accent wall and built-ins. The kitchen features a built-in double oven, a gas cooktop/custom hood, and a large quartz island. A decorative door in the kitchen leads to an atrium style patio that also connects to the primary suite with a walk-in closet and luxurious ensuite bath. Two additional bedrooms, one oversized with two closets; a full bath and expansive laundry room offering exceptional storage. Unique touches include a root cellar and exposed beams in the kitchen enhancing the original farmhouse charm. Two-car garage, parking pad, carport, and extra large RV parking. Accommodates six+ vehicles. Large shed out back, space for a dog run and garden. Close to amenities and great schools.
Listing Provided Courtesy of Cassidy Primerano, Redfin
General Information
157764909
SingleFamilyResidence
33
DOM
3
8276.4 SqFt
2
2008
1920
Clark
189193000
Sacajawea
Jefferson
Columbia River
Residential
SingleFamilyResidence
#316 SEC 33 T3N R1EWM .19A FOR ASSESSOR USE ONLY A PTN OF SE14 OF
Listing Provided Courtesy of Cassidy Primerano, Redfin
Krishna Realty data last checked: Mar 16, 2026 19:34 | Listing last modified Mar 16, 2026 08:41,
Source:
Download our Mobile app
Residence Information
0
2008
0
2008
GIS
2008
1/Gas
3
2
0
2
Composition
2, Attached
Stories1,MidCenturyModern
Carport,RVAccessPark
1
1920
No
CementSiding, WoodSiding
CrawlSpace,StorageSpace
RVParking
CrawlSpace,StorageSp
Block,ConcretePerime
DoublePaneWindows,Vi
Features and Utilities
BuiltinOven, Cooktop, Dishwasher, Disposal, DoubleOven, FreeStandingRefrigerator, GasAppliances, Island, Qua
This 100-year-old farmhouse in Felida has been fully remodeled with a mid-century modern vibe, floor to ceiling windows, and an abundance of natural light. All new electrical and plumbing throughout. The open living and dining areas showcase an electric fireplace framed by a wood accent wall and built-ins. The kitchen features a built-in double oven, a gas cooktop/custom hood, and a large quartz island. A decorative door in the kitchen leads to an atrium style patio that also connects to the primary suite with a walk-in closet and luxurious ensuite bath. Two additional bedrooms, one oversized with two closets; a full bath and expansive laundry room offering exceptional storage. Unique touches include a root cellar and exposed beams in the kitchen enhancing the original farmhouse charm. Two-car garage, parking pad, carport, and extra large RV parking. Accommodates six+ vehicles. Large shed out back, space for a dog run and garden. Close to amenities and great schools.